Bauhausgebäude in Dessau
Einführung
Das Bauhaus wurde 1919 in Weimar (Deutschland) von Walter Gropius gegründet, 1925 nach Dessau verlegt und 1933 in Berlin aufgelöst. Man kann sagen, dass sich der Geist und die Lehren dieser Institution in der ganzen Welt verbreitet haben.
Mit der Bewegung von Weimar a DessauDas Bauhaus hatte die Möglichkeit, ein Gebäude zu schaffen, das optimale Arbeitsbedingungen bot, indem es einen eigenen Entwurf entwickelte, der von Walter Gropius selbst ausgeführt und am 4. Dezember 1926 eingeweiht wurde und schnell zu einer Ikone der frühen Moderne wurde.
…. „Architekten, Bildhauer, Maler, wir alle müssen zur Handarbeit zurückkehren! [Lasst uns daher eine neue Bruderschaft der Handwerker gründen, frei von jener Arroganz, die eine Klasse von der anderen trennt und eine unüberwindbare Barriere zwischen Handwerkern und Künstlern errichten will! Lasst uns das neue Gebäude der Zukunft ersehnen, erdenken und gemeinsam errichten, das alles – Architektur, Bildhauerei und Malerei – in sich vereint und aus den Händen von Millionen von Handwerkern in den Himmel ragt, ein kristallines Symbol eines neuen Glaubens, der bereits ankommt…. “ Walter Gropius
Mit dem Bauhausgebäude verwirklichte Gropius seinen Anspruch, lebendige Prozesse zu gestalten und Kunst, Technik und Ästhetik im Streben nach Funktionalität zu vereinen. Sie entstand aus dem Zusammenschluss der Akademie der Schönen Künste und der Kunstgewerbeschule mit dem Ziel, die bestehende Kluft zwischen Kunst und industrieller Produktion einerseits und zwischen Kunst und Handwerk andererseits zu überwinden. Sie förderte den Einsatz neuer Materialien und Technologien, ohne das Erbe der Handwerkskunst zu vernachlässigen.
Situation
Das Gebäude scheint die Gründe für seine Gestaltung aus den Gegebenheiten des Gebiets zu ziehen, in dem es sich befindet: Es grenzt an eine Straße, kreuzt eine andere, die senkrecht zur ersten verläuft, und zwei seiner Flügel grenzen an einen nahe gelegenen Sportplatz. Ihre Postanschrift lautet: Gropiusallee 38, 06846 Dessau, Deutschland.
Konzept
Nach dem Ersten Weltkrieg suchte das besiegte Deutschland nach einem Ausweg aus der Wertekrise, in die es geraten war. Ihre Intellektuellen waren der Ansicht, dass politischer Irrationalismus zu Gewalt geführt hatte und dass sich nun ein kritischer Rationalismus durchsetzen sollte, der in der Lage ist, gesellschaftliche Widersprüche zu lösen.
Gropius Sein großes Manifest des architektonischen Rationalismus ist das außergewöhnliche Bauhaus-Gebäude, in dem sich die Charakteristika der Moderne vereinen: reine, rationell gegliederte Volumen (Funktionalismus), innovativer Einsatz neuer Materialien wie die Glasfassade an den Fassaden, horizontale Fenster, Verzicht auf Ornamente, Gesamtgestaltung aller Elemente und vor allem ein Raumkonzept, das von der Wechselbeziehung zwischen Innen und Außen durch die Glaswand bestimmt wird.
Mit den Arbeiterwohnungen, die Mies van der Rohe, der letzte Direktor des Bauhauses, in der Nähe von Stuttgart, in der Weißenhofsiedlung, baute, wurden diese Prinzipien schnell international akzeptiert und gefestigt.
Beschreibung
Fassaden
Die Fassaden zeugen davon, dass das Bauhaus bei weitem ein typisches modernes Gebäude ist. Selbst wenn man danach sucht, wird man nie eine Hauptfassade finden, alle wurden mit „Liebe“ zum Detail gemacht, alle mit der Absicht, dass die Funktion schon von außen erkennbar ist.
Jede Fassade entspricht den Erfordernissen der im Inneren stattfindenden Aktivitäten: Die Fassade des Klassenzimmers besteht aus horizontalen Fenstern, deren Funktion es ist, für eine angemessene Beleuchtung zu sorgen, während die Fassade der Wohnungen einzelne Öffnungen aufweist, die für mehr Privatsphäre sorgen.
Die Werkstätten haben eine große Glasfront, die ein Maximum an Licht und einen Blick von außen auf das Innere ermöglicht. Gropius In dieser Fassade nimmt er das Thema des Faguswerks und der Kölner Fabrik auf, indem er eine Glaseinfassung schafft, die vor der Kante der Bodenplatte verläuft, wobei die Säulen zurückgesetzt sind und einen Überhang bilden, der den Eckblock eliminiert, wodurch das berühmte Bild der kantigen Transparenz entsteht, das einer der typischsten formalen Aspekte des Bauhauses ist.
An der vorderen Fassade ist die erste Ebene zurückgesetzt, um ein oberes Volumen, das aus einer Vorhangfassade besteht, zum Schweben zu bringen und eine Spannung zum Zugang hin zu erzeugen, die sich aus dem Kontrast der Opazität der Volumen im Hintergrund ergibt.
Decken
Es handelte sich um große Flachdächer, und damals gab es kaum Erfahrungen mit solchen Konstruktionen. Das heißt, dass es bei der Konstruktion der Dächer mehrere Probleme gab. Das größte Problem war das Gefälle mit nur 1 Grad Neigung, das nächste war die Drainage im Inneren, und schließlich fehlte die Drainage mit Kies, so dass die Sonne direkt auf die Teerschichten schien, und da auch keine Dehnungsfugen vorhanden waren, verformten sich die Schichten. Mit anderen Worten: Bauhausdächer waren nie wasserdicht.
Räume
Der Haupteingang des Bauhauses ist durch drei separate Türen mit roten Säulen geteilt, die zum Treppenhaus und zum Foyer führen.
Treppe
Letztere ist in drei Abschnitte unterteilt, von denen der breitere mittlere in die oberen Stockwerke führt, während die schmaleren seitlichen abwärts verlaufen. Gegenüber der Treppe befindet sich ein großes, raumhohes Fenster, das so breit wie die Treppe ist.
Foyer
Ein halbes Stockwerk höher gelangt man in das Foyer, das aufgrund seiner einzelnen Elemente sehr interessant ist.
Ein sehr charakteristisches Merkmal des Bauhausgebäudes ist, dass es beim Begehen der Flure oder Treppenhäuser fast immer mehrere Möglichkeiten gibt, wohin man gehen kann, wodurch die verschiedenen Bereiche des Gebäudes eine gewisse Korrespondenz erhalten.
Wenn man vom Foyer aus die Treppe hinaufsteigt, gelangt man nicht nur in die Werkstätten und die Verwaltung, sondern, da sich auf beiden Seiten der Treppe große Fenster befinden, erhält man mit jeder Stufe einen neuen Blick auf die Innenräume, vor allem aber auf den Außenbereich.

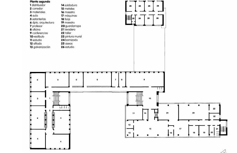
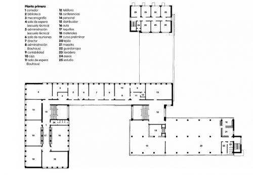
Das Gebäude ist in drei Hauptflügel unterteilt, die durch ein Brückenelement miteinander verbunden sind. Seine kreuzförmige Form bricht das Konzept der Symmetrie und stellt die funktionale Effizienz vor die ästhetische Kohärenz. Es zeichnet sich durch orthogonale, im Allgemeinen asymmetrische Grundrisse und Schnitte sowie durch das Fehlen von Fassadendekoration aus. Die Innenräume sind hell und offen gestaltet.
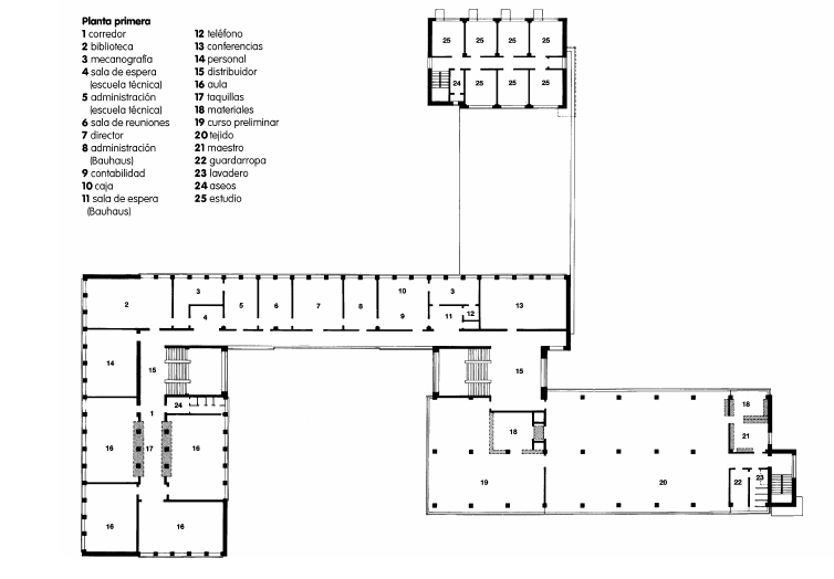
Technische Ausbildung
Auf der Nordseite befinden sich auf drei Ebenen Unterrichtsräume und kleine Labors.
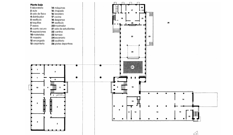
Labore, Werkstätten, Kantine und Hörsaal
Drei Ebenen an einem Ende sind den Testlabors und Werkstätten gewidmet. Am anderen Ende des Gebäudes befinden sich die Mensa, die Küche und der Hörsaal.
Aula Magna
Die Aula magna ist so etwas wie das Herz des Bauhauses, weil hier in kompakter Form zu sehen ist, was in diesen Jahren entwickelt wurde, und weil hier die Feiern stattfanden. Dieser Gebäudeteil wird als Festbereich bezeichnet und besteht aus der Aula, der Bühne und der Universitätskantine. Der Speisesaal und die Bühne sind durch drei Flügeltüren voneinander getrennt, so dass der gesamte Bereich eigentlich ein großer Raum ist.
Küche und Esszimmer
Ein Fenster trennt die Küche vom Esszimmer, ein Novum für die damalige Zeit, denn so konnte man sehen, was der Koch macht.
Unterkunft

Sechs Etagen mit 28 Zimmern von je 20 Quadratmetern. Alle verfügen über einen kleinen Balkon, eine Betonplatte, die in den offenen Raum hinausragt.
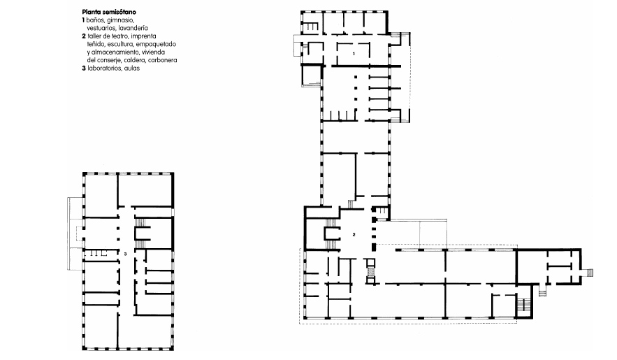
Auf jeder Etage gab es auch Bäder und eine kleine Küche. Im Halbkeller standen den Schülern Duschen, ein Waschraum mit automatischen Maschinen und eine Turnhalle zur Verfügung. Das Besondere an den Wohnungen war jedoch, dass die Studenten mehrere Möglichkeiten hatten, das gute Wetter zu genießen, denn zusätzlich zu den Balkonen ist das Dach eine große Terrasse, die von Bänken umgeben und teilweise halb überdacht ist.
Dieses Gebäude ist auch der massivste Baukörper, der nur an der Ost- bzw. Westfassade durch auskragende Balkone und Fenster unterbrochen wird.
Überbrückungselement
Neben der Verbindung zwischen den verschiedenen Flügeln diente er als Büro, als private Werkstatt von Gropius und als Club- oder Erholungsraum.
Diese Brücke verkörpert die Idee einer vom Boden befreiten Architektur, die den städtischen Verkehr nicht behindert.
Struktur
Eine Struktur aus Eisen und Beton bildet das Skelett des Gebäudes, das die Einheit des Ganzen gewährleistet und die Existenz von drei verschiedenen Fassaden ermöglicht, die mit so fragilen und innovativen Materialien wie Glas gebaut wurden.
Die statische Konstruktion ist nicht, wie es den Anschein hat, komplett aus Stahlbeton, sondern nur das Skelett, die Flächen dazwischen sind meist aus Mauerwerk, auch die Böden.
Materialien
Die moderne Bewegung nutzte die Möglichkeiten neuer industrieller Materialien wie Stahlbeton, Verbundstahl und großflächiges Flachglas.
Neben diesen neuen Materialien haben die Fassaden auch hier den typischen glatten, weißen Putz, aber auch einen grob verputzten, grauen Sockel. Dieser Sockel hat einen optischen Effekt, da er den Eindruck erweckt, dass das Gebäude noch heller ist.
Neben dem Putz und seiner Farbe sind die Fenster eines der grundlegenden Elemente der Fassadenstruktur. Die Bauhausfenster sind ganz aus Stahl, ohne Entwässerung und mit Einfachverglasung. Sie hatten nie die Farbe Schwarz, sondern Dunkelgrau, und Grau hat den Vorteil, dass man aus der Ferne die Rahmen nicht erkennen kann, so dass es wie eine große Fläche aussieht. Wir sehen also, dass das Bauhaus viel mit Effekten gearbeitet hat, sei es mit Licht oder mit optischen Täuschungen, aber auch mit Psychologie, da die Stimmung der Menschen, die dort arbeiteten und lernten, auch von diesen Effekten beeinflusst wurde.
Die Flure und Treppenhäuser hatten Magnesia-Böden, die Büros Linoleum in verschiedenen Farben, die Wände waren aus Kalkputz.
Der für den Bau verwendete Beton war aufgrund von zu viel Kies zu porös, während die Schicht, die den Rahmen des Gebäudes bedeckt, zu dünn war, weshalb der Eisenrahmen verrostet ist. Der an den Pfeilern der Brücke verwendete Putz, der als Sichtbeton belassen wurde, weist ein Relief auf, als sei er gehämmert worden, was bei Werken der Moderne ungewöhnlich war.
Ein Detail, das zeigt, dass es sich nicht nur um ein funktionales Gebäude in Bezug auf die Lage der Räume, sondern auch in Bezug auf die praktische Nutzung handelte, ist die Tatsache, dass von Anfang an eine Methode zur Reinigung der zahlreichen Fenster des Gebäudes vorgesehen war, die aus an der Decke befestigten Haken bestand, an denen Seile für Stühle aufgehängt werden konnten.
Die Zentralheizung mit den im ganzen Gebäude verteilten Heizkörpern ist ein Symbol für die Absicht des Bauhauses, mit der Industrie zusammenzuarbeiten und den Einsatz neuer technischer Systeme zu demonstrieren. In einigen Räumen nehmen diese Heizkörper den Platz ein, der in der Barockzeit für die Präsentation eines Gemäldes vorgesehen war, was die Bedeutung verdeutlicht, die die Bauhaus-Bewegung der Verwendung industrieller Elemente beimaß.
































