Broadcasting Place Complex
Einführung
Broadcasting Place ist ein markantes Mischnutzungsprojekt in der Nähe des Stadtzentrums von Leeds. Im Rahmen einer öffentlich-privaten Partnerschaft zwischen der Downing Property Group und der Leeds Beckett University entstehen auf rund 10219 m2 neue Büro- und Lehrräume sowie 240 Studentenwohnungen in einem 23-stöckigen Gebäude, das einen Meilenstein darstellt. Eine neue Baptistenkirche vervollständigt das Projekt.
Der Broadcasting Place mit seiner unverwechselbaren Struktur wurde mit zahlreichen Auszeichnungen und Preisen bedacht. Darunter:
2009 Leeds Architecture Awards – Bestes neues Gebäude.
2010 CTBUH Best Tall Buildings Awards – Best Tall Building Overall, CTBUH Best Tall Buildings Awards – Best Tall Building in Europe, RIBA Yorkshire Regional Awards – Shortlisted, BCI Awards – Building Project – Shortlisted, LEAF Emirates Awards – Best Mixed Use Building Award, RIBA Award und Yorkshire Property Awards – Best Commercial Development.
2019 CTBUH 10 Year Award – Auszeichnung für herausragende Leistungen
Standort
Der Standort des Bauvorhabens hat wichtige kulturelle Bezüge, auf die im Entwurf Bezug genommen wurde. Das Gebäude markiert den Standort der ehemaligen BBC-Fernsehstudios und den Ort, an dem Louis Le Prince Ende des 19. Jahrhunderts den ersten bewegten Film entwickelte. Dies macht es zu einer sehr passenden Umgebung für ein Gebäude, das jetzt der Leeds Beckett Faculty of Arts and Social Sciences in der Woodhouse Lane gewidmet ist, Leeds Leeds, West Yorkshire, England.
Der Standort verfügt über wichtige kulturelle Verbindungen, auf die im Entwurf Bezug genommen wurde. Die Hauptfassade hat 16 Fenster, die die 16 Rahmen widerspiegeln, die noch von den frühesten Gebäuden in diesem Gebiet existieren.
Konzept
Die Gebäude sind als starke Landschaftsformen konzipiert, die auf das reiche geologische und skulpturale Erbe Yorkshires zurückgreifen.

Die steile Dachneigung spiegelt sich in der Massierung der Gebäude wider, die scharfe dreieckige Ecken und winklige Auskragungen aufweisen. Durch diese massive Form werden die Fenster als ein Wasserstrom visualisiert, der durch die Felsen fließt. Um dieses Konzept zu unterstreichen, wählten die Architekten Corten-Stahl, ein massives, skulpturales und witterungsbeständiges Material, und verwendeten es als Regenschutzfassade.
Räume
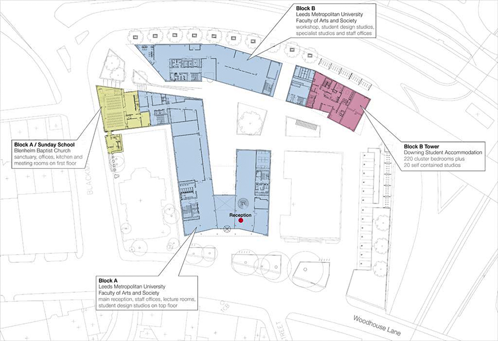
Broadcasting Place ist ein Mischnutzungsprojekt für die Leeds Metropolitan University und die Downing Property Group. Es bietet rund 10 200 m2 Büro- und Unterrichtsfläche, 240 Studentenwohnungen im Turmvolumen und eine Baptistenkirche in der nördlichen Ecke.
Das Gebäude besteht aus zwei ansteigenden Formen, die sich um den Umfang des Geländes schlängeln und auf die Höhen der bestehenden Gebäude reagieren und in einem dramatischen Turm gipfeln, der das südliche Ende des Geländes markiert und einen Blick auf die Stadt bietet.
Die unteren Gebäude haben 3 Stockwerke (Block A), angrenzend an das denkmalgeschützte Alte Funkhaus mit geringer Höhe, bis zu 5 Stockwerken. Die höchsten Gebäude, (Block B) fallen sie von 8 auf 6 Stockwerke ab, bevor sie mit 23 Stockwerken, verteilt auf 4 sich überlappende und auskragende Baukörper, den höchsten Punkt des Projekts erreichen.

Block A
In Block A bietet die Baptistenkirche Sonntagsunterricht an, im ersten Stock befinden sich Küche, Büros und Unterrichtsräume.
Andererseits befinden sich in diesem Block der Haupteingang der Leed Metropolitan University (über die Woodhouse Lane) und die Abteilungen Umwelt und Technologie mit Hörsälen, Seminarräumen, Büros und einem gemeinsamen Foyer, das sich über 3 bis 6 Stockwerke erstreckt.
Block B
Dies ist der Standort des Gebäudes für Kunst, Architektur und Design, der der A660 am nächsten liegt. Es bietet Platz für Werkstätten und Ateliers.
Der Turm der Residenz steht auf der Südseite. In dieser Studentenwohnanlage sind 22 der 23 Wohnungen in Einzelzimmer oder Zimmer mit eigenem Bad aufgeteilt, in denen Küche und Wohnzimmer gemeinsam genutzt werden.
Die Residenz verfügt über einen großen Gemeinschaftsraum für Besprechungen und Schreibtische zum Arbeiten.
Öffentlicher Raum
Der Standort stellte einige schwierige Herausforderungen dar, die mit einem Masterplan gemeistert wurden, der eine an das Stadtzentrum angrenzende Autobahn verwaltet und gleichzeitig ein zukünftiges Wachstum ermöglicht. Ein neuer öffentlicher Raum bildet ein wichtiges landschaftliches Element des Vorhabens, wie es seiner erstklassigen Lage angemessen ist.
Struktur und Materialien
Für die Konstruktion wurde hauptsächlich Cortenstahl für die Fassaden mit Stahlrahmen und strukturellem Isolierpaneelsystem (SIPS) verwendet.
Das Fassadensystem wurde detailliert auf die besonderen Materialeigenschaften von Cortenstahl abgestimmt. Die Zwischenräume zwischen den Bauteilen müssen mindestens 5 mm breit sein, damit kein Wasser eingeschlossen wird und Korrosion verursacht. Die Corten-Kassetten sind an einer modifizierten Version eines Standard-Regenschutz-Trägersystems befestigt, das an SIP-Platten angebracht ist.
Die Grundrisse sind so konzipiert, dass die natürliche Belichtung und Belüftung so weit wie möglich optimiert wird, da das Grundstück an die Autobahn grenzt.
Ein Schlüsselelement bei der Gestaltung der Gebäude sind die unregelmäßigen Fassaden, die so konzipiert sind, dass sie das Tageslicht optimal nutzen und die Sonneneinstrahlung reduzieren. Das Team führte eine innovative Analyse der Fassaden vor Ort durch, um die optimale Menge und Verteilung der Verglasung und Beschattung an allen Punkten zu berechnen. Dies sorgte für ein hohes Maß an natürlichem Licht und weniger Überhitzung. Zunächst wurde eine detaillierte Studie mit Computersimulationen und 3D-Bildern aller Außenfassaden durchgeführt, die es ihnen ermöglichte, einen anderen Ansatz für die Gestaltung jeder einzelnen Fassadenebene zu wählen. Das Ergebnis ist ein abwechslungsreiches Erscheinungsbild, das das Tageslicht optimiert und die Sonneneinstrahlung reduziert.























