Der Schuppen
Einführung
The Shed ist eine gemeinnützige Kulturorganisation, die originelle Kunstwerke in allen Disziplinen für alle Zielgruppen in Auftrag gibt, entwickelt und präsentiert.
Das Shed Centre im Bloomberg-Wolkenkratzer, das von Diller Scofidio + Renfro als Architekten in Zusammenarbeit mit den Innenarchitekten der Rockwell Group entworfen wurde, ist ein innovatives, 18 580 m2 großes Gebäude, das physisch umgestaltet wird, um die ehrgeizigsten Ideen der Künstler zu unterstützen.
Im Rahmen des Umwidmungsplans für Hudson Yards behielt die Stadt ein ihr gehörendes Grundstück an der West 30th Street zwischen der 10th und 11th Avenue, angrenzend an die High Line, für eine künftige kulturelle Nutzung.
Im Jahr 2008 veröffentlichte die Stadt eine Ausschreibung für eine neue Kultureinrichtung und wählte Diller Scofidio + Renfro als federführenden Architekten und die Rockwel Group als mitarbeitenden Architekten aus. Der prämierte Vorschlag sieht ein flexibles Gebäudekonzept vor, eine „infrastrukturelle Architektur“, die alle kreativen Disziplinen unter einem Dach beherbergen kann. The Shed, ein im Vergleich zu den Wolkenkratzern in Hudson Yards relativ kleines, achtstöckiges Gebäude, wurde an der Südseite des Hudson Yards-Geländes errichtet. Die Stadt ist Eigentümerin des Grundstücks, auf dem das Projekt gebaut wird, und hat für die Realisierung des Projekts einen Kapitalzuschuss bereitgestellt.
Standort
The Shed befindet sich im Bloomberg Building, 545 W. 30th Street zwischen 10th und 11th Avenue, New York, USA, angrenzend an den nördlichen Teil des Hochbahnparks High Line, neben der Skulptur The Vesselund in der Nähe des Galerienviertels Chelsea. Es ist mit 15 Hudson Yards verbunden, einem Hochhaus im Rahmen der Immobilienentwicklung für das neue Viertel Hudson Yards.
Hudson Yards, das jüngste Viertel New Yorks, liegt im Westen Manhattans entlang des Hudson River und erstreckt sich zwischen der 30th-34th Street und der 10th-12th Avenue. Es wurde auf dem Gelände eines ehemaligen Eisenbahndepots, den West Side Rail Yards, errichtet.
Konzept
Das Zentrum ist architektonisch vom Fun Palace inspiriert, einer einflussreichen, aber nicht realisierten Konstruktionsmaschine, die der britische Architekt Cedric Price und die Theaterregisseurin Joan Littlewood in den 1960er Jahren entworfen haben. Wie sein Vorgänger ist auch die offene Infrastruktur von The Shed flexibel, kann dauerhaft geöffnet bleiben und auf die Variabilität von Umfang, Medien, Technologie und die sich ändernden Bedürfnisse der Künstler reagieren.
Das Gebäude kann sich ausdehnen und zusammenziehen, indem das Teleskopdach auf Schienen gerollt wird. Das kinetische System von The Shed ist von der industriellen Vergangenheit der High Line und des West Side Railyard inspiriert. Durch die Verwendung konventioneller Bausysteme für die feste Struktur und die Anpassung der Portalkrantechnologie zur Aktivierung der äußeren Überdachung kann die Einrichtung bei Bedarf groß angelegte Innen- und Außenprogramme durchführen.
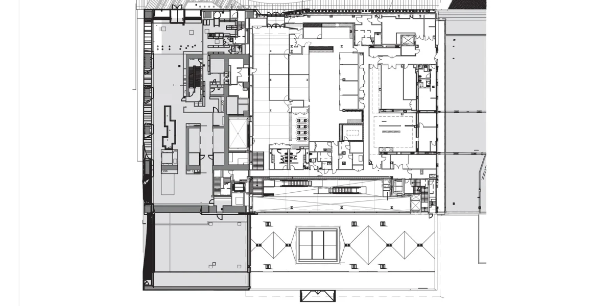
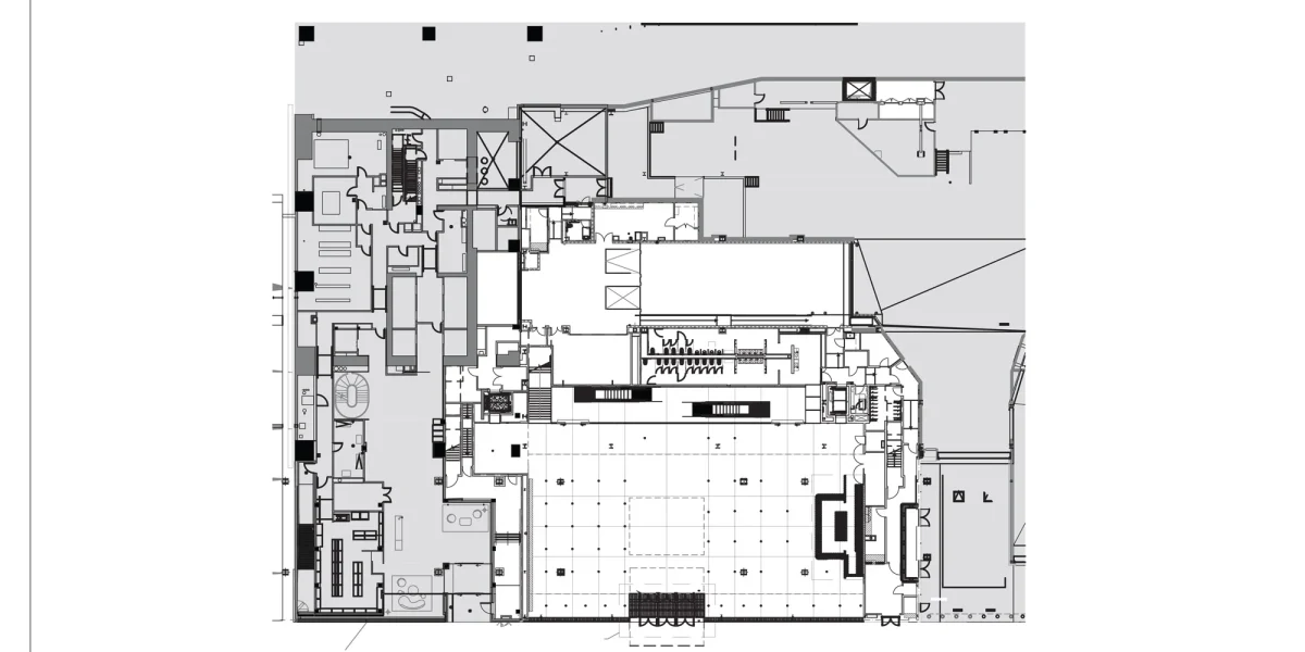
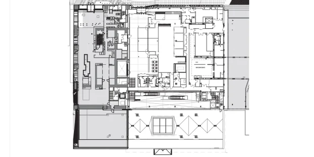
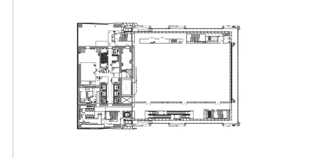
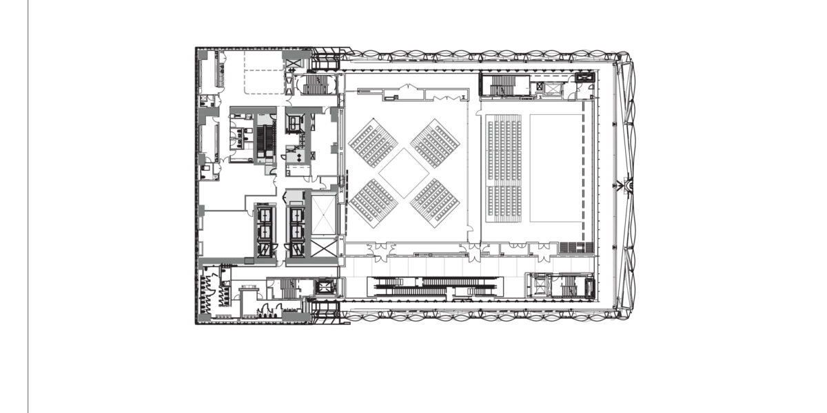
Räume
Der Haupteingang von The Shed befindet sich an der 30th Street unterhalb der High Line. Weitere Eingänge befinden sich auf dem öffentlichen Platz Hudson Yards. Der Eingang zum Hudson Yards-Platz des Schuppens befindet sich in der Nähe des U-Bahn-Eingangs 34th Street-Hudson Yards.
Wenn sie nicht im Einsatz ist, umhüllt die Außenhülle das Dach und die Wände des achtstöckigen „festen“ Gebäudes von The Shed. Die vier oberen Stockwerke befinden sich in und unter einem angrenzenden Hochhaus und bieten Ausstellungsflächen in Museumsqualität. Besondere Merkmale, wie z.B. bewegliche Dachelemente, eine spezielle Stahlfassade und Seilnetzwände, sind transparent und flexibel. Die vier unteren Stockwerke dienen dem restlichen Programm des Zentrums, einschließlich der internen Logistik wie Fracht und Betrieb.
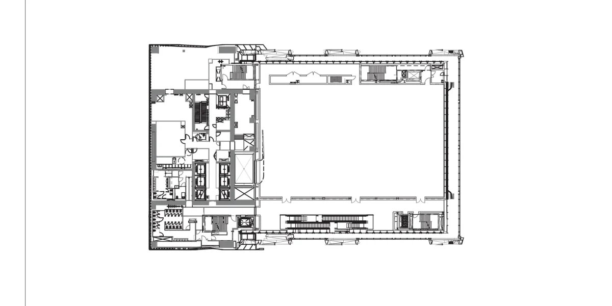
Das Basisgebäude beherbergt zwei Galerieebenen, das vielseitige Kenneth C. Griffin Theatre, The Tisch Skylights, das einen Proberaum und ein Kreativlabor für lokale Künstler sowie einen im Zenit gelegenen Veranstaltungsraum umfasst.
Die Galerien auf der ersten und zweiten Ebene mit einer Gesamtfläche von 2323 m2 sind große, säulenfreie Räume mit Museumsqualität.
Das Kenneth C. Griffin Theatre auf Ebene 3 bietet Platz für 500 Personen und ist in intimere Räume unterteilt, um den Anforderungen einer Vielzahl von Produktionen und Einrichtungen gerecht zu werden.
Die Oberlichter und das Tisch-Labor im obersten Stockwerk sind fantastische Räume für Veranstaltungen, Proben und die Entwicklung von Künstlern. Er bietet Platz für ca. 450 sitzende und 750 stehende Personen.
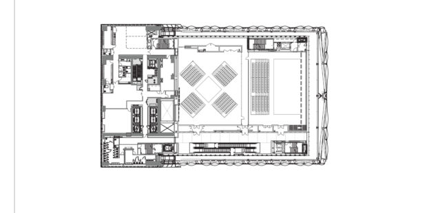
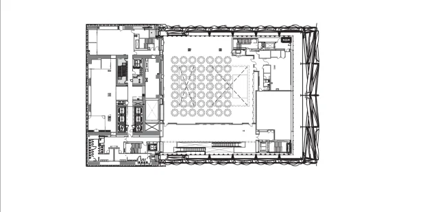
Wenn das teleskopische äußere Vordach auf den angrenzenden Platz ausgeklappt wird, entsteht ein großer und ikonischer Raum, der McCourt.
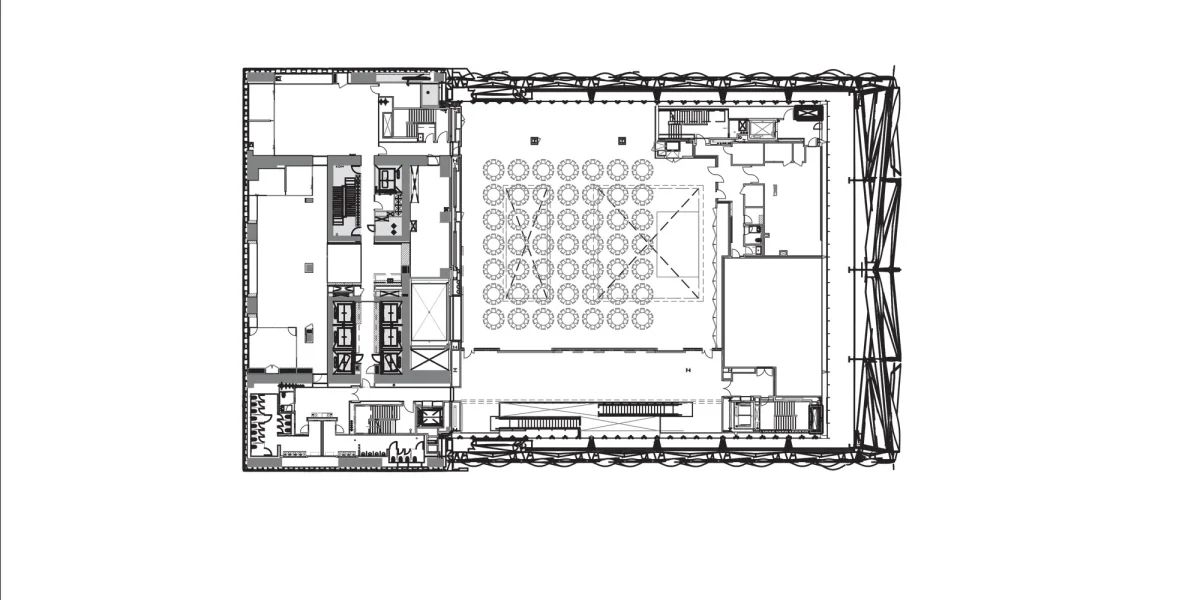
Der McCourt
The McCourt, der ikonischste Raum von The Shed, entsteht, wenn die bewegliche Außenhülle über dem angrenzenden Platz ausgefahren wird, um einen 1598 m2 großen licht-, klang- und temperaturgesteuerten Raum für groß angelegte Aufführungen, Installationen und Veranstaltungen zu schaffen. Er bietet Platz für 1200 sitzende und 2700 stehende Personen.
Bei Bedarf kann der Raum der beiden angrenzenden Galerien des Basisgebäudes hinzugefügt werden, wodurch sich die Zuschauerkapazität auf 3.000 Personen erhöht.
Das gesamte Schalendach fungiert als belebter Theaterhimmel mit durchgehendem Rigging und struktureller Kapazität. Große bewegliche Türen auf der Plaza-Ebene ermöglichen, wenn sie geöffnet sind, den Kontakt mit den öffentlichen Bereichen im Osten und Norden.
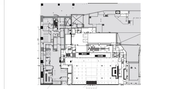
Platz
Wenn der Rohbau von The Shed über dem Sockelgebäude liegt, wird der 1812 m2 große Platz zu einem offenen öffentlichen Raum, der für Außenprogramme genutzt werden kann. Die Ostfassade kann als Kulisse für die Projektion mit Licht- und Tonunterstützung dienen. Der Platz ist mit verteilten Stromversorgungen für Außenveranstaltungen ausgestattet.
In diesem Raum präsentiert The Shed die erste Ausstellung visueller Kunst „In Front of Itself“, ein großformatiges, ortsspezifisches Werk des Künstlers Lawrence Weiner, das aus speziell angefertigten Pflastersteinen besteht.
Andere Räume
Die nicht öffentlich sichtbaren Räume von The Shed, zu denen Büros, Technikräume, Umkleideräume und Lagerräume gehören, befinden sich auf Ebene 1 und in den unteren Etagen des westlich gelegenen Wohnturms 15 Hudson Yards. Diese Anordnung ermöglicht es, den größten Teil des Basisgebäudes von The Shed für einen programmierbaren Raum für Kunst zu nutzen.
Struktur
Den Architekten und Ingenieuren war von Anfang an klar, dass die Nachrüstung für einen zukunftsorientierten, flexiblen Raum vom Bodenbelag bis zur Beleuchtung, Akustik und Temperatur eine ständige Teamarbeit erfordern würde. Die vielen beweglichen Teile erforderten ein integriertes Team aus Bau- und Fassadeningenieuren, Architekten, Experten für Baubetreuung, Bauunternehmern und Kinetikspezialisten, die vom ersten Tag an zusammenarbeiteten.
Die Idee: eine ausziehbare Außenhülle, die den angrenzenden Platz umschließt und so einen großen, offenen, multifunktionalen Raum schafft.
Die Ausführung: eine Struktur, die leicht genug ist, um zu reisen, und ein Mechanismus, der effizient genug ist, um sie zu bewegen.
Mobiles Wohnen
Das Team setzte auf puren Einfallsreichtum mit einer leichten Anspielung auf die Industriegeschichte des Viertels. Das mobile Gehäuse fährt auf einer doppelten Radspur, die auf der Technik von Portalkränen basiert, wie sie in Schifffahrtshäfen und Bahnsystemen üblich sind.
Eine maßgefertigte Stahlhülle, die von einem ETFE-Ballonpaneelsystem umschlossen ist und 35 m auf zwei 10 Zoll breiten, thermisch geschweißten Stahlschienen rollt. Acht Sätze maßgefertigter Stahlräder mit einer Höhe von jeweils 1,83 m sind sorgfältig verjüngt, um die Struktur reibungslos an ihren Platz zu schieben.
Die Räder sind zu Gruppen zusammengefasst, den so genannten Drehgestellen, die den gesamten 4.000 Tonnen schweren Wagenkasten tragen und von sechs 15-PS-Motoren angetrieben werden. Das „Draußen“ wird in nur fünf Minuten zum „Drinnen“ und verdoppelt die Grundfläche des Gebäudes mit 1570 m2, The McCourt. Die riesigen beweglichen Türen lassen sich hochklappen und verwandeln die Überdachung in einen offenen, überdachten Pavillon.
Bauwesen
Der Bau von The Sheld begann, nachdem Senkkästen versenkt worden waren, um einen Bahnsteig über den Gleisen des darunter liegenden Eisenbahndepots zu errichten.
Die Plattform, die die Türme trägt und aus 16 Brücken besteht, wurde Ende 2014 fertiggestellt. Mit dem Bau des Gebäudes selbst wurde Mitte 2015 begonnen. Der einziehbare Rahmen wurde 2017 fertiggestellt. Obwohl in ersten Berichten von einer Eröffnung 2017 oder 2018 die Rede war, wurde in einem Bericht aus dem Jahr 2015 das Eröffnungsdatum auf 2019 festgelegt. Im Mai 2017 deutete das Bautempo darauf hin, dass die Eröffnung für 2018 oder 2019 geplant war. Sie wurde schließlich am 5. April 2019 eingeweiht.
Materialien
Das Gebäude soll das LEED-Silber-Zertifikat erhalten und die New Yorker Energievorschriften um 25 % übertreffen, was für alle neuen Gebäude auf städtischem Grund oder mit städtischen Mitteln vorgeschrieben ist.
Der freiliegende Stahlgitterrahmen des mobilen Gehäuses ist mit lichtdurchlässigen Polstern aus haltbarem, leichtem Polymer auf Teflonbasis, dem Ethylentetrafluorethylen (ETFE), ausgekleidet. Mit den thermischen Eigenschaften von Isolierglas bei einem Bruchteil des Gewichts lässt das lichtdurchlässige ETFE Licht durch und hält Windstärken von Orkanstärke stand. Mit einer Länge von teilweise fast 21 Metern gehören die ETFE-Paneele von The Shed zu den größten, die jemals hergestellt wurden.
Die Überdachung ist energiebewusst konzipiert und verwendet ein Strahlungsheizungssystem innerhalb der Platzkonstruktion sowie ein variables Umluftheizungs- und -kühlungssystem, das die bewohnten Teile der Überdachung mit maximaler Effizienz versorgt. Das Plaza verfügt über eine Fußbodenplatte mit Strahlungswärme.
Das kinetische System von The Shed ist von der industriellen Vergangenheit der High Line und des West Side Rail Yard inspiriert. Das kinetische System, das auf Portalkränen basiert, wie sie in Schifffahrtshäfen und Eisenbahnsystemen üblich sind, besteht aus einem Schlitten auf dem Basisgebäude und Drehgestellrädern, die auf einem 83 m langen Schienenpaar auf Ebene 2 (Plaza Level) geführt werden.
Es wurden ausgefeilte thermische Analysen der riesigen Drehgestelle durchgeführt, um ihr Brandverhalten vorherzusagen und zu zeigen, dass sie die vorgesehenen Lasten ohne unansehnlichen Brandschutz sicher tragen können.



































