Gebäude 875 N. Michigan Ave (John Hancock Center)
Einführung
Das Gebäude 875 North Michigan Avenue, das zum Zeitpunkt seiner Eröffnung als John Hancock Center bekannt war, ist das erste gemischt genutzte Hochhaus der Welt und eine architektonische Ikone, die für die enge Zusammenarbeit zwischen dem Architekten und dem Eigentümer des Gebäudes steht. Bruce Grahamvon Skidmore, Owings & Merrill und der Statiker Fazlur Khan.
„…Das Gebäude ist nicht nur für Chicago wichtig, sondern auch für städtische Skylines auf der ganzen Welt. Als es in den 1970er Jahren fertiggestellt wurde, veränderte es das, was Architekten und Ingenieure für möglich hielten…“. (Jesse Dukes, WBEZ Chicago)
Der Bau des Turms, mit dem 1964 begonnen wurde, wurde 1967 wegen eines Fehlschlags des innovativen technischen Verfahrens, bei dem der Beton in Phasen gegossen wurde, abgebrochen. Der Fehler wurde entdeckt, als das Gebäude 20 Stockwerke hoch war. Die Ingenieure planten, das gleiche System auch für die übrigen Anlagen zu verwenden. Dies zwang den Eigentümer, die Entwicklung zu stoppen, bis das technische Problem gelöst werden konnte, und führte zu einer Kreditkrise, die den ursprünglichen Eigentümer, Jerry Wolman, in den Konkurs trieb. John Hancock übernahm das Projekt, bei dem der ursprüngliche Entwurf, der Architekt, der Ingenieur und der Hauptauftragnehmer beibehalten wurden.
Als das Gebäude fertiggestellt wurde, war es das höchste Gebäude der Welt außerhalb von New York City. Jahrelang war es das höchste Gebäude in Chicago und das sechsthöchste in den Vereinigten Staaten, nach dem Willis Tower, dem Empire State Building, dem Bank of America Tower, dem Trump Tower Chicago und dem Aon Center.
Auszeichnungen
Es ist Mitglied der World Federation of Great Towers und hat mehrere Auszeichnungen für seinen unverwechselbaren Stil erhalten, darunter den AIA National 25 Year Award des American Institute of Architects im Mai 1999.
Weitere Auszeichnungen: 1970 AIA Chicago Chapter und Chicago Association of Commerce and Industry, Distinguished Building Award: Office Buildings, 1971 American Institute of Steel Construction, Architectural Award of Excellence, 1992 AIA Chicago Chapter.
Standort
Der in der Region als „Big John“ bekannte Turm befindet sich in der 875 North Michigan Av, einer Straße, die sich in den 1970er bis 1980er Jahren zum wichtigsten Handelskorridor der Stadt entwickelte, im Stadtviertel Streeterville. ChicagoIllinois, Vereinigte StaatenDas Viertel ist ein prestigeträchtiges Viertel mit Wohnungen, Geschäften, Büros, Luxushotels, Restaurants und Kunstgalerien.
Konzept
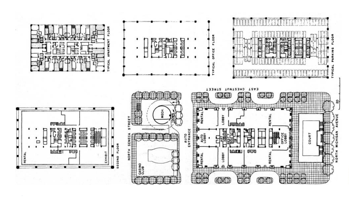
Der Wunsch, die Mischung der Aktivitäten an dem gewählten Standort fortzusetzen, führte zunächst zu der Idee, einen 70-stöckigen Wohnturm und einen 45-stöckigen Büroturm zu bauen. Die beiden Türme hätten jedoch den größten Teil des Geländes eingenommen und die Privatsphäre und die Tageslichtverhältnisse beeinträchtigt. Außerdem wären die Wohnungen im unteren Stockwerk durch den Lärm von der Straße gestört worden. Daher wurde beschlossen, einen einzigen Turm zu bauen, in dem die Büros in den unteren Etagen und die Wohnungen in den oberen Etagen untergebracht werden sollten.
Die konische Form des Turms wurde gewählt, um den unterschiedlichen Flächenanforderungen gerecht zu werden, die von unten nach oben abnehmen, von den Eingangs- und Geschäftsbereichen im unteren Bereich über die kleinen Wohnungsgruppen in mittlerer Höhe bis hin zu den großen Wohnungen im oberen Bereich, wo relativ wenig Platz für Nebenräume mit künstlicher Beleuchtung und Fenstern mit Blick auf die Stadt benötigt wird. In der Tradition Chicagos folgt die Form des Gebäudes seiner Funktion.
Räume
Heute gehören zu den Mietern des Gebäudes eine Kombination aus rund 700 Wohnungen (92 903,04 m2), Einzelhandels- und Büroflächen (74 322 m2), ein Café und Restaurants, von denen sich eines in der 95.
Da das Grundstück in unmittelbarer Nähe des Michigansees liegt, mussten die 7 Parkebenen des Gebäudes aufgrund des Grundwasserspiegels in den ersten Stockwerken über dem Straßenniveau untergebracht werden. Die Zufahrt zum Parkhaus erfolgt von Osten über eine markante spiralförmige Rampe.
Es folgen 16 Stockwerke für den Einzelhandel, 29 für Büros und 48 für Wohnungen und sonstige Nebengebäude.
Der sechsstöckige Gipfel des Gebäudes beherbergt eine Bar/Restaurant, eine Aussichtsplattform und mechanische Anlagen, darunter ein Paar Radio- und Fernsehantennen, womit der Turm eine Gesamthöhe von 459 m erreicht. Die Wohnungen reichen von 44 bis 92. In der Lobby im 44. Stock befindet sich das höchste Hallenbad der Vereinigten Staaten.
In der 94. Etage, 313,81 m über dem Meeresspiegel, befindet sich das John Hancok Observatory, von dem aus Besucher einen 360-Grad-Blick auf die Stadt genießen können, sowie Chicagos einziger Freiluft-Walkway.
An heißen Sommertagen ist der ellipsenförmige Platz, der auf Straßenniveau halb versunken ist, eine Oase inmitten der Stadt mit einem üppigen Garten und einem 3,7 m hohen Wasserfall. Von der Straße führt der Platz über eine Treppe hinunter zu den Restaurants und Geschäften im Erdgeschoss. Der Zugang zur Sternwarte befindet sich ebenfalls auf diesem Platz. Ursprünglich war der Platz rechteckig, wurde aber 1995 im Rahmen einer Neugestaltung in eine halbrunde Form umgestaltet. Damals wurde der ursprüngliche Travertinmarmorsockel des Gebäudes durch eine graue Granitverkleidung ersetzt.
Struktur
Skidmore, Owings & Merrill wählte eine kühne Form für 875 N. Michigan Ave.
Das Gebäude, das zu den berühmtesten Gebäuden des strukturellen Expressionismus gehört, wurde zu einem technischen Wahrzeichen, da es das erste Gebäude war, bei dem das speziell für dieses Gebäude entwickelte Diagonalrohrsystem verwendet wurde. Es ist eine Weiterentwicklung des Rohrrahmensystems und ermöglicht größere Stützenabstände und damit größere Fenster, wie sie für den Stahlbau typisch sind.
Stahlsäulen und -träger sind um den gesamten Umfang des Wolkenkratzers herum angeordnet, wobei riesige diagonale Streben an den Außenwänden für zusätzliche Windfestigkeit sorgen.
Strukturell erhält der durch Rohre dargestellte äußere Stahlrahmen die erforderliche Steifigkeit durch die Diagonalen und die Geschossdecken, die mit den Schnittpunkten der Diagonalen und der Eckstützen zusammenfallen. Entsprechend der funktionalen Organisation hat dieser rohrförmige Körper seinen größten Querschnitt dort, wo die Belastungen durch Windkräfte am größten sind. Die konische Form des Gebäudes trägt ebenfalls zur Verringerung der Oberflächen- und Windlasten bei. Fazlur war besorgt, dass die Anwohner die Bewegungen des Gebäudes spüren könnten. Nach einem Besuch im Chicagoer Museum of Science and Industry entwickelte er einen Test, um sicherzustellen, dass die Bewohner des John Hancock Centers bei starkem Wind keine Unannehmlichkeiten verspüren würden.
Die Außenrahmen wirken als tragende Wände, wobei die seitlichen Lasten und die Schwerkraft gleichmäßig auf die Stützen verteilt werden, so dass gleichmäßige Kräfte auf die luv- und leeseitigen Stützen wirken. Die X-Aussteifung an der Außenseite des Gebäudes ist in der Regel 18 Stockwerke hoch und ermöglicht es, den Windlasten zu widerstehen. Ein zweites Trägersystem füllt die Aussteifungsplatten aus.
Der Entwurf erwies sich als äußerst effizient in Bezug auf den Materialeinsatz: Die Stahlmenge von etwa 13,61 kg pro 0,09 m2 Geschossfläche war nicht größer als bei einem herkömmlichen 50-stöckigen Turm. Die Säulen, Diagonalen und Verbindungselemente bilden zusammen einen klaren architektonischen Ausdruck, für den das Gebäude noch Jahrzehnte nach seiner Fertigstellung bekannt und relevant ist.
Windlast
Nachdem Fazlur Rahman Khan sich mit Meteorologen beraten und beim US-Wetteramt nachgeforscht hatte, entwickelte er eine Konstruktion mit einem Faktor von 1,25, der über der damaligen städtischen Bauordnung von Chicago lag. Die konische Form des Gebäudes trägt zur Verringerung der Windlasten bei.
Seismische Belastung
In einem erdbebengefährdeten Gebiet war das Bauwerk stabil genug, aber Khan kam später zu dem Schluss, dass das System für den Einsatz in erdbebengefährdeten Gebieten zu steif und nicht dehnbar genug sein würde.
Fundamente
Wegen der großen Höhe von 344 m bis zum Dach mussten die Ingenieure 239 Senkkästen bauen, um zu verhindern, dass das Gebäude im weichen Boden versinkt. Diese Senkkästen reichen bis zum Grundgestein hinunter. Einer von ihnen reicht 58,22 m in die Tiefe.
Darüber hinaus bestand das Gründungssystem aus einer Betonplatte im Untergeschoss, einer Bodenverdichtung und einer Betonplatte mit doppeltem Gitter.
Da es sich bei dem Boden um das Bett eines alten Sees handelt, setzte sich die lehmige Masse bis in 37-38 m Höhe fort, so dass den Fundamenten besondere Aufmerksamkeit gewidmet werden musste.
Konstruktion der Schubladen
Während die Schächte für die Senkkästen gegraben wurden, verlegte man Rohre, um Erde und Wasser zurückzuhalten. Als der Beton gegossen wurde, wurden die Rohre zur Wiederverwendung entfernt, wobei einige Beton- und Stahlkübel übrig blieben, um Wasser oder Erde zurückzuhalten.
Aufgrund von Setzungen während des Baus mussten alle Senkkästen überprüft und 26 von ihnen neu gebaut werden.
Materialien
Der Turm in der 875 N. Michigan Ave. besteht hauptsächlich aus Stahlsäulen, -rohren und -trägern sowie aus Glas. Für die Fundamente wurde Stahlbeton verwendet.
Jedes Paar verstrebter, diagonaler Rohre erstreckt sich über 18 Stockwerke und bietet nicht nur strukturelle Unterstützung, sondern verleiht einem rechteckigen Muster aus Säulen und Trägern, das durch einen schwarz eloxierten Aluminiumrahmen und Ausfachungswände aus getöntem Glas hervorgehoben wird, auch visuelles Interesse. Die Stützen, Balken und Diagonalrohre sind durch schwere Stahlbewehrungsplatten verbunden. Der Stahl der 46.000 Tonnen schweren Gebäudestruktur reicht aus, um 33.000 Autos herzustellen. Sehr langsame Kräne, die bisher nur im Brückenbau verwendet wurden, mussten eingesetzt werden, um die Träger an ihren Platz zu heben.
Ein Band aus weißen Lichtern an der Spitze des Gebäudes ist nachts in ganz Chicago zu sehen und wechselt zu verschiedenen Anlässen die Farbe. Zu Weihnachten zum Beispiel sind die Farben grün und rot. Wenn eine Sportmannschaft aus dem Großraum Chicago in den Playoffs weit kommt, werden die Farben an die Farben der Mannschaft angepasst.
Der Open-Air-Walkway im 94. Stockwerk wurde mit einer von der NASA zugelassenen Stahlverkleidung gebaut. Die von Otis hergestellten Aufzüge, die zum Observatorium des John Hancock Centers führen, fahren die 96 Stockwerke mit einer Höchstgeschwindigkeit von 33 km/h (9,1 m/s).
Die Eigentumswohnungen verfügen über eine Fußbodenheizung in den 2,64 m hohen Decken.
1995 wurde das Foyer im Erdgeschoss mit Oberflächen aus Travertin, schwarzem Granit und strukturiertem Kalkstein neu gestaltet.
Video
Drawings
Photos
Fotos archivo
-
- Looking at construction on the John Hancock Center, 875 North Michigan Avenue, Chicago, Illinois,from Superior Street.




































