Hauptsitz Japan Tobacco International (JTI)
Intruduktion
Der neue Hauptsitz von Japan Tobacco International (JTI) in Genf ist ein nachhaltiges Gebäude mit Stahlrahmen, das von Grünflächen umgeben ist.
Der Siegerentwurf des Wettbewerbs beweist das Engagement der Skidmore, Owings & Merrill (SOM) mit integriertem Design, Nachhaltigkeit und innovativen Arbeitsplatzlösungen durch die Zusammenlegung von vier bestehenden JTI-Einrichtungen in ein einziges, wegweisendes Gebäude in Zusammenarbeit von Architektur-, Hochbau- und Innenarchitekturteams.
Das Projekt, das zu den nachhaltigsten in Europa gehört, wurde für seine positiven Auswirkungen auf das Gebiet anerkannt und wird hoffentlich die künftige Entwicklung in diesem Gebiet inspirieren.
Sein Design wurde mit zahlreichen Preisen und Auszeichnungen bedacht. Unter anderem und im Laufe des Jahres 2016 den Award of Merit for Structural Systems Design, der American Society of Civil Engineers-Architectural Institute, den Award of Merit for Architectural Engineering Integration oder den International Architecturre Award, Chicago Athenaeum 2016. Im Jahr 2017 wurde er mit dem Excellence in Structural Engineering Award ausgezeichnet.
Standort
Der neue Hauptsitz von JTI liegt mitten im Grünen in der Rue Kazem-Radjavi 8 im Stadtteil Secheron, einem ehemaligen Industriegebiet in der Nähe der Büros der Vereinten Nationen in Genf, Schweiz.
Konzept
Die Architektur des Gebäudes nimmt Bezug auf die unmittelbare Umgebung, den Genfer See und die nahe gelegenen Alpen, und schafft eine starke Identität mit seinen Nachbarn, während sie gleichzeitig sensibel auf die geringe Höhe der Umgebung reagiert.
Das neungeschossige Gebäude wurde als eine einzige klare Form konzipiert, anstatt das große Bauwerk mit verschiedenen visuellen Elementen zu unterteilen, wie es bei einem Projekt dieser Größe oft der Fall ist.
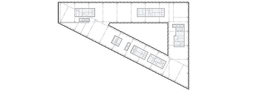
Die schwierige dreieckige Form des Grundstücks, auf dem es gebaut werden sollte, und die Notwendigkeit, den nutzbaren Raum zu maximieren, waren ausschlaggebend für den dreieckigen Entwurf von SOM architects. Die kantige Form ergibt sich aus zwei hochgezogenen Ecken, die der Struktur ihre schrägen Profile verleihen.
Räume

Das dreieckige Gebäude umschließt einen Innenhof, wobei zwei Ecken auskragen und die beiden anderen den Boden berühren. Die erhöhten Nordost- und Südecke des Gebäudes eröffnen einen großen öffentlichen Raum von 8.162 m2, der eine direkte Fußgängerverbindung zum Nahverkehrsknotenpunkt ermöglicht.
Die beeindruckenden, freitragenden Räume mit Spannweiten von bis zu 60 bzw. 75 m schaffen ein einzigartiges Gefühl der Ankunft für Mitarbeiter und Besucher. Von der fünfstöckigen Eingangshalle bis zum Panoramarestaurant mit Blick auf den Bodensee zieht sich eine durchgehende Erschließungsstraße durch das Gebäude. Genf31 offene Arbeitsbereiche, 66 Besprechungsräume, 23 Coffee Points, Gastronomie, Business Center und Auditorium, Fitnessraum, 2 Dachterrassen und eine Reihe von Sozialräumen. Das Gebäude verfügt über 1.162 m2 für einen Kindergarten mit einer Kapazität von 104 Kindern.
Im Untergeschoss mit einer Fläche von 9.900 m2 befindet sich ein Parkplatz mit einer Kapazität für 158 Autos, 150 Fahrräder und 150 Motorräder.
Mobilität
Ein durchgehender Kreislauf bedeutet, dass es nur wenige Sackgassen im Gebäude gibt. Dieser Weg zeichnet sich durch die Verwendung einer Farbpalette und von Möbeln mit robuster Oberfläche aus, die als Orientierungs- und Verbindungselemente dienen sollen. International bekannte Künstler wie Liam Gillick und Sol LeWitt haben sich an dieser Dekoration beteiligt.
Das Innenarchitekturkonzept maximiert die Interkonnektivität sowohl vertikal als auch horizontal und schafft Gemeinschaftsräume für die über 1000 Mitarbeiter. Flexible Räume, die langfristig an die Bedürfnisse des Unternehmens angepasst werden können.
Die Angestellten benutzen 9 Aufzüge und der Dienst 3 Aufzüge.
Struktur
Die Struktur des Gebäudes ist mit einem großen Überhang gebaut. Zwei der gegenüberliegenden Ecken sind erhöht, so dass ein zentraler Innenhof freie Sicht bietet und Fußgänger das Gelände durchqueren können.
Der offene Innenraum wurde durch ein innovatives technisches Design erreicht, ein peripheres Torsionsrohr-Struktursystem, das 18 m lange, stützenfreie Bodenplatten ermöglicht und damit ein Maximum an interner Flexibilität und zukünftiger Anpassungsfähigkeit bietet.
Zur Aufnahme der Fassadenlasten wurden sphärische Stahllager verwendet, die die vertikale Last des Bauwerks bis zu 85.000 kN und die horizontale Last durch die Auskragung bis zu 9.400 kN abtragen. Dank der speziellen konkaven/konvexen Konstruktion ermöglichen diese Lager auch eine reibungslose Drehung um drei Achsen.
Fassade
Das Gebäude verfügt über eine innovative geschlossene Hohlraumfassade (CFF), ein Vorhangfassadensystem, das auf die äußeren Witterungsbedingungen reagiert und gleichzeitig den Tageslichteinfall maximiert und außergewöhnliche Ausblicke bietet.
Dieses System besteht aus einer inneren Dreifachverglasung und einer äußeren Einfachverglasung mit einem Stoffrollo im Zwischenraum. Die Paneele sind versiegelt und mit einer Druckluftzufuhr für gefilterte und entfeuchtete Luft ausgestattet, um Kondensation und Wärmestau im Inneren zu verhindern, auf die Anforderungen der jahreszeitlich bedingten klimatischen Veränderungen zu reagieren und den Tageslichteinfall in den Arbeitsbereich zu maximieren. Das CCF-System stellt den Komfort der Bewohner in den Vordergrund und reduziert den Energiebedarf und die Kohlenstoffemissionen des gesamten Gebäudes.
Materialien
Für das Bauwerk wurden 5.700 Tonnen Stahl, 12.000 Stahlträger, 190 Verbindungsknoten, mehr als 500.000 Schrauben und 11.200 m3 Beton verwendet.
Im Inneren ziehen sich Marmorplatten in einer Palette von Grautönen durch die Räume, gelegentlich unterbrochen durch Wände und Möbel in helleren Farben.
Fassade
Die 1.277 mosaikartigen Glasscheiben in 143 verschiedenen Größen, die vom Boden bis zur Decke reichen und 3 m breit und 4,3 m hoch sind, bilden die äußere Vorhangfassade. Das Standardgewicht jeder dieser Platten beträgt 1,5 Tonnen und sie bedecken eine Fläche von 18.500 m2.
Umwelt
Das Gebäude entspricht dem Schweizer Minergie-Standard. Es ist mit LED-Beleuchtung ausgestattet, um das Tageslicht in den Innenräumen zu maximieren und Energie für Heizung und Kühlung zu sparen.
Geothermische Heizung
104 Brunnen mit einer Tiefe von 257 m und Anschluss an das Wasserpumpensystem von Genève-Lac-Nations (GLN) als Reserve.
Das Gebäude kann an das Wärmesystem von Genève Lac Nations (GLN) angeschlossen werden, ein innovatives Netzwerk, das das tiefe Wasser des Genfer Sees nutzt, um die Gebäude in der Umgebung mit individuellen Wärmepumpen zu heizen und zu kühlen.



















































