Architekt
Tragwerksplaner
Tezuka Architekten, MASAHIRO IKEDA co
Elektro-Ingenieur
Masahide Kakudate
Bauunternehmen
Kajima Gesellschaft
Entworfen in
2004
Baujahr
2005
Etagen
10
Landfläche
1035,92 m²
Bebaute Fläche
288.0 m²
Lage
Okayama, Japan

Einführung

Tezuka Architects ist ein in Tokio ansässiges Büro, das von Takaharu Tezuka und seine Frau Yui. Sie haben sich auf die Gestaltung von Räumen für Kinder spezialisiert, sind aber auch in den Bereichen Wohnen, Museen, Krankenhäuser und Büros tätig. Sie wurden mit dem UNESCO Global Award for Sustainable Architecture und anderen nationalen Preisen wie dem Architectural Institution Award, dem Japan Institute of Architects Award, dem Good Design Gold Award und dem Children’s Environment Association Award ausgezeichnet.

Obwohl ihre Haupttätigkeit die architektonische Gestaltung ist, halten sie weltweit Vorträge und erhalten Angebote von der OECD oder der UNESCO, ihre Dissertationen darüber vorzustellen, wie man die Welt durch Architektur verbessern kann. Ihre Ansätze vor allem in kinderfreundlichen Räumen haben ihnen internationale Anerkennung verschafft, und ihre Theorien zu diesem Thema wurden als „Yellow Book“ der Harvard University veröffentlicht.

Situation

Das Floating Roof House ist ein 2005 fertiggestellter Wohnbau in Okayama, Japan.

Die Residenz befindet sich am Fuße eines Hügels. Mit einem dichten Wald auf der Rückseite und einem weiten Blick nach vorne. Die kontinuierliche Neigung nach innen dank der schwimmendes Dach, das die beiden Seiten des Hauses verbindet. Am Rande des Geländes führen Stufen hinunter und hinaus in das Wohnviertel von Okayama.

Konzept

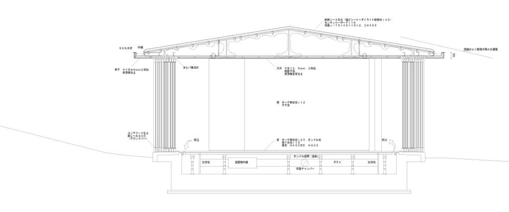
Die Architekten wollen den Eindruck eines fliegenden Flugzeugs mit den Hügeln im Hintergrund erwecken, das bis an den Rand des Geländes reicht. Das ebenerdige Dach, das über die Wände des Hauses hinausragt, scheint über der Hauptstruktur zu schweben, und von unten betrachtet ist nur sein 40 Meter langer und nur 16 Zentimeter dicker Rand zu sehen.

Räume

Von außen betrachtet ist das Grundstück in zwei unterschiedliche Bereiche unterteilt. Der Zugang erfolgt von Westen her, wo sich der Parkplatz befindet und die natürliche Neigung des Geländes nahezu unberührt geblieben ist. Von hier aus sorgen zwei große Stützmauern für Privatsphäre zum Rest des Hauses und ermöglichen gleichzeitig die Angleichung des Bodens, um die Ebene zu schaffen, auf der sich Haus und Garten befinden.

Die Innenräume sind linear organisiert, beginnend mit einem überdachten Parkplatz an einem Ende, von dem aus man über die Küche in die Wohnung gelangt, weiter in das Esszimmer und das Wohnzimmer mit Toilette und schließlich in den Nachtbereich, in dem sich ein festes Schlafzimmer mit Bad und weitere Mehrzweckräume befinden, die durch bewegliche Paneele verbunden oder geteilt werden können, die bei Bedarf als Büro, Spielzimmer oder zusätzliche Räume genutzt werden können.

Bemerkenswert ist, dass das Dach zwar als durchgehende Ebene im gesamten Raum beibehalten wird, der Boden jedoch das Niveau ändert, um sich dem Gefälle des Geländes anzupassen, wodurch die Innenhöhe zum Nachtbereich hin abnimmt.

Insgesamt misst das Dach ca. 40 x 9 Meter, die Überdachungen umrahmen jedoch einen Raum von ca. 33 x 4 Metern, wodurch an einem Ende des Hauses eine überdachte Veranda entsteht, die als Parkplatz dient, und an den übrigen drei Seiten ein überdachter Umfang von ca. 1 Meter entsteht. Obwohl der überdachte und geschlossene Raum ca. 33 x 4 Meter groß ist, kann das komplexe System von Schiebetüren, das das Haus umgibt, auf einer Seite vollständig zurückgezogen werden, wodurch der Raum visuell bis an die Grenzen der Traufe und der Natur erweitert wird.

Struktur

Die tragenden Kerne, die von der Küche auf der einen und dem Schlafbereich auf der anderen Seite gebildet werden, stützen das Giebeldach, das am Umfang nur 16 Zentimeter und in der Mitte fast 1 Meter dick ist.

Das Dach verfügt außerdem über eine integrierte umlaufende Rinne, die vom Wohnbereich oder vom Garten aus nicht wahrnehmbar ist und das Regenwasser auffängt, so dass keine Rinne auf der unteren Ebene des Daches erforderlich ist, die die Kontinuität dieser Ebene unterbrochen hätte.

Materialien

Das vorherrschende Material ist zweifelsohne Holz. Wie um eine monochrome Atmosphäre zu schaffen, wurde der Innenraum vom Boden bis zu den Wänden mit Holz verkleidet, einschließlich der Möbel und der Fenster- und Türrahmen, bei denen nicht nur Holzprofile, sondern auch Holzfensterläden aus demselben Material verwendet wurden. Die einzige Ausnahme von dieser Regel im Innenraum ist die Dachfläche, die weiß gestrichen wurde.

Für die Konstruktion wurden auch Stahl und Beton verwendet, die sowohl das Fundament des Hauses als auch das Dach bilden.

Drawings

Tezuka Architects

[gallery ids="319127,319117,319122"]

Photos

Tezuka Architects

[gallery ids="319132,319142,319137,319147,319152"]
Cubierta
Planta
Sección