Jedermann-Theater
Einführung
Das Everyman Theatre in Liverpool, ein beeindruckendes und innovatives Bauwerk von Haworth Tompkins Architects, wurde sorgfältig entworfen, um der renommierten Produktionsfirma, die es beherbergt, als Beispiel für nachhaltige Architektur zu dienen. Dieses hochmoderne Theater, das Umweltbewusstsein verkörpert, verbindet nahtlos modernstes Design mit umweltfreundlichen Praktiken, setzt neue Maßstäbe für nachhaltige Aufführungsräume auf der Weltbühne und zeigt die transformative Kraft einer durchdachten und verantwortungsvollen Architektur.
Die Arbeiten umfassen ein anpassungsfähiges Auditorium mit 400 Sitzplätzen, einen kleineren Entwicklungs- und Aufführungsraum, einen großen Proberaum, öffentliche Foyers, Ausstellungsräume, Catering- und Bar-Einrichtungen sowie Büros, Werkstätten und Nebenräume. Die gesamte Fassade ist ein großes gemeinschaftliches Werk der öffentlichen Kunst.
Der Entwurf kombiniert eine thermisch massive Konstruktion mit einer Reihe natürlicher Belüftungssysteme und einer technischen Infrastruktur mit niedrigem Energieverbrauch, die es ihnen ermöglichte, für dieses komplexe und dicht bewohnte städtische Gebäude eine BREEAM-Excellence-Bewertung zu erreichen.
Geschichte
Das 1837 als Kapelle erbaute Gebäude, das ursprünglich Hope Hall hieß, wurde nach einer Renovierung im Jahr 1960 zu einem Kino-Theater, bis es in den 1970er Jahren nach einer weiteren Renovierung zum beliebten Liverpool Everyman Theatre wurde. In den folgenden vierzig Jahren wurde das Theater zum Zentrum des Bohème-Lebens in der Stadt und spielte eine Schlüsselrolle für die Karriere vieler Schauspieler. Zur Jahrtausendwende brauchte das alte Gebäude einen neuen Anstrich, und so schrieb der Liverpool and Everyman Theatres Trust eine europäische Ausschreibung für die Renovierung des Everyman Theatre und den Einbau neuer Einrichtungen aus.
Nach umfangreichen Studien fasste das Planungsteam den mutigen Entschluss, das bestehende Gebäude abzureißen und ein neues, moderneres Gebäude zu errichten, das den Geist der Vorgängerbauten aufgreifen sollte.
Bauwesen
Die Planung des neuen Theaters dauerte 10 Jahre und der Bau mehr als zwei Jahre. Das Projekt begann 2004 mit einer Machbarkeitsstudie, die 2007 zur Beauftragung des führenden Theaterarchitekten Haworth Tompkins führte.
In den Jahren 2008 und 2009 fanden fortlaufende Konsultationen mit Künstlern und der Öffentlichkeit statt, und der Arts Council England bestätigte 2009 seine Unterstützung für das Projekt.
Im Mai 2010 wurden die Pläne beim Stadtrat von Liverpool eingereicht und drei Monate später wurde die Baugenehmigung erteilt. Ein Jahr später konnte das Finanzierungspaket dank der Investitionen des Europäischen Fonds für regionale Entwicklung abgeschlossen werden.
Das Theater öffnete schließlich im März 2014 seine Türen.
Standort
Das alte Theater, das aus einer Kapelle aus dem 19. Jahrhundert zu einer der wichtigsten Straßen der Stadt umgebaut wurde, war eines der wertvollsten Kulturgüter der Stadt. Für die Produktionen und das Publikum des 21. Jahrhunderts war es jedoch völlig ungeeignet. Daher war die Herausforderung, ein speziell entworfenes neues Theater an der Stelle des ursprünglichen Theaters zu bauen, sowohl für den Bauherrn als auch für die Architekten ein mutiger Schritt.

Nach fast 10 Jahren Papierkram, Beratungen und schließlich Bauarbeiten wurde es auf demselben Grundstück in der Hope Street im historischen Stadtzentrum errichtet. Das neue Gebäude sollte die demokratischen und klassenlosen Werte des ursprünglichen Theaters weiterentwickeln und gleichzeitig der Stadt Liverpool, England, einen öffentlichen Kulturraum von Format und Substanz bieten.
Das Theater liegt neben der katholischen Kathedrale von Liverpool, umgeben von denkmalgeschützten Gebäuden aus dem 18. und 19.
Konzept
Die Herausforderung für das neue Everyman Theatre bestand darin, eine ikonische Liverpooler Institution im Zentrum des kulturellen und politischen Lebens der Stadt zu ersetzen und neu zu präsentieren. Das ursprüngliche Theater wurde in einer Kapelle aus dem 19. Jahrhundert, Hope Hall, gegründet und entwickelte sich in den 1970er Jahren zu einem Zentrum der theatralischen und politischen Energie. Für das neue Jahrtausend musste das Gebäude jedoch vollständig renoviert werden, um die neuen Programme unterzubringen.
Haworth Tompkins Studio entwarf ein technisch fortschrittliches und hochgradig anpassungsfähiges neues Theater, das die freundliche und funktionale Zugänglichkeit des alten Gebäudes beibehält und die Werte der Organisation, nämlich kulturelle Eingliederung, Teilhabe an der Gemeinschaft und lokale Kreativität für die Menschen in Liverpool, zum Ausdruck bringt.
Räume
Das öffentliche Gesicht des Theaters ist die Westfassade zur Straße hin, die aus über hundert beweglichen Metallschirmen mit lebensgroßen Porträts der heutigen Bewohner Liverpools besteht. In Zusammenarbeit mit dem ortsansässigen Fotografen Dan Kenyon wurden in das Projekt alle Bereiche der Gemeinde einbezogen, die ihre Fotos als integralen Bestandteil des neuen Theaters einbrachten.
Die Verwendung von rotem Backstein aus der Region für die Außenwände und die vier großen Lüftungsschornsteine verleihen dem Gebäude eine unverwechselbare Silhouette und fügen sich gleichzeitig in die umgebende Architektur ein.
Innerhalb
Foyers
Im Inneren sind die Foyers so gestaltet, dass sie einladend, nicht einschüchternd und für die Öffentlichkeit gut lesbar sind. Wie beim Auditorium wurden Ziegel aus dem Vorgängerbau und 90 % des alten Materials wiederverwendet.
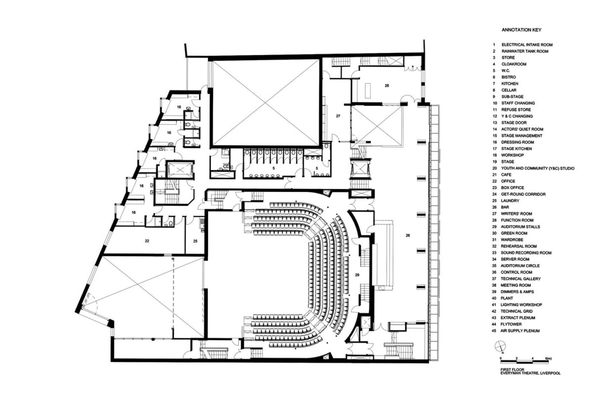
Diese Räume sind um drei geteilte Erschließungsebenen herum angeordnet und in einer komplexen Geometrie miteinander verwoben, die im Auditorium gipfelt und ein Bistro im Untergeschoss, ein Straßencafé, eine Bar im ersten Stock, einen Raum für Schriftsteller und einen gemeinschaftlichen Studienraum umfasst.
Das „piano nobile“, das edle Stockwerk der ersten Etage, in dem sich die Bar befindet, erstreckt sich entlang der Vorderseite des Gebäudes und verbirgt dahinter das Zimmer der Schriftsteller.
„…Das Gebäude macht sich die komplexe und eingeschränkte Geometrie des Ortes zunutze, indem es die öffentlichen Räume um eine Reihe von Halbebenen herum anordnet und eine durchgehende, gewundene Promenade von der Straße zum Auditorium schafft…“ (Haworth Tompkins Architects).
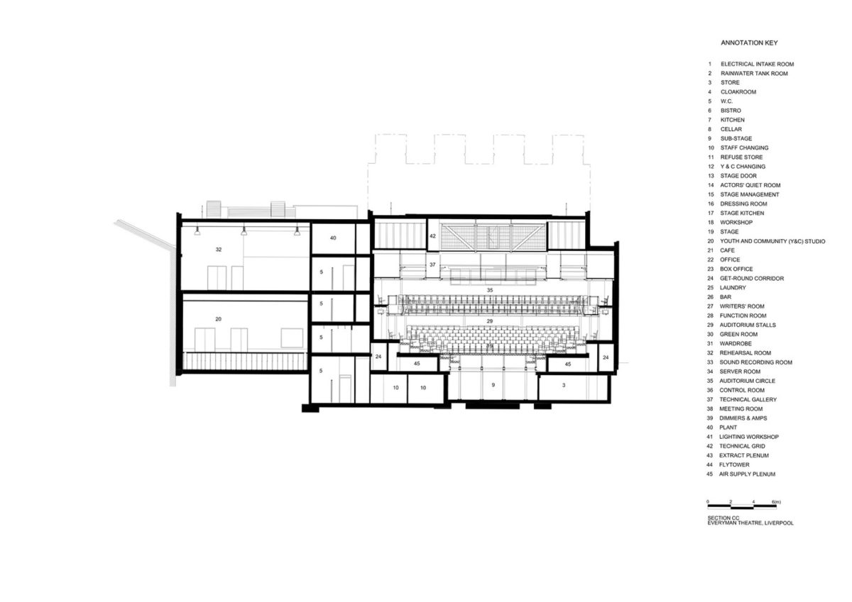
Auditorium

Wie sein Vorgänger verfügt der neue Saal, der vom ersten Stock aus betreten wird, über eine 10 m lange, anpassungsfähige Schubbühne, die der ursprünglichen Bühne nachempfunden ist. Der Raum wurde aus denselben Ziegeln gebaut, die aus dem abgerissenen Theater geborgen wurden, und ist sorgfältig geplant. Bei einer Kapazität von 400 orangefarbenen Sitzplätzen sind Publikum und Darsteller nur wenige Schritte voneinander entfernt.
Das Auditorium kann durch eine modulare Bühne und eine flexible Bestuhlung in eine Reihe verschiedener Konfigurationen umgewandelt werden. Wärme, Dichte und Intimität sind die übergreifenden Ziele des Raums, zusammen mit einer Neuinterpretation des berühmten und ungewöhnlich großen Spielbereichs von Everyman.
Andere Räume
Der hintere Teil des Theaters wurde mit der gleichen Sorgfalt wie die öffentlichen Bereiche gestaltet und verbindet Büros, Proberäume, Werkstätten, Besprechungsräume und den grünen Raum zu einer einzigen Umgebung für kreative Arbeit.
Struktur
Szenario
Das bühnentechnische System umfasst einen modularen Bühnenboden auf einer herausnehmbaren Unterbühne, die es ermöglicht, das Theater schnell in verschiedene Formate umzugestalten oder sogar zu entfernen.
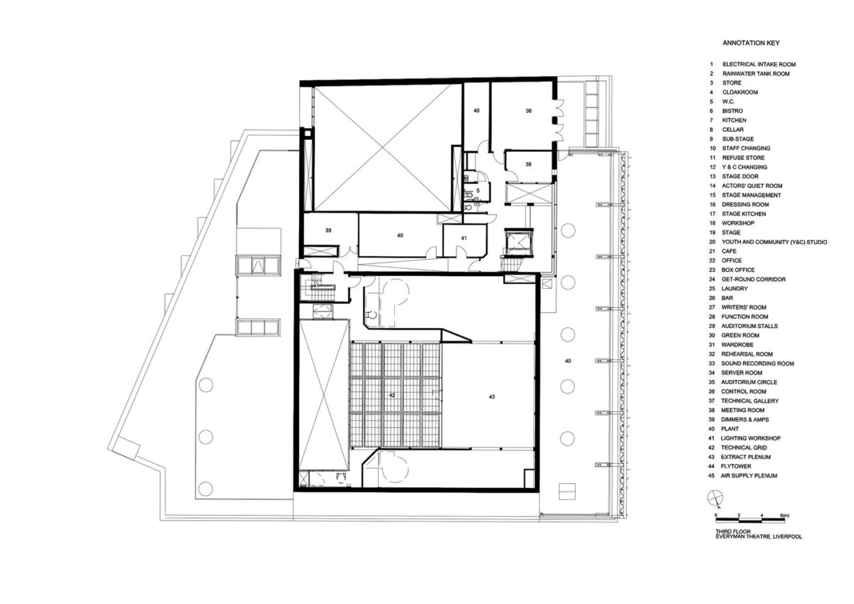
Oberhalb der Schiebebühne befindet sich eine Reihe von technischen Gängen, wobei die mittleren Gänge verschoben oder entfernt werden können, um große Teile unterzubringen. Die Bewegung dieser großen Brücken mit klappbarer Beleuchtung ist ein einfacher manueller Vorgang, bei dem die Stahlkonstruktion als Führung dient und eine eisenbahnähnliche Schiene für Stabilität und einfache Bedienung sorgt. Ein ähnliches Schienensystem wird für die Proszeniumsplatten verwendet, die für verschiedene Öffnungen verwendet oder ganz entfernt werden können.
Nicht alle Systeme der Bühnentechnik sind jedoch ein einfaches manuelles System. Über dem Schub- und Flugturm befindet sich ein mehrachsiges Motorflugsystem, das aus Punktzügen, Kettenzügen und Leinensätzen besteht. Das motorisierte Flugsystem ist eine wesentliche Voraussetzung dafür, dass sich das Theater an das breite Spektrum von Shows und Bühnenformaten anpassen kann.
Sitze
Die Befestigung der Sitze wurde geschickt in die Vorderseite der Plattform integriert, so dass sie bei Bedarf verschoben werden können, ohne dass Löcher in den Bühnenboden gebohrt werden müssen. Der Rahmen der Sitzstruktur wurde aus einem einzigen Stück Metall gefertigt, um die Haltbarkeit beim Bewegen zu gewährleisten. Auf der Rückseite befindet sich ein spezielles Muster, das als Versorgungsgitter dient, sowie eine Reihe von Befestigungspunkten für verschiedene Höhenstufen.
Materialien
Im neuen Everyman Theatre wurden 90 % der alten Materialien des ursprünglichen Theaters verwendet. Für die Außenfassade wurde roter Backstein aus der Region für die Wände und die vier großen Lüftungsschornsteine gewählt.
Der Künstler Antoni Malinowski bemalte die Decke der Hauptlobby und ergänzte damit die Innenausstattung, die sich aus wiederverwendetem Ziegelstein, schwarzem Stahl, wiederverwendetem Eichenholz und Iroko, farbenfrohem Sperrholz und hellem Ortbeton zusammensetzt und sich durch die öffentlichen und hinteren Bereiche des Gebäudes zieht.
Der Typograf und Künstler Jake Tilson hat eine spezielle Schriftart für eine neue Version des kultigen roten Everyman-Schildes entworfen.
Energie-Effizienz
Das Gebäude erreicht durch natürliche Belüftung und eine hohe thermische Masse ein ungewöhnliches Maß an Energieeffizienz, die durch eine Hauptfassade mit beweglichen Sonnenschutzvorrichtungen unterstützt wird.
Belüftung
Auditorium, Atelier, Foyer und Büroräume werden durch markante Abluftkamine an der Decke natürlich belüftet.
Dieses System funktioniert die meiste Zeit des Jahres mit Hilfe eines Systems, das Außenluft durch einen Einlass am Heck ansaugt, ohne dass eine mechanische Unterstützung erforderlich ist. Diese Luft wird durch eine thermische Masse unter dem Werkstattboden gekühlt und durch eine Luftpumpe in die Kabine geleitet, um die Innentemperaturen zu regulieren. Die Luftzufuhr in den Raum erfolgt über eine Reihe von Lüftungsöffnungen hinter und unter den Sitzen. Menschen und Beleuchtung tragen dazu bei, die Luft zu erwärmen, wodurch sie Auftrieb erhält und in die Höhe steigt. Von hier aus wird es durch eine in die technische Galerieebene integrierte schallgedämpfte Abluftkammer zu den Abluftkaminen transportiert.
Die hohen Schornsteine, die das Gebäude charakterisieren, bewirken den „Kamineffekt“, der dafür sorgt, dass die Luft hauptsächlich nach oben und nach außen strömt.
Die mechanische Konstruktion umfasst auch eine Regenwassernutzung, eine hocheffiziente Kraft-Wärme-Kopplungsanlage, ein hohes Maß an Isolierung und einen variablen externen Sonnenschutz. All diese Elemente zusammen haben dazu geführt, dass das Gebäude eine BREEAM-Bewertung erhalten hat, eine seltene Auszeichnung für ein Theater.
Erreichbarkeit
Durch den Neubau wurden die Zugänglichkeit für Rollstuhlfahrer und eine spezielle Kabine für Audiodeskription neben dem Kontrollraum gewährleistet.








































