Kursaal Auditorium
Einführung
Das alte Gebäude, Gran Kursal, in dem sich ein Kasino und ein Theater befanden, wurde 1921 eröffnet und 1973 abgerissen. Während der Operation wird sein Bild als eines der besten Bilder des San Sebastián der Belle Epoque konfiguriert. Nach seiner Schließung im Jahr 1924 diente es als provisorischer Veranstaltungsort für verschiedene Aktivitäten, bis man beschloss, es abzureißen und das Gelände in städtisches Eigentum zu überführen.
Wettbewerb
1989 berief der Stadtrat von San Sebastián eine technische Beratung mit sechs international bekannten Architekten ein: Mario Botta, Norman Foster, Arata Isozaki, Rafael Moneo, Juan Navarro Baldeweg und Luis Peña Ganchegui.
Im Jahr 1990 wählte die Jury den Vorschlag von Rafael Moneo „Zwei gestrandete Felsen“, mit der Begründung, dass er ausgewählt wurde „…für die korrekte Berücksichtigung des Kursaals als geografische Besonderheit an der Mündung des Urumea-Flusses, für die Befreiung des öffentlichen Raums als zum Meer hin offene Plattform und vor allem für die Rundheit, den Mut und die Originalität des Vorschlags…“. Nach der endgültigen Genehmigung begannen 1995 die Arbeiten an dem Gebäude, für dessen Ausführung Moneo selbst verantwortlich war. Am 23. August 1999 wurde der architektonische Komplex mit mehreren gleichzeitigen Konzerten eingeweiht.
Im Jahr 2000 wurde das Projekt mit dem FAD-Architekturpreis ausgezeichnet. Im Jahr 2001 wurde er mit dem Mies-Van-der-Rohe-Preis der Europäischen Union und dem Manuel-de-la-Dehesa-Preis der VI.
Standort
Das Projekt von Rafael Moneo für den Kursaal in San Sebastián/Donostia, Spanien, befindet sich rechts der Mündung des Flusses Urumea, gegenüber dem Kantabrischen Meer und in der Nähe der Altstadt und der Bucht von La Concha, auf einem vom Meer zurückgewonnenen Gelände.
Die Stadt nahe der französischen Grenze ist 19 km von ihrem internationalen Flughafen, 49 km von Biarritz, 100 km von Bilbao und 93 km von Pamplona entfernt.
Konzept
Der Autor dieses einzigartigen Werks, der renommierte Architekt Rafael Moneoentwarf zwei riesige durchsichtige Glaskuben, die der Architekt selbst als „…zwei gestrandete Felsen, die versuchen, die Geographie zu verewigen und, soweit möglich, die Harmonie zwischen dem Natürlichen und dem Künstlichen zu unterstreichen…Zwei riesige Felsen, die an der Mündung des Urumea gestrandet sind, sie gehören nicht zur Stadt, sie sind Teil der Landschaft…“.
Die Lage des Projekts an der Mündung des Urumea-Flusses hat den Architekten dazu inspiriert, die beiden Kuben wie „zwei gigantische Felsen, die der Geografie Tribut zollen, indem sie dem Berg Urgull im Westen und dem Berg Uría im Osten zuzwinkern und dem Ort den Charakter einer geografischen Besonderheit und nicht den einer bloßen Fortsetzung des städtischen Rasters verleihen“, zu gestalten.
Diese Felsen, die unterirdisch miteinander verbunden sind, liegen direkt am Golf von Biskaya und beherbergen zwei Mehrzwecksäle, Ausstellungsräume, ein Restaurant und ein Parkhaus.
Räume
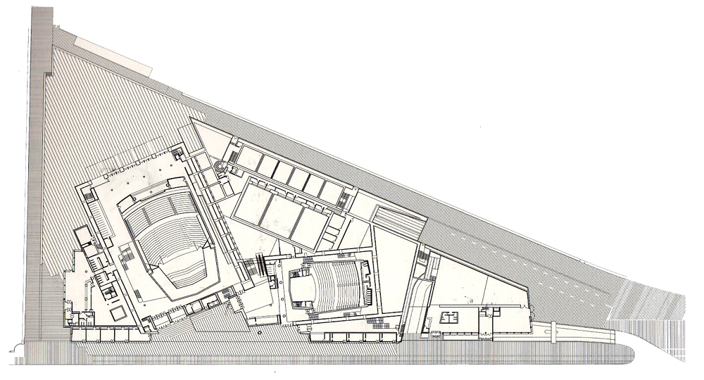
Der Kursaal besteht aus zwei großen, verformten, durchsichtigen Glaswürfeln, von denen einer nach Westen in Richtung des Berges Urgull und der andere nach Osten in Richtung des Berges Ulía zeigt. Diese Kuben mit ihrer unausgewogenen Geometrie scheinen den Maßstab und die Natur der Bucht zu übernehmen.
Erster Felsen
Auditorium/Symphonie-Saal
Der erste der gestrandeten Felsen beherbergt das Auditorium/den Sinfoniesaal mit den Maßen 60x48x27m und einer maximalen Kapazität von 1806 Zuschauern.
Die Halle hat eine rechteckige Form mit Flachdach und einem doppelt quadratischen Verhältnis von Länge und Breite sowie einer Höhe, die etwa 10 m3 pro Zuschauer garantiert. Im Erdgeschoss befinden sich die ergänzenden Dienstleistungen: Concierge, Telefone, Toiletten. Der Zugang zum oberen Teil der Halle erfolgt über Rampen und Treppen. Außerdem verfügt es über eine 350 m2 große Bühne, die mit einem abnehmbaren Konzertraum und einer Bühnenmaschinerie ausgestattet ist, sowie über eigene Dienstleistungen wie eine Bar.
Den Künstlern stehen 11 Garderoben, 6 Einzel- und 5 Gemeinschaftsgarderoben, 2 Mehrzweck-Proberäume, ein Tanzraum und eine Garderobe zur Verfügung.
Zwei VIP-Räume und eine Foyer-Lobby, die sich in der Lücke zwischen den Räumen und der Außenhülle befindet, ermöglichen es, jede Art von Veranstaltung, Abendessen, Cocktail oder Präsentation abzuhalten, umgeben von einem weiten Blick auf die Umgebung und die herrliche Landschaft des Strandes.
Zweiter Felsen
Kammer und Kongresssaal
Der zweite Felsen, der kleinere Kubus, enthält den Plenarsaal und den Kongresssaal mit einer Kapazität von 624 Sitzplätzen. Es hat einen direkten Zugang zur Straße.
Es besteht aus einem Prisma mit den Maßen 43x36x24 und verfügt über eine 120 m2 große Bühne, die mit einer abnehmbaren Akustikdecke und einer Bühnenmaschinerie mit begrenzter Höhe ausgestattet ist, so dass das Bühnenbild nicht in den Stangen versteckt werden kann. Ein Klavierlift wurde auf die Bühne gestellt.
Aufgrund seiner Akustik eignet sich dieser Saal für Kammerkonzerte oder als vielseitiger und vielseitiger Raum für Kongresse, Tagungen und mittelgroße Versammlungen. Neben allen technologischen Errungenschaften verfügt es über eine VIP-Lounge, 5 Umkleidekabinen, 3 Einzelkabinen, 2 Gemeinschaftskabinen und eine Garderobe.
Mehrzweckräume
Sitzungsräume oder Mehrzweckbereiche und Mehrzweckräume befinden sich im Untergeschoss.
Mit einer ungefähren Höhe von 6 m können diese Räume je nach Bedarf moduliert werden und bieten Platz für 10 bis 575 Personen. Sie verfügen über ein geräumiges Foyer mit Ausstellungs- oder Cafeteria-Einrichtungen und modernster technischer Ausstattung.
Die Urumea-Terrasse mit 3000 m2 und die Zurriola-Terrasse mit 2150 m2, beide im ersten Stock und mit Blick auf das Meer, sind Teil der mehr als 5000 m2, die der Kursaal für Ausstellungen, Stände oder Messen zur Verfügung stellt.
Der Gastronomiebereich des Palacio de Congresos wird vor Ort vorbereitet und bedient sowohl das À-la-carte-Restaurant als auch ein Bankett für 770 Personen im Festsaal, ein Catering für eine bestimmte Veranstaltung oder ein leichtes Abendessen.
Das Parkhaus mit 720 Stellplätzen befindet sich auf zwei unteren Ebenen und verfügt über einen breiten Hubschrauberzugang. Der Zugang zum Auditorium, zum Kongresssaal, zum Ausstellungssaal und zu den Sitzungssälen erfolgt über Treppen und Aufzüge.
Struktur und Materialien
Die Konstruktion der „Felsen“, die leicht zum Meer hin geneigt sind, besteht aus einer Metallstruktur, die eine doppelte Wand bildet, die innen und außen mit Blöcken aus Pressglas ergänzt ist.
In das freistehende Volumen des Auditoriums gelangen die Besucher über Treppen, Aufzüge oder Rampen. Die Dienstleistungen und Räume, die Musiker und Künstler für ihre gesamte Ausrüstung benötigen, befinden sich im Erdgeschoss.
LED-Fassade
Die 1500 m2 große Fassade aus lichtdurchlässigen Pressglaspaneelen und LED-Technologie ist zu einem Wahrzeichen der Stadt geworden und bietet den Kunden, die die Einrichtungen nutzen, die Möglichkeit, die Veranstaltung durch Variation der Beleuchtung oder Anbringung eines Logos oder eines bestimmten Bildes zu personalisieren.






























































