Museum von Liverpool
Einführung
3XN Architects und Buro Happold gewannen 2004 den Architekturwettbewerb für den Bau des neuen Museum of Liverpool. Der Bau begann 2006 auf dem Gelände des ehemaligen Museum of Liverpool Life und wurde am 19. Juli 2011 eröffnet.
Die Ausstellungen zeigen die globale Bedeutung der Stadt durch ihre einzigartige Geografie, Geschichte und Kultur. Besucher können erkunden, wie der Hafen, seine Menschen, seine kreative und sportliche Geschichte die Stadt geprägt haben.
Das Museum of Liverpool hat das Designkonzept für das Gebäude zusammen mit dem dänischen Studio 3XN entwickelt. Der in Manchester ansässige Architekt AEW wurde später mit der Ausarbeitung des detaillierten Entwurfs beauftragt.
Standort
Das neue Gebäude befindet sich in einem von der UNESCO zum Weltkulturerbe erklärten Gebiet zwischen Albert Dock und Pier Head auf Mann Island, Liverpool, England, und grenzt an eine Reihe prominenter historischer Gebäude, „The Three Graces“. Das Gebäude ist sowohl vom Fluss Mersey als auch von der Stadt aus sichtbar. Der Zugang für Fußgänger ist über die Promenade möglich, die sich gegenüber der Hafenbehörde von Liverpool mit den Museumsgärten verbindet.
Der Standort für das Projekt, der sich in einem nicht mehr kommerziell genutzten Hafengebiet befindet, wurde teilweise vom Liverpool Maritime Museum genutzt, einschließlich des Great Western Railway Building und der Canning Graving Docks. Die nördliche Hälfte des Geländes wurde von einem Parkplatz eingenommen.
Die Grundfläche des Gebäudes liegt direkt über dem Mersey Railway Tunnel auf einem zurückgebauten Pier und stellte die Statiker vor viele Herausforderungen. Auch die bestehenden Kaimauern mussten aus archäologischen Gründen erhalten bleiben.
Konzept
Das Museumsgebäude ist als geneigte oder erhöhte Plattformen konzipiert, die nach und nach eine skulpturale Struktur bilden.
Seine Gestaltung erinnert an die Silhouetten der Schiffe, die einst im Hafen lagen, während die Reliefgestaltung der Fassade eine Neuinterpretation des historischen architektonischen Erbes der Nachbargebäude darstellt.
Die riesigen Giebelfenster öffnen sich zur Stadt und zum Hafen hin und holen die Geschichte symbolisch in das Museum hinein, während sie gleichzeitig den Blick der Neugierigen freigeben.
Der Kreativdirektor des dänischen Studios 3KN, Kim Herforth Nielsen, beschreibt das Projekt als „Nexus“, „…eine zeitgenössische Struktur, die mit den historischen Gebäuden in Dialog tritt und das Hafenviertel physisch mit dem Albert Dock verbindet…“.
Räume
Um den Anforderungen an Barrierefreiheit, Verkehrsführung, Beleuchtung, Geländeregulierung, Leuchtenplatzierung und Sitzgelegenheiten gerecht zu werden, wurde die Pflasterung sorgfältig mit einem Sockelmotiv aus Sandstein bearbeitet.
Der Sockel, der in der Breite um das Museum herum variiert, erfüllt alle praktischen Erwägungen in einer Ästhetik, die den bestehenden Pfeilern im gesamten Welterbegebiet entspricht.
Die Außenbereiche rund um das Museum bieten Sitzgelegenheiten mit Blick auf das Wasser, die das dynamische städtische Umfeld bereichern und als Treffpunkt für Einheimische und Besucher gleichermaßen dienen. Das Thema wird auf das zentrale Atrium des Museum of Liverpool übertragen, dessen skulpturale, geschwungene Treppe zu den oberen Galerien führt und die soziale Interaktion weiter fördert.
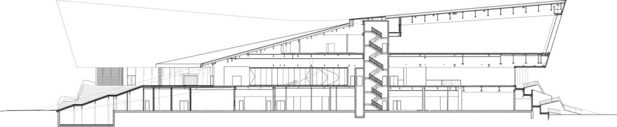
Das Gebäude mit einer Fläche von fast 13000 m2 ist in 3 Etagen mit öffentlich zugänglichen Galerien und Verkehrsflächen unterteilt. Die Privaträume befinden sich auf der Rückseite des Gebäudes.
Öffentlicher Zugang
Das Gebäude ist sowohl über das Erdgeschoss als auch über den ersten Stock zugänglich.
Die große Wendeltreppe, die im Eingangsatrium beginnt, wird von einem großen runden Oberlicht gekrönt, das natürliches Licht hereinlässt. Das Theater des Museums befindet sich ebenfalls im Erdgeschoss.
Im ersten Stock gibt es ein Restaurant und einige interaktive Ausstellungen.
Mit mehr als 8000 m2 Ausstellungsfläche sind die flexiblen Galerien 10 m hoch. Die 1.500 m2 große Verglasung bietet einen atemberaubenden Blick auf die Stadt, insbesondere durch die 8 m hohen und 28 m breiten Fenster an beiden Enden des Gebäudes.
Private Räume
In diesen Räumen befanden sich die Unterkünfte für das Personal, die Laderampe, das Lager und die Maschinenräume.
Struktur
Das dynamische, niedrige Bauwerk fügt der Skyline von Liverpool ein neues Wahrzeichen hinzu und markiert zudem eine neue Grenze für den Bau großer ökologisch-nachhaltiger Projekte.
Für das neue Museum of Liverpool mit seinem X-förmigen Design, das sich um einen zentralen Kern windet, wurden etwa 2.000 Tonnen Stahlkonstruktionen benötigt.
Die Montage wurde in 3 Phasen unterteilt, wobei die erste Phase die Verbindung der Stahlkonstruktionen mit den runden und quadratischen Betonkernen war. Auch in dieser Phase wurde eine große Anzahl komplexer Stahlkonstruktionen mit verschiedenen Winkeln und unterschiedlichen Formen untergebracht, die das Zentrum des X bilden.
Die letzten beiden Phasen bestanden aus dem Anbau der vier Finger des X, wobei die großen Auskragungen provisorisch abgestützt wurden, von denen eine mit einem Überhang von 9 m eine Aussichtsgalerie mit Blick auf den Fluss Mersey beherbergt.
Aufgrund der Länge des Gebäudes war es notwendig, die Struktur in drei verschiedene Abschnitte zu unterteilen, um die Wärmeausdehnung und die damit verbundenen Auswirkungen auf die Oberflächen zu kontrollieren. Jeder Abschnitt stützt sich auf zwei zentrale Ortbetonelemente, die dem Bauwerk im ständigen Fall seitliche Stabilität verleihen. Durch die Einführung von Bewegungsfugen war es möglich, die inneren Spannungen und Durchbiegungen auf ein kontrollierbares Maß zu reduzieren, das sich nicht nachteilig auf die normalen Oberflächen auswirken würde. Die Details aller Oberflächen, Verbindungen und Strukturelemente müssen an die vorgesehenen Bewegungen angepasst sein, um Schäden zu vermeiden.
Fundamente
Aufgrund der Nähe des Flusses, der weniger als 12 m entfernt ist, der Tunnel, die unter dem Gebäude verlaufen, und der Mauern unter dem Gelände, die aufgrund ihres archäologischen Wertes erhalten werden mussten, waren die Lösungen für die Fundamente ein heikles Thema, das die Ingenieure berücksichtigen mussten.
Die gewählte Lösung ist eine Kombination aus Pfählen und einem zellenförmigen Ausgleichsbecken.
Die Fundamente des Floßes bestehen aus einem riesigen Balken von 100 m Länge und 49 m Breite, der den Tunnel verbindet und als I-Träger fungiert, mit einem oberen und einem unteren Flansch, die durch Netze getrennt sind. Die Fundamentplatte besteht aus einem 400 mm dicken unteren Flügel und einem 300 m tiefen oberen Flügel, die durch eine Reihe von 3,5 m hohen Querwänden getrennt sind. Die Tiefe des Floßes wurde so berechnet, dass das Gewicht der abgetragenen Erde dem Gewicht des Gebäudes entspricht, um eine Überlastung der darunter liegenden Tunnel zu vermeiden.
Aufbauten
Der Überbau des Gebäudes besteht aus einer Stahlkonstruktion in einem Raster von ca. 9 m Abstand. Die Stahlkonstruktion besteht aus traditionellen warmgewalzten Profilen und speziell gefertigten Blechträgern, um die erforderlichen lichten Spannweiten in den Galerieräumen zu erreichen, so dass die Versorgungseinrichtungen vollständig in die Zellenträgerkonstruktion integriert werden konnten.
Fassaden
Die Geometrie der Fassade führt dazu, dass die Übergänge zwischen den verschiedenen Fassadentypen nicht mit den typischen Bodenmembranen oder Primärbodenstrukturen übereinstimmen. Daher ist eine zweite Lage Stahlkonstruktion erforderlich, um die Einheiten zu tragen. Das Layout dieser Metallstruktur wird durch die Verbindungen zwischen den Modulen bestimmt. Diese zweite Schicht der Stahlkonstruktion dient dazu, die seitlichen Lasten auf die Deckenmembranen und die vertikalen Lasten auf die Hauptstützen zu übertragen.
Wendeltreppe
In der zentralen Eingangshalle des Gebäudes trifft der Besucher auf eine große Wendeltreppe, die nur von ihrem Sockel und den Zwischenböden getragen wird. Er funktioniert wie ein H-Profil-Träger und wird mit Ortbeton hergestellt.
Die Betontreppe basiert auf der Abstützung durch mehrere Bauteile. Die Brüstungen am Rand der Leiter wirken in Verbindung mit den Stützelementen wie Balken/Streben und machen die Leiter stabil. Die Taille der Treppe verläuft dann zwischen diesen Randbalken. Die Stabilität wird durch den Anschluss an die Balsaplatte im Erdgeschoss, den Stabilitätskern und die Schlitzplatten im ersten und zweiten Stock gewährleistet.
Galerien
Die riesigen freitragenden Galerien im Obergeschoss reichen bis zu 27 m. Der Kasten ragt an der Nordseite 9 m und an der Südseite 5 m über den Boden des Gebäudes hinaus. Da das Obergeschoss keine internen Stützen hat, war ein komplexer Stahlrahmen mit einem Gewicht von 2100 Tonnen erforderlich. Aufgrund seiner Größe musste er in drei Abschnitte unterteilt werden, um die Wärmebewegung zu ermöglichen. Der Rahmen musste während der Bauphase provisorisch abgesteift werden, was sich als Herausforderung erwies.
Theater
Das Theatergebäude ist ein freistehendes Gebäude, das auf der Erdgeschossdecke ruht. Sie besteht aus kaltgeformten Profilen und ist so konstruiert, dass sie in Zukunft entfernt werden kann, ohne die Primärstruktur zu beeinträchtigen.



























