Schloss Stoclet
Einführung
Wie sein Vater war auch Adolphe Stoclet Aktionär der Société Générale pour Favoriser L’industrie Nationale (Allgemeine Gesellschaft zur Förderung der nationalen Industrie), die in mehreren Ländern Eisenbahnen baute. Seine Frau Suzanne war die Tochter des Kunstkritikers und -händlers Arthur Stevens, der ihm Werte in Bezug auf Kunst vermittelte. Diese Verbindung verstärkte ihr unstillbares Interesse an Kunst und Architektur, und das Paar unternahm oft lange Spaziergänge, um die Architektur der Stadt zu erkunden. Wien. Bei einem dieser Spaziergänge entdeckte das Paar eine Villa in der Hohen Warte, einem Wohngebiet am Rande der Stadt, wo Josef Hoffmann eine Kolonie von Jugendstilhäusern für Künstler und Anhänger der Wiener Sezessionsbewegung errichtet hatte. Die Stoclets waren fasziniert von dem britischen Einfluss auf die Gestaltung der Villen, von denen die bemerkenswerteste dem Maler und Sezessionsmitglied Carl Moll gehörte. Der Stoclet-Palast, französisch Palais Stoclet und niederländisch Stocletpaleis, ist ein privates Herrenhaus, das der Architekt Josef Hoffmann zwischen 1905 und 1911 für den Bankier und Kunstliebhaber Adolphe Stoclet und seine Frau erbaute.
Dieses luxuriöse Art-Déco-Haus, das von vielen Experten als das erste seiner Art angesehen wird, hat alle Außenfassaden mit weißem Marmor verkleidet und mit vergoldeten Leisten versehen und ist das einzige seiner Art in der ganzen Stadt.
Der Stoclet-Palast gilt als Hoffmans Meisterwerk und als eines der repräsentativsten Beispiele moderner Architektur und ist eines der raffiniertesten und luxuriösesten Privathäuser des 20. Das Haus wird seit seiner Einweihung von der Familie Stoclet bewohnt und ist für die Öffentlichkeit nicht zugänglich. Das Gebäude wurde im Juni 2009 von der UNESCO zum Weltkulturerbe erklärt.
Als das Haus 1911 fertiggestellt wurde, war es der Inbegriff des „Gesamtkunstwerks“, das Richard Wagner ein halbes Jahrhundert zuvor erdacht hatte, nicht für öffentliche Aufführungen, wie es dem Komponisten vorschwebte, sondern als Oase für eine Familie, die es seit seiner Fertigstellung bewohnt. Im Laufe der Jahre gab es keine größeren Umbauten oder sichtbaren Veränderungen, abgesehen davon, dass die meisten Kunstwerke verkauft worden sind.
Standort
Die Wohnung befindet sich in der Avenue de Tervuren 275-281, Woluwe-Saint-Pierre, Brüssel, Belgien. Dieses Gebiet gilt als eine der elegantesten und grünsten Wohngemeinden nicht nur in der belgischen Hauptstadt, sondern im ganzen Land. Heute befinden sich viele der Vertretungen der Europäischen Union in der Tervuren Avenue.
Konzept
Das Palais Stoclet, entworfen vom Wiener Architekten Joseph Hoffmann, ist ein Meisterwerk des Jugendstils und des Art Déco, ein großes Marmorhaus mit einer Reihe perfekter, asymmetrischer kubischer Formen.
Die Kombination und Integration von Architekten, Künstlern und Handwerkern bei der Errichtung des Gebäudes machen es zu einem Beispiel für ein Gesamtkunstwerk, eines der bestimmenden Merkmale des Jugendstils und Hoffmanns Ziel bei diesem Projekt, ein „Gesamtkunstwerk“ zu verwirklichen, was bedeutete, das Gebäude als ein komplexes Kunstwerk zu gestalten, das alle Inhalte wie den Garten, die Möbel und die Dekoration einschließt. Im Laufe der Jahre wurde die Villa zu einem der seltenen Beispiele moderner Architektur des 20. Jahrhunderts und zu einem „Gesamtkunstwerk“, das für seine stilistische Einheitlichkeit geschätzt wird.
Josef Hoffmann war ein Schüler Otto Wagners, und wie Wagner sind seine Werke von einer geometrischen Klarheit, die im Widerspruch zur überschwänglichen Jugendstilarchitektur in Brüssel steht, obwohl Hoffmann zu diesen Architekten zählt. Bei diesem Projekt ähnelt die mit Marmor verkleidete Fassade den Fassaden Wagners und nimmt in ihrer Schlichtheit die Entwicklung der modernistischen Architektur vorweg, bei der das gesamte Ensemble wichtig war: Inneneinrichtung, Wandbehandlung, Möbel und Bodenbelag.
Gemeinsam mit dem Architekten waren berühmte Künstler wie Gustav Klimt, Richard Luksch, Michael Powolny, Koloman Moser und Franz Metzner an dieser Aufgabe beteiligt und gemeinsam schufen sie ein elegantes, modernes und zugleich funktionales Wohnhaus.
Der Stoclet-Palast spielt eine wichtige Rolle bei der Darstellung einer modernistischen Form des Luxus. Es beeinflusste nicht nur den Stil des französischen Architekten Robert Mallet-Stevens, des Neffen von Suzanne Stoclet, sondern wurde auch zu einem Symbol für die Luxusarchitektur des Art déco und der amerikanischen Moderne zwischen 1920 und 1950.
Räume
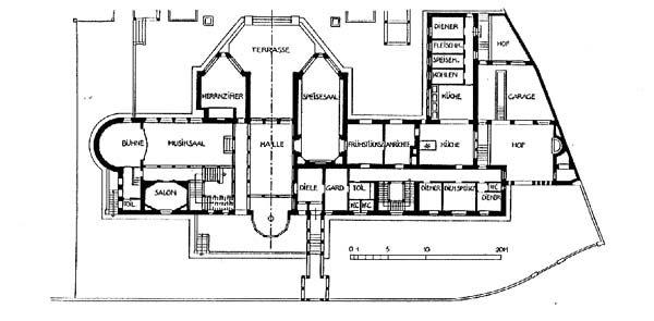
Das strenge Äußere wird durch kunstvolle Fenster, die durch die Trauflinie, den Wintergarten auf dem Dach und die Metallskulpturen von vier nackten Männern, die der Bildhauer Franz Metzner auf dem Turm über dem Treppenhaus angebracht hat, gemildert. Balustraden mit Jugendstilverzierungen säumen die Balkone.
Der Zugang erfolgt über eine Pergola aus quadratischen Säulen ohne Kapitell und Sockel, die den Beginn der visuellen Ordnung bilden, die den größten Teil des Hauses begleitet, mit einer Reihe von sich wiederholenden Strukturen in der Abfolge der Räume, die sich von der Hauptachse entfernen und die Grenzen der Konstruktion verschieben. Nach dem Durchschreiten des Korridors, der zu den Zimmern führt, erscheint ein großes Wandgemälde, 1,83 m hoch und 15,24 m breit, das mit goldenen Mosaiken und Steinen des Wiener Künstlers Gustav Klimt verziert ist.
Überall, wo man hinschaut, ist jeder Aspekt des Lebens, von den Gefühlen bis zu dem, was man sieht, zu einem Beispiel für die menschliche Fähigkeit geworden, eine vollständige Umwelt zu schaffen. Die Achsen führen nirgendwohin, außer in weitere Räume, in denen sogar das Badezimmer perfekt geordnet und von Luxus umgeben ist, mit einem massiven Marmorblock, der ausgehöhlt wurde, um die Badewanne zu bilden, die auf einem erhöhten Podest in der Mitte des Raumes ruht. Die Wände sind mit Mosaiken bedeckt, auf denen Fische abgebildet sind. Auch der Blick in den Garten zeigt perfekt geschnittene Hecken, eine Fortsetzung der Achsen zu einem begrenzten Außenbereich.
In all dieser Ordnung gibt es Momente der visuellen Sinnlichkeit, wie die großen Wandgemälde oder die doppelte Wölbung der Decke im Hauptschlafzimmer, die das hölzerne „Nest“ verdeckt, in dem die Stoclets schliefen. Vor dem Wohnzimmer gibt es eine „Sitzecke“, die um einen Brunnen herum angeordnet und aus Marmor gefertigt ist. In allen Umgebungen, in denen es Kurven gibt, sind sie aufgrund der orthogonalen Anordnung, aus der sie herausgleiten, anschaulicher.
Struktur und Materialien
Das dreistöckige Backsteingebäude, das sowohl an englische Landhäuser als auch an Barockpaläste erinnert, wurde 1905 begonnen. Mit dem Plattendach erstreckte es sich entlang der Straße mit einem rechteckigen Grundriss von 37x13m und einer Höhe von etwa 10m, wobei der Turm über dem Treppenhaus eine Höhe von 20m erreichte. Im Winter 1906 war der Außenbau bis zum ersten Stockwerk fertig gestellt. Im Jahr 1908 wurde die nächste intensive Phase abgeschlossen und im Herbst 1909 wurden die Marmorplatten der Fassaden verlegt. Obwohl das Haus noch nicht fertig war, zog die Familie im Frühjahr 1911 ein.
Die für die Fassaden verwendeten weißen Marmore und schwarzen Granite stammen aus Norwegen. Das Gebäude ist aus Ziegeln gebaut und hat ein Betondach.
Die Sinnlichkeit der Texturen gipfelt in dem großen Wandgemälde von Gustav Klimt, das die Wände des Speisesaals schmückt, die Räume sind mit Reichtum und Luxus ausgestattet. Jede Oberfläche aus Parkett, Marmor, Onyx oder Hartholz ist selbst eine Übung in Geometrie, die in einer schwindelerregenden Vielfalt von Mustern ausgeführt wird.
Ausgehend von den vier Bronzefiguren des Bildhauers Franz Metzner verlaufen an den Ecken Metallbänder, die durch ihre Kontinuität dem Gebäude ein Gefühl der Einheit geben. Diese Streifen verbinden sich mit den weißen norwegischen Marmorplatten, die die Fassade bedecken. Die Skulpturen der vier nackten Männer wurden durch Oxidation grün. Die Fenster und Fassaden sind mit oxidierten Kupferprofilen mit vergoldeten Ornamenten versehen.
Der Musiksaal mit einer Orgel auf einer kleinen Bühne war mit gelbem und schwarzem Marmor verziert.
Die Villa verfügte über die Annehmlichkeiten der fortschrittlichsten Technologie der damaligen Zeit, darunter elektrische Steckdosen in der Marmorwand unter dem Fries im Speisesaal und eine unter den Fenstern installierte Zentralheizung.
Das gesamte Haus ist im Stil der Wiener Werkstätte eingerichtet, wobei die Friese von Klimt besonders hervorzuheben sind. In seinen Zeichnungen für den monumentalen Fries von Stoclet entwarf Klimt drei Mosaike, den Baum des Lebens, die Erwartung und den Ritter, die zusammen eine komplexe Metapher darstellen.

































