Trump International Hotel and Tower
Einführung
Das Trump International Hotel and Tower, auch bekannt als Trump Tower Chicago und lokal als Trump Tower, ist ein Wolkenkratzer, der ein Hotel, Einzelhandelsflächen und Eigentumswohnungen beherbergt.
Das Gebäude, das nach dem Immobilienentwickler Donald Trump benannt ist, wurde von dem Architekten Adrian Smith von Skidmore, Owings and Merrill entworfen.
Im Jahr 2001 kündigte D. Trump an, dass der Wolkenkratzer mit 150 Stockwerken das höchste Gebäude der Welt werden würde, doch nach den Anschlägen vom 11. September 2001 wurden die Baupläne zurückgeschraubt, und der Entwurf wurde mehrfach überarbeitet. Nach seiner Fertigstellung im Jahr 2009 war es das dritthöchste Gebäude in den Vereinigten Staaten nach dem Willis Tower, ebenfalls in Chicago.
Standort
Der Trump Tower befindet sich am Hauptarm des Chicago River, mit Blick auf den Eingang zum Lake Michigan hinter einer Reihe von Brücken über den Fluss, in 401N Wabash Av, in der Nähe der North Side, Chicago, Illlinois, Vereinigte Staaten.
Es wurde am ehemaligen Standort der Chicago Sun-Times, einer der beiden großen Zeitungen der Stadt, errichtet. Es liegt 2 Blocks westlich der Magnificent Mile an der Michigan Avenue und direkt nördlich des Theaterviertels von Chicago.
Mit seinem Bau wurde ein öffentlicher Freiraum geschaffen und eine Verbindung zwischen dem Chicago Loop, der North Michigan Av. und dem Flussufer geschaffen. Die Südseite des Turms verläuft parallel zum Flussufer und schließt an seinem Fuß an einen dynamischen dreistöckigen Gehweg an, der die Promenade verankert und mit Restaurants und Geschäften belebt.
Konzept
Als das Chicagoer Architekturbüro Skidmore, Owings & Merrill (SOM) und insbesondere der Architekt Adrian Smith diesen modernen Turm entwarfen, beeinflussten der Standort, die Aussicht und die Nachbarn den Entwurf. Es stimmt zwar, dass die Materialien des Gebäudes seine Nachbarn widerspiegeln, aber man kann auch argumentieren, dass die Gestaltung des Gebäudes die Beziehung zu ihnen vermittelt.
Der Turm ist so gebaut, dass er die gemischte Nutzung widerspiegelt und die Aussicht an seinem prominenten Standort am Fluss maximiert. Die Rücksprünge in der Masse stellen Verbindungen zur Umgebung her und verbinden den Turm mit dem benachbarten Wrigley Building und dem von Mies van der Rohe entworfenen IBM-Gebäude im Westen.
Räume
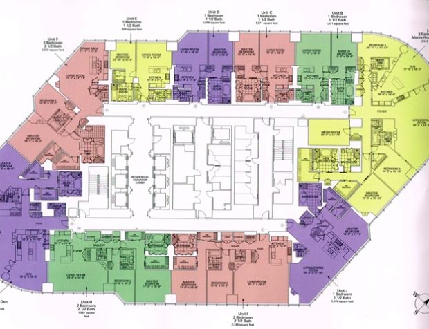
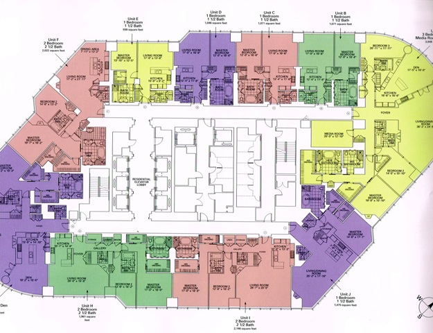
Der Trump Tower Chicago ist eine Kombination aus Gewerbeflächen (7432,24 m2), Parkplätzen für 960 Autos, Hotel und luxuriösen Eigentumswohnungen.
An seiner Basis erhebt sich das Gebäude zehn Meter über die Wabash Avenue und öffnet sich zu einer Reihe von begrünten Terrassen, die über drei Ebenen und fast 21,34 Meter zum Chicago River hin abfallen. Die Promenade bietet Geschäfte, Fußgängerwege, einen offenen Fußgängerweg und öffentliche Treffpunkte, die das Flussufer weiter beleben.
In den Stockwerken 3 bis 12 befinden sich Lobbys, Geschäftsräume und das Parkhaus. Da sich die Gebäudestruktur von Stockwerk zu Stockwerk verändert, ändern sich die Grundplatten und Grundrisse alle paar Stockwerke.
Fußgängerweg
Neben der Schaffung einer 4046,86 m2 großen, landschaftlich gestalteten Uferpromenade schafft diese Freifläche eine Fußgängerverbindung zwischen North Michigan Av, dem Geschäftsviertel der Gold Coast und der State Street, einem wichtigen Korridor, der zum Chicago Loop führt. Am nördlichen Rand des Turms, auf einem ehemals als Laderampe genutzten Gelände, entsteht eine üppig begrünte, begehbare Verbindung zwischen der Wabash Av im Westen und der Wrigley Building Arcade im Osten.
Eine Busspur und eine Abzweigung zur Lower East North Water Street wurden ebenfalls geplant, um den Turm mit öffentlichen Verkehrsmitteln zu erreichen und eine Verbindung zu einem künftigen städtischen Buskorridor entlang der Lower Carroll St. zu schaffen.
Der Eingang von dieser Allee aus wird durch eine kreisförmige Rampe mit einem großen, auskragenden Glasvordach markiert, das zu den Parkebenen führt.
Hotel
Das Hotel mit 339 Zimmern öffnete am 30. Januar 2008 seine Pforten mit einem begrenzten Angebot an Unterkünften und Dienstleistungen. Am 28. April 2008 fand die feierliche Eröffnung mit allen Unterkünften und Dienstleistungen statt. Das Hotel nimmt die 17. bis 27. Etage ein, zusammen mit den Executive Lounges.
Sowohl das Parkhaus als auch ein Teil des Hotels wurden zwei Jahre vor der Fertigstellung der übrigen Bauarbeiten in Betrieb genommen, so dass die ersten Einnahmen für die Immobilie erzielt werden konnten.
Restaurant
Anfang 2008 wurde ein Terrassenrestaurant im 16. Stock eröffnet, das für seine Küche, sein Dekor, seine Lage, seine Architektur und seine Aussicht gelobt wurde.
Eigentumswohnungen
Der Wolkenkratzer verfügt über 486 Super-Luxus-Eigentumswohnungen vom 28. bis zum 89. Stockwerk über dem Hotel. Jede Eigentumswohnung und jede Hoteleinheit verfügt über raumhohe, doppelt verglaste, halbtransparente Fenster, die einen Panoramablick auf die Skyline von Chicago bieten.
Die Wohnungen reichen von 54 m2 großen Studios bis zum Penthouse im obersten Stockwerk mit 1325 m2. Die meisten Wohnungen haben eine Deckenhöhe von 3,05 m, wobei die Penthäuser zwischen 3,66 m und 4,88 m variieren.
Die Penthäuser befinden sich zwischen den Etagen 86 und 89. Diejenigen auf den Ebenen 87-88 nehmen eine halbe Etage ein, während sie auf Ebene 88 die gesamte Etage einnehmen.
Andere Räume
Zusätzlich zu den 9300 m2 Gewerbefläche bietet der Turm eine Reihe von Dienstleistungen, darunter ein Restaurant, Banketträume und ein Fitnessstudio mit Spa im 14. Stock (2137 m2).
Struktur
Damit der Trump Tower den hohen Windlasten Chicagos standhalten kann, verwendete SOM ein Betonstruktursystem, das oft als „zentrale und stabilisierende Konstruktion“ bezeichnet wird. Das Gebäude besteht aus einem zentralen Betonkern mit Betonarmen (Stabilisatoren), die sich über mehrere Schlüsselgeschosse erstrecken.
Die Stabilisatoren verbinden den zentralen Kern mit einem äußeren Ring aus Stützen. Diese Methode, die auch beim Burj Khalifa, dem höchsten Gebäude der Welt, angewandt wurde, das von demselben Team von SOM-Architekten und -Ingenieuren entworfen wurde, ermöglicht sowohl eine flexible Gestaltung als auch eine hohe strukturelle Festigkeit.
Der Betonkern ermöglicht den Bau von 230 mm dicken Flachdecken, die eine Spannweite von 9,1 m ohne umlaufende Brüstungselemente haben, was die Strukturtiefe des Bodens minimiert und höhere Decken ermöglicht. Dieser zentrale Kern wird von vier I-förmigen Wänden und zwei C-förmigen Wänden am Fuß des Gebäudes gebildet. Bei der letzten Absenkung, auf Ebene 51, verringern sich die I-förmigen Wände auf 2.
Die Flügel der Kernwände sind bis zu 1,2 m dick, während die 12,5 m langen Wände in der Regel 460 mm dick sind.
Durch die Integration von architektonischem Design und ingenieurtechnischem Fachwissen konnte das Team die Anzahl der großen strukturellen Stützen sowohl an der Basis des Turms als auch in den oberen Stockwerken minimieren, so dass die Fassade geöffnet und mit einer offenen Glasfassade verkleidet werden konnte, was die Aussicht maximierte. Eine einzige runde Säule am Boden des Gebäudes mit einem Durchmesser von 1,8 m trägt 6.350.293,18 kg. Dies bedeutet, dass weniger Hauptsäulen den Panoramablick auf das Flussufer in den unteren Läden und den Rundumblick auf die umliegende Stadt in den oberen Etagen ermöglichen.
Fundamente
Nach dem Abriss des siebenstöckigen Gebäudes auf dem Gelände begannen die Aushubarbeiten und der Bau des neuen Turms.
Die Caissonschächte mit einem Durchmesser von 3 m wurden durch den steifen Lehm, das Geröll und den Kalksteinfelsen gebohrt, die für die Böden in Chicago typisch sind, und setzten die Bohrungen um weitere 1,8 m fort, bevor die Gründungspfähle gesetzt wurden. Nach ihrer Verlegung in 36 m Tiefe wurden sie mit Stahl ummantelt und die Löcher mit Beton gefüllt. Anschließend wurde ein Stahlgitter als Verstärkung unter den Kern gelegt, um eine Matte zu schaffen, mit der die Kisten zusammengefügt werden können. Der Betoniervorgang dauerte 22 Stunden und führte zu einem Mattenfundament, das von 3600 m3 Senkkästen in einer Tiefe von 3 Metern gestützt wurde.
Windlasten
Als Reaktion auf das windige Klima Chicagos verleihen die abgerundeten Oberflächen und Rücksprünge des Trump Towers nicht nur seinen architektonischen Charakter, sondern tragen auch dazu bei, die Windkräfte zu minimieren.
Rücksprünge in Verbindung mit veränderten Querschnitten und Geometrien verhindern die Entstehung von Windwirbeln und reduzieren so die Gesamtbelastung des Bauwerks. Um der Wahrnehmung windbedingter Bewegungen durch die Gebäudenutzer entgegenzuwirken, sind in vielen Hochhäusern Dämpfer erforderlich, um Baubeschleunigungen zu reduzieren. In diesem Fall stützen und stabilisieren die Steifigkeit und das Gewicht des Gebäudes in Verbindung mit den asymmetrischen Rückseiten den Turm seitlich und minimieren die spürbaren Bewegungen.
Backtracking
Der Turm ist mit drei Rücksprüngen an seiner Fassade konzipiert. Jedes von ihnen weist auf einen architektonisch bedeutenden Nachbarn hin und ermöglicht eine „Kommunikation“ mit den umliegenden Gebäuden.
- Das erste befindet sich im 16. Stockwerk an der Ostseite des Trump Towers, in einer Höhe, die praktisch mit der Gesimslinie des 130 m hohen Wrigley Building übereinstimmt, das von Braham, Anderson, Probst & White entworfen wurde.
- Das zweite, auf Ebene 29, weist sowohl nach Norden in Richtung River Plaza als auch nach Westen in Richtung Marina City Towers, 179 m, von Bertrand Goldberg.
- Der dritte und letzte Rücksprung im 51. Stockwerk befindet sich im Westen des Turms und bezieht sich auf Mies‘ Chicagoer Projekt, 330 N. Wabash Av. Wabash Av., bekannt als das IBM-Gebäude.
Jedes Stockwerk ist durch eine Betonplatte getrennt, und an jeder Platte sind Paneele aus Edelstahl, Glas und Aluminium angebracht.
Details zur Gestaltung
Ein Beispiel für den Einfluss des Wassers auf die Gestaltung ist die 10,6 m hohe strukturelle Glaswand im Foyer. Ohne Stahlträger und vom ersten Stock hängend ähnelt er einem großen Wasserfall.
Die Wand, die aus einer Reihe von schrägen Glaslamellen besteht, ermöglicht einen offenen und ungehinderten Blick auf die Küste.
Nadel
Die Turmspitze erhebt sich 60 m über die Dachlinie, so dass die Gesamthöhe des Gebäudes 415 m beträgt. Die aus drei Abschnitten aus glasfaserbeschichtetem Baustahl konstruierte Turmspitze verjüngt sich von einem Durchmesser von drei Metern an der Basis auf 1,2 Meter an der Spitze. Die ersten 28 m auf dem Dach des Turms hätten mit einem Kran aufgerichtet werden können, aber für die Spitze musste ein Hubschrauber eingesetzt werden.
Materialien
Jüngste Fortschritte in der Betonzusammensetzung, wie hochfester selbstverdichtender Beton, Hochleistungspumpen und sichere und effiziente Schalungssysteme, haben den Bau von Hochhäusern wie dem Trump Tower effizienter und kostengünstiger gemacht als je zuvor.
Beton
Für den Bau, der etwa 4 Jahre dauerte, wurden 137 620 m3 Stahlbeton und 25 000 Tonnen Bewehrungsstäbe verwendet.
Auf den unteren Ebenen mit Flächen zwischen 3250 und 4180 m2 wurde jede Woche eine Etage gegossen. Oberhalb der Ebene 50 mit einer Grundfläche von 1395 m2 wird alle vier Tage ein Stockwerk errichtet.
Aluminium, Stahl und Glas
Die Fassade besteht aus einem Verbundwerkstoff aus Aluminium mit nicht brennbarem Mineralkern (ACM), Glas und hochglanzpoliertem Edelstahl. Von der Glasoberfläche aus verleiht dieses Pfostensystem der ansonsten bündigen Glaswand Dichte und Dicke sowie eine metallische Qualität.
Das klare Glas und die helle Materialpalette heben die Details und das Weiß des benachbarten Wrigley-Gebäudes hervor und tragen gleichzeitig zu einer glänzenden Fassade des Turms bei.
Die Doppelhelix-Rampe, die zu einem der Eingänge des Turms und zum Parkplatz führt, ist mit transluzentem Verbundglas verkleidet und wird nachts hinterleuchtet, wodurch der angrenzende Platz in einem laternenartigen Licht erstrahlt.
Die Turmspitze, die das Gebäude krönt, besteht aus 1120 Stahlteilen, 7200 Schraubensätzen und 126 Glasfaserplatten.
Die 92 Stockwerke von Tump werden von einem KONE Alta Aufzugssystem mit einer maximalen Geschwindigkeit von 8 Metern pro Sekunde bedient.
Kühlung
Der Trump Tower nutzt Wasser aus dem Chicago River zur Kühlung des Gebäudes. Das Kühlsystem führt das verbrauchte Wasser zurück in den Fluss und vermeidet das kostspielige Pumpensystem, das traditionell in diesen Wolkenkratzern verwendet wird, indem es den Wasserdampf vom Dach ableitet.
Alle Wohnungen verfügen über Hartholzböden, Kalkstein in den Bädern, Granit- oder Marmorarbeitsplatten, automatische Beleuchtung in den Schränken und die meisten Einheiten mit mehr als einem Schlafzimmer haben einen Herd mit Kamin.






























