Wrightwood-Galerie 659
Einführung
Von der Straße aus wirkt es wie ein typisches Gebäude aus den 1920er Jahren in der Stadt Chicagoaber im Inneren beherbergt Wrighwood 659 eine private Galerie, die von dem Architekten Tadao Andodirekt neben dem Haus, das er 1997 für Fred Eychaner gebaut hat, den Eychaner-Lee-Haus. Etwa 20 Jahre später bat Eychaner den Architekten, das an sein Haus mit 38 Wohnungen angrenzende Grundstück in einen Ort der Kunst zu verwandeln. Die neue Galerie ist auf Ausstellungen zu architektonischen und sozial engagierten Themen spezialisiert.
Im echten Ando-Stil Bei der Restaurierung wurde jede Treppenstufe, jede Betonfuge oder jede Glas- und Stahlfuge perfekt ausgeführt, wobei die ursprünglichen Bodenplatten durch massive Stein- und Hartholzplatten ersetzt wurden oder die Sichtmauerwerkswände mit weißen Wänden kombiniert wurden. Die Beleuchtungselemente sind kaum sichtbar, versteckt in Nischen aus Ziegeln, Beton und Stahl, aber der Raum bleibt zu jeder Zeit perfekt beleuchtet.
Standort
Die neue Galerie befindet sich im historischen Viertel Lincoln Park in Chicago, Vereinigte Staatenin 659 Wrightwood, nördlich des Zentrums und angrenzend an das Eychaner-Lee-Haus dass Tadao Ando Er entwarf für den Mann, der ihn Jahre später mit dem Umbau des 1929 errichteten alten Wohnhauses beauftragte, das ihm ebenfalls gehörte. Das Viertel ist geprägt von alten Stadthäusern und historischen Gebäuden im klassischen Chicagoer Stil.
Konzept
Die Vorgabe für den neuen Raum war, dass die Backsteinfassade des Gebäudes erhalten bleiben musste. Eychaner wollte den gemischten Kontext der Wohnstraße respektieren.
Die Antwort von Tadao Ando, der die Backsteinmauern als Symbol für die Stadt Chicago ansah, bestand darin, das Innere des Gebäudes vollständig zu demontieren und nur die Fassaden zu erhalten, im Inneren eine neue Struktur aus Beton und Stahl zu errichten und ein zusätzliches Stockwerk, ein Penthouse, hinzuzufügen. Dieses Gebäude-im-Gebäude-Konzept erinnert an andere Ando-Projekte wie die Punta della Dogana in Venedig, die Pariser Börse und das Ando-Museum auf der Insel Naoshima in Japan, ein traditionelles Holzhaus, das in eine betonverkleidete Galerie umgewandelt wurde. Das Wohnhaus 659 Wrightwood erlebte, wenn auch in größerem Maßstab, eine ähnliche Renaissance.
Räume
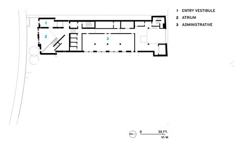
Der Standort ist ein rechteckiger Streifen mit dem Dienstleistungskern in der Mitte und dem privaten Bereich auf der dem Eingang gegenüberliegenden Seite.
Der Architekt nutzte die vertikale Zirkulation, um die Fassade des Gebäudes zu definieren. Durch das Nebeneinanderstellen zweier Gitter entsteht der ikonische Atriumraum, der ein wenig an das Projekt Punta Della Dogana in Venedig, Italien, erinnert. Die Mischung aus Beton, Holz und Ziegeln hat einen visuell dynamischen Raum geschaffen, der sich gut in die Umgebung von Chicagos Stadtteil Lincoln Park einfügt.
Das erste, was dem Besucher auffällt, wenn er die Lobby betritt, ist das hoch aufragende Atrium, das sich über die gesamte Höhe des ursprünglichen Gebäudes erstreckt und wie alle Außenfassaden mit rotem Backstein aus Chicago verkleidet ist. Das Ziegelmauerwerk im gesamten Innenraum ist freigelegt und elegant beleuchtet und umrahmt den gehärteten polierten Beton, Edelstahl und Glasdetails. Die White-Cube-Galerien auf jeder Etage bieten flexible Räume für die Ausstellung von Arbeiten.
Vom prächtigen Atrium aus stützt ein Sichtbetonturm das Treppenhaus, das in die oberen Stockwerke führt.
Während das erste Stockwerk von unterstützenden Funktionen eingenommen wird, befinden sich in den oberen Stockwerken lobbyartige Balkone, gefolgt von offenen, weißwandigen Galerien, die zwischen schmalen Schlitzen mit mechanischen und zirkulierenden Räumen eingebettet sind. Die Galerie im dritten Stock gipfelt in einem erhöhten Bereich mit doppelter Höhe, der als informelle Bühne dienen kann. Von dort führt eine Treppe zur Galerie im vierten Stock mit Oberlichtern, gefolgt von einem Vestibül und einem Korridor, der die Dachterrassen an beiden Enden verbindet. Die Nordterrasse öffnet sich zur Baumkrone der Straße, die Südterrasse zur Skyline der Stadt und der Korridor zum angrenzenden Haus und seinem Wasserspiel. Dies ist eine von Tadao Ando häufig angewandte Designtechnik, um die Besucher nach dem Erreichen der Spitze des Gebäudes zu befreien, damit sie sich wieder mit der Stadt verbinden und sie betrachten können, nachdem sie alle Ausstellungsstücke gesehen haben.
Penthouse
Im neuen fünften Stockwerk des Gebäudes ist der Eingriff von Ando besonders einzigartig. Von der Straße zurückgesetzt, um den Charakter des Viertels nicht zu stören, erhebt sich eine verglaste Galerie über die angrenzenden Gebäude und bietet Ausblicke in alle Richtungen. Ein großzügiger Balkon und raumhohe Fenster führen eine neue, zeitgenössische Sprache in die adaptive Umnutzung ein, während der polierte Beton, der für die Projekte von Tadao Andocharakteristisch ist, dem Gebäude in der Penthouse-Galerie eine neue Energie verleiht. In der Galerie durchschneidet ein langes, schlankes Oberlicht die Decke und öffnet sich zum Himmel hin, um Tageslicht in einen zweistöckigen, erhöhten Raum zu bringen, den Ando ausgehoben hat, um größere Kunstwerke unterzubringen.
Die Betonplatte des neuen Penthouses ist die einzige sichtbare Struktur, die sich vom Rest des roten Backsteingebäudes abhebt. Das weiße, auskragende Dach und die eingelassenen Fenster mit Metallrahmen verleihen dem Gebäude eine neue Identität.
Neben den Ausstellungssälen beherbergt das Gebäude auch Bildungsräume, die durch eine breite Palette kreativer Projekte zu einem wichtigen Bestandteil des städtischen Gefüges werden sollen.
Struktur
Die größte Herausforderung bei diesem Projekt bestand darin, das bestehende Mauerwerk während der Bauarbeiten intakt zu halten und abzustützen.
Die Bauarbeiten umfassten das Abstützen der bestehenden Außenwände, das Einsetzen eines neuen Stahlrahmens zur Unterstützung der tragenden Außenwand aus Mauerwerk aus den 1930er Jahren und den anschließenden Abriss aller anderen ursprünglichen Gebäude. Anschließend wurde der Stahl mit Beton ummantelt, die Außenwände wurden isoliert und die Fenster und Vorhangfassaden mit Dreifachverglasung versehen.
Der Abriss des Innenraums hinterließ einen leeren Rohbau von 12,19 m Höhe, der während des gesamten Projekts gestützt werden musste. Die konstruktive Lösung bestand darin, einen Stahlrahmen zu entwerfen, der durch gerichteten Abbruch in die Böden eingesetzt und zur Aussteifung mit der Außenwand verbunden wurde.
Nach dem Einbau des neuen Stahlrahmens konnte das Bauunternehmen die vorhandenen Flachböden und tragenden Innenwände abreißen, ohne die Außenwände zu beeinträchtigen. Dieser Stahlrahmen wurde als Teil der permanenten Schwerkraftunterstützung des Gebäudes verwendet, wodurch neue Ebenen geschaffen wurden und ein zusätzliches Obergeschoss aufgesetzt werden konnte. Die neue Struktur, die die Gesamtgrundfläche des Gebäudes beibehält, entfernt die tragenden Innenwände und fügt zwei neue Reihen von Innenstützen im Abstand von ca. 6,71 m hinzu, die die Schaffung eines offenen Atriums ermöglichen, das drei Ebenen in der Höhe erreicht.
Strategische Löcher wurden in die bestehenden Innenwände und Decken gebohrt, um ein dreidimensionales Gitter aus Stahlträgern und -stützen zu konstruieren, deren Flansche an den Außenwänden verankert wurden. Nach Abschluss der Abbrucharbeiten wurden die Balken mit Ortbetonbalken verbunden, die mit Ortbetonfugen versehen wurden. Diese Schalungsmethode ist zwar teurer, wurde aber wegen ihrer hohen Tragfähigkeit gewählt.
Die 46 cm dicken Wände des Atriums sind mit einer zusätzlichen Schicht aus hellbraunen Ziegeln versehen, die beim Abriss des Gebäudes geborgen wurden und in das bestehende Mauerwerk integriert wurden.
Auf dem Dach ragt ein Ortbetondach mit großen Überhängen über eine Dachterrasse hinaus.
Um den Anforderungen des Raumklimas in der Galerie gerecht zu werden und Kondensation zu vermeiden, entwickelten die Ingenieure thermisch getrennte Verbindungen zwischen den neuen Stahlelementen und dem bestehenden Mauerwerk. Diese bestehen aus einer vorgesetzten Platte, die mit Klebeankern aus rostfreiem Stahl befestigt und mit einem nicht leitenden Keil vom Außenmauerwerk getrennt wird.
Materialien
Hinter den freigelegten roten Backsteinfassaden, die für die Stadt Chicago charakteristisch sind, wurde eine neue Struktur aus Beton und Stahl errichtet. Die Stahlsäulen wurden mit Beton ummantelt, um sie stärker zu machen.
Andos Entwurf zeichnet sich durch großflächige glatte Betonwände in Kombination mit Granitböden im Atrium, Eichenholzlattendecken und recycelten Chicago Common-Ziegelwänden aus und verwendet neben rotem Backstein auch Glas und gebürsteten Stahl in den Verkehrsbereichen. Im vierten Stock besteht die nach Westen gerichtete Wand aus raumhohem Glas und Stahl.
Die Treppengeländer sind aus gehärtetem Glas mit Handläufen aus gebürstetem Stahl. Die Betonbodenplatten sowie die Treppenstufen sind mit Hartholz belegt.
Die drei Ebenen der flexiblen Galerien sind mit Eichenholzböden und Akustikputzdecken ausgestattet und nutzen die neueste Technologie zur Steuerung von Beleuchtung und Sicherheit.
Die im Inneren wiederverwendeten Ziegelsteine sind mit hinterschnittenen Fugen und ¾ Zoll tiefem Mörtel zusammengesetzt, was bei Beleuchtung tiefe Schatten erzeugt und aus einem zweckmäßigen Material eine reiche Innenausstattung macht.
Das neue Atrium mit seinen Sichtziegelwänden hat ein mit Holz verkleidetes Dach.






















