Museum der Kulturen (Renovierung)
Einführung
Seit 2011 setzt das markante Dach des Museums der Kulturen Basel (MKB) einen besonderen Akzent im historischen Stadtbild mit seinen engen Gassen und verwinkelten Dächern.
Die Kombination aus mittelalterlicher und moderner Architektur des Museums der Kulturen Basel (MKB) mit seinem extravaganten Dach und einem malerischen Innenhof mit breiter Treppe macht den Komplex einzigartig und attraktiv.
Die von dem renommierten Architekturbüro Herzog & de Meuron entworfene Decke wurde von der Decke des nahe gelegenen Basler Münsters inspiriert. Beide Gebäude sind Leuchttürme in der architektonischen Landschaft der Stadt und ziehen die Aufmerksamkeit von Fachleuten und Liebhabern aus der ganzen Welt auf sich.
Geschichte
Das Museum der Kulturen Basel geht auf die Mitte des 19. Jahrhunderts zurück, als der klassizistische Bau des Architekten Melchior Berri 1849 an der Stelle des Augustinerklosters Münsterhügel eröffnet wurde. Das „Universalmuseum“, wie es damals genannt wurde, war das erste Museumsgebäude der Stadt. Es wurde sowohl für die Wissenschaft als auch für die Kunst konzipiert und beherbergt heute eine der bedeutendsten ethnografischen Sammlungen Europas, was vor allem auf die kontinuierlichen Schenkungen und Vermächtnisse zurückzuführen ist. Im Jahr 1917, mit einem Bestand von etwa 40.000 Objekten, wurde ein Erweiterungsbau von den Architekten Vischer & Söhne errichtet. Im Jahr 2001 wurde eine zweite Erweiterung geplant, um die inzwischen rund 300.000 Objekte aufzunehmen. Die Änderungen würden einen besonderen Eingang für das Museum und ein neues Dach umfassen, das dem Museum eine neue Identität verleiht. Die jüngste Restaurierung wurde von den Architekten Herzog & de Meuron durchgeführt.
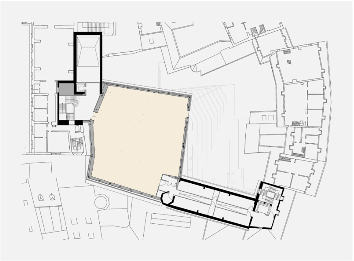
Standort
Das Kulturmuseum befindet sich am Münsterplatz 20, 4001 Basel, Schweiz, in der Altstadt von Grossbasel, dem zentralsten Bereich der Stadt, zwischen dem Bahnhof und dem Rhein am Südufer.
Seit der Renovierung befindet sich der Haupteingang des Museums auf dem Münsterplatz. Im Hof angekommen, betritt der Besucher die Eingangshalle und den Museumsshop im Untergeschoss über sanft abfallende Treppen und Rampen mit einem lebendigen Pflaster, das die Topographie des Innenhofs widerspiegelt, und unter einem Vorhang aus hängenden Pflanzen, der die Fassade bedeckt.
Hier befinden sich das Rathaus, ein roter Sandsteinbau aus dem 16. Jahrhundert, und das Basler Münster, eine beeindruckende gotische Kathedrale aus dem 15. Jahrhundert, sowie zahlreiche Museen.
Räume
Das Museum besteht aus verschiedenen Gebäuden, die sich um einen idyllischen Innenhof gruppieren. Was das Ensemble so einzigartig macht, ist die Mischung aus verschiedenen architektonischen Stilen und Epochen: links und rechts die aus dem Mittelalter stammenden Gebäude, die heute Büros und ein Restaurant beherbergen, und im Hintergrund das klassizistische Gebäude des Schweizer Architekten Melchior Berri, in dem ursprünglich das Museum untergebracht war.
Aufgrund des Wachstums der Sammlungen wurde 1917 ein neuer Flügel an das ursprüngliche Gebäude an der Seite des barocken Schürhofs aus dem 18. Jahrhundert angebaut. Es wurde von den Architekten Vischer und Söhne entworfen.
Gegen Ende des letzten Jahrhunderts wurde deutlich, dass das Museum weiter ausgebaut werden musste. Die Aufgabe wurde an das Architekturbüro Herzog & de Meurondie nicht nur einen eigens entworfenen neuen Ausstellungssaal im Obergeschoss schuf, sondern auch den Eingangsbereich, die Inneneinrichtung des Museums und das neue Dach im Flügel Vischer und Söhne neu gestaltete.
Renovierung Herzog & de Meuron
Der schwere, introvertierte Eindruck des Gebäudes, der seinen Inhalt zunächst verbirgt, wird durch die Fassaden, von denen viele Fenster geschlossen sind, und durch die spiralförmige Konstruktion zur Abstützung der überhängenden Vegetation, die unter der Traufe des darüber liegenden Kragdachs angebracht ist, verstärkt. Dies wird jedoch durch die Fundamente ausgeglichen, die über die gesamte Länge des Gebäudes offen sind und Besucher willkommen heißen. Diese architektonischen Eingriffe gliedern zusammen mit der Vegetation das lange, kantige und einheitliche Vischer-Gebäude von 1917 in verschiedene Abschnitte.
Die Fenster wurden nicht nur geschlossen, um das Gewicht und die Eleganz des Gebäudes zu erhöhen, sondern auch, um Platz in den alten Räumen zu gewinnen. Die wenigen verbliebenen Öffnungen wurden verbreitert und reichen nun bis zum Boden. Die Fenster sind so tief, dass sie kleine Nischen mit Blick auf die Altstadt bilden und die Räume mit natürlichem Licht durchfluten, was ein angenehmes Raumgefühl vermittelt.
Dach und neue Galerie
Das aus unregelmäßigen Falten bestehende Dach, das mit schwarz-grünen Keramikziegeln bedeckt ist, steht im Einklang mit der mittelalterlichen Landschaft, in die es eingebettet ist, und ist gleichzeitig ein deutliches Zeichen der Erneuerung im Herzen des Viertels. Die sechseckigen, zum Teil dreidimensionalen Ziegel brechen das Licht auch bei bewölktem Himmel und erzeugen einen Effekt, der den fein strukturierten Ziegeln auf den Dächern der Altstadt sehr ähnlich ist.
Der Stahlrahmen des gefalteten Daches ermöglicht eine stützenfreie Galerie darunter, 650 m2 ausdrucksstarker Raum, der einen auffälligen Kontrast zu den ruhigen, rechtwinkligen Galerien der unteren Stockwerke bildet. Die Geometrie des Obergeschosses ähnelt einem sägezahnförmigen Dach mit unregelmäßigen Graten, in Wirklichkeit handelt es sich jedoch um ein leichtes, stützenfreies Raumgerüst. Der ausdrucksstarke Raum bietet einen auffälligen Kontrast zu den ruhigen rechteckigen Galerien in den unteren Stockwerken.
Zugang
Bis zum Umbau durch Herzog & de Meuron teilten sich das Kultur- und das Naturhistorische Museum den gleichen Eingang in der Augustinergasse. Ersterer wird nun direkt vom Münsterplatz aus über den bisher unzugänglichen Hinterhof, den Schürhof, erschlossen, der zu einer Erweiterung des Platzes geworden ist.
Um die Eingangshalle zu schaffen, wurde das ehemalige Untergeschoss zum Hof hin geöffnet, der wiederum in Form eines Amphitheaters abgestuft und für museale Zwecke erweitert wurde. Eine versenkte Glaseinfassung schließt die gesamte Fassade ab und schafft eine visuelle Beziehung zwischen dem Innen- und dem Außenbereich.
Innenhof
Der Hof mit der charakteristischen „Patchwork“-Anordnung der hinteren Teile der mittelalterlichen Gebäude wurde zu einer Erweiterung des Münsterplatzes, dem Hauptplatz der Stadt, und zu einem sozialen Treffpunkt für alle Arten von Museumsaktivitäten und Festen. Ein Teil davon wurde abgesenkt und eine breite, leicht abfallende Treppe führt zum Eingang des Museums. Hängepflanzen und Weinreben verleihen ihm ein unverwechselbares Ambiente und im Zusammenspiel mit dem Dach eine neue Identität.
Renovierung von alten Räumen
Die Sanierung der ehemaligen Messehallen umfasste die Verbesserung der Erdbebensicherheit durch den Einbau von Stahlbetonwänden, die Erneuerung des Lastenaufzugs, den Einbau eines Besucheraufzugs, die Erneuerung und Anpassung der Heizungs- und Lüftungsanlagen sowie die Verbesserung des Brand- und Einbruchschutzes.
Die Abfolge der Räume folgt auf den drei Etagen der Galerie dem gleichen Muster. Nur zwei Zimmer variieren: im ersten Stock, direkt über dem Eingang, ein großes Zimmer mit Fenstern auf einer Seite mit Blick auf den Innenhof. Darüber wurde eine Decke entfernt, so dass ein zweistöckiger Raum mit einem schmalen Fenster entstand, in dem die größten Objekte der Sammlung ausgestellt werden können. Von diesem Raum, der auch als Orientierungsraum im Museum dient, können die Besucher nach unten schauen.
Struktur
Abdeckung
Der riesige Dachaufbau, 29m lang, 27m breit, 10,50m hoch, expressiv gestaltet und montiert, bietet im Dachgeschoss zusätzliche Ausstellungsflächen.
Desván
Das Hauptgebäude mit dem Treppenhaus und der Halle in der Höhe des Gebäudes wurde um ein vorspringendes, stützenfreies Obergeschoss erweitert. Das neue, 650 m2 große, selbsttragende Dachgeschoss, eine Konstruktion, die auf dem bestehenden Fußboden errichtet wurde, ruht auf den Außenwänden, die als Auflagefläche dienen.
Um diese besondere Ausstellungshalle unterzubringen, wurde das ursprüngliche Giebeldach durch eine neue Konstruktion ersetzt. Da die vorhandenen Außen- und Innenwände keine zusätzlichen Lasten tragen konnten, wurde ein selbsttragender Holzrahmen errichtet, der sich über das gesamte Gebäude erstreckt.
Um die erforderliche Grundfläche für die Halle zu erreichen, ragt der Neubau bis zu 8 m über den Altbau hinaus. Die Lasten werden über einige Stahlbügel abgeleitet, die separat verteilt sind.
Trotz der ungleichmäßigen Faltung des Daches ist es so gegliedert, dass es sich an den Maßstab der Landschaft der benachbarten historischen Gebäude anlehnt.
Galerien
Die Renovierung der Galerien folgte durchweg ähnlichen Prinzipien. Die älteren Räume haben klassizistische Kassettendecken, die späteren Anbauten sind mit einseitig gelagerten Betonbalken versehen. Um die ursprüngliche Struktur der Räume wiederherzustellen, wurden die Zwischendecken entfernt und die technischen Anlagen so unauffällig wie möglich in die bestehenden architektonischen Elemente integriert.
Zugang
Die Öffnung der neuen Fassade auf der Eingangsebene wird durch einen Stützbalken ermöglicht, dessen Last von den vorhandenen Stützen und den neuen Verbundstützen abgetragen wird.
Materialien

Das gefaltete Dach in Form eines Gebirges ist mit 10.000 glasierten, dreidimensionalen sechseckigen Keramikfliesen bedeckt, die speziell für dieses Projekt entwickelt wurden. Aufgrund ihrer ungewöhnlichen Form und je nach Lichteinfall, Tageszeit und Betrachtungswinkel erzeugen sie ein ständig wechselndes Erscheinungsbild, bei dem sich ihre grüne Farbe mit wechselnden Helligkeits- und Farbtoneffekten abwechselt.
Die Dampfsperre und die Wärmedämmung des neuen Daches befinden sich auf der Außenseite der Stahlkonstruktion. Die Isolierschicht des Daches besteht aus einem Stehfalz-Blechdach. Das freiliegende Dach mit Keramikziegeln ist nur dekorativ.
Die Pflasterung des Münsterplatzes setzt sich bis zum Beginn der Treppe, die zum Besuchereingang hinunterführt, fort. Die Stufen sind mit Klinkern und die Fronten mit rotem Porphyr verkleidet.
Die Eingangsfassade ist mit einem hängenden Garten geschmückt, der den großen Überhang unterbricht. Der Rest der Fassaden ist mit Virginia-Kletterpflanzen bewachsen.















































































