Dorothy H. Turkel Haus
Einführung
Das 1955 von Dorothy Turkel in Auftrag gegebene, 399,48 m2 große Betonblockhaus wurde vom Architekten Frank L. Wright entworfen.
Das 1958 fertig gestellte Turkel House repräsentiert Wrights usonischen automatischen Stil und ist vielleicht das einzige zweistöckige Beispiel eines Gebäudes in diesem Stil.
Usonische Automatik
Wright begann in den 1930er Jahren mit der Entwicklung seines Konzepts der „Usonian Houses“ mit dem Ziel, erschwinglichen Wohnraum für den Durchschnittsamerikaner zu schaffen, was mit der Politik des New Deal von Präsident Roosevelt zusammenfiel. In den 1950er Jahren begann Wright, den Begriff „Usonian Automatic“ für Konstruktionen aus preiswerten Betonblöcken im Usonian-Stil zu verwenden. Gebäude mittlerer Größe, die vor Ort leicht und kostengünstig aus vorgefertigten Materialien zusammengesetzt werden können.
Durch die Verwendung von Betonblöcken und die Minimierung der Innen- und Außenarbeiten sollten die Usonian Automatic-Strukturen die hohen Kosten für qualifizierte Arbeitskräfte vermeiden und die Häuser für Hausbesitzer aus der Arbeiterklasse erschwinglich machen.
Wiederherstellung
Nachdem das Haus jahrelang vernachlässigt worden war, wurde es 2006 von Norm Silk und Dale Morgan gekauft, die den Architekten Lawrence Brink aus Ann Arbor, einen ehemaligen Lehrling von Wright, mit der notwendigen Restaurierung beauftragten.
Die Arbeiten begannen im Jahr 2007 und dauerten mehr als 4 Jahre. Sie arbeiteten nach archivierten Originalplänen.
Usonian Automatic Häuser wurden aus einem Betonmauersystem gebaut, das Wright 1949 entwickelte. Obwohl es Hunderte von Usonian Häusern in den Vereinigten Staaten gibt, sind nur 7 davon „automatisch“, wobei das Dorothy G. Turkel Haus das größte und das einzige ist, das mit zwei Ebenen gebaut wurde.
Standort
Es ist das einzige Gebäude des Architekten innerhalb der Stadtgrenzen von Detroit, 2760 West 7 Mile Road im Stadtteil Palmer Park, USA.
Wright platzierte das Haus an der äußersten Ecke eines doppelten Grundstücks und schuf so eine große, offene Umgebung. Der Zugang erfolgt über einen schmalen, durch Laub geschützten Pfad.
Konzept
Wrights usonische Entwürfe hatten im Allgemeinen einen L-förmigen Grundriss, waren horizontal ausgerichtet und verwendeten natürliche Materialien, natürliches Licht, Flachdächer mit Überhängen und beheizte Fußböden. Die Idee des Usonian-Designs entstand während der Weltwirtschaftskrise in den 1930er Jahren, als ein Bedarf an kleinen, kostengünstigen Fertighäusern bestand. Das weitaus größere und opulentere Turkel House mit seinen 399,48 m2 passt jedoch nicht ganz in dieses Schema.
Räume
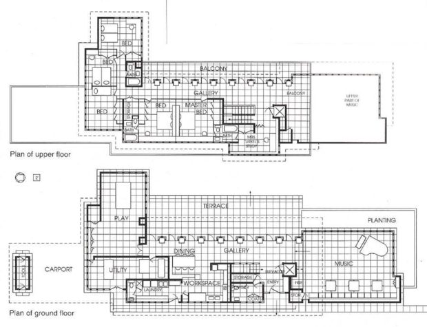
Der Haupteingang befindet sich unauffällig an der Westfassade. Das Haus hat keinen Keller oder Dachboden. Beim Betreten des Hauses stößt der Besucher auf der rechten Seite auf das große, doppelhohe Wohnzimmer, das Wright „Musikzimmer“ nannte.
Die ursprünglichen Pläne von Wright sahen einen Platz für einen Aufzug vor, der jedoch nie genutzt wurde.
Erdgeschoss
Musikzimmer
Das Musikzimmer ist das geräumige zentrale Wohnzimmer des Hauses, der einzige große Gemeinschaftsraum mit doppelter Höhe, die Decken liegen bei 4,57m. Die beiden längeren Seitenwände bestehen aus perforierten Betonsteinen und sind mit Glas umschlossen, damit natürliches Licht eindringen und die Aussicht genießen kann.
Andere Einheiten
Auf der linken Seite und entlang der 14,63 m langen verglasten Galerie, die mit zahlreichen Türen auf die Terrasse führt, befinden sich die Küche, die Speisekammer, das Esszimmer, die Waschküche, das Spielzimmer und ein Mehrzweckraum.
Zweiter Stock
Im ersten Stock befinden sich das Arbeitszimmer, das Hauptschlafzimmer, drei Bäder und vier weitere Schlafzimmer. Ein Balkon auf dieser Etage führt zum „Musikzimmer“. Auf der einen Seite ist die Wand, die die zweite Ebene begrenzt, mit einer Reihe von Türen versehen, die auf einen auskragenden Außenbalkon führen, der die Länge des ersten Stockwerks betont und an der kurzen Wand des L-förmigen Grundrisses endet.
Balkon
Ebenfalls im ersten Stock befindet sich das vielleicht auffälligste Merkmal des Gebäudes. An der Fassade zum Garten hin und entlang einer 15 m langen Galerie befindet sich ein freitragender Balkon, der durch 8 Glastüren aus Stahl zugänglich ist.
Obwohl von der Straße aus nicht sichtbar, sind die Betonflächen der Terrasse im Erdgeschoss und des Balkons im zweiten Stock in leuchtendem Rot gehalten, um einen Kontrast zu den ursprünglich blau gestrichenen Fensterrahmen des Gebäudes zu schaffen.
Struktur
Der Bau dieses Hauses im usonischen Automatikstil begann mit einer Betonplatte und wurde dann mit Reihen von vorgefertigten Betonsteinen von Grund auf fortgesetzt. Jeder Block enthielt eine halbkreisförmige Rille entlang jeder der nicht exponierten Seiten. Die Schichten wurden ohne Mörtel verlegt, und anschließend wurden Bewehrungsstäbe sowohl horizontal als auch vertikal in den Rillen angebracht. Die Hohlräume wurden mit Mörtel gefüllt und die einzelnen Blöcke zu einer stabilen, tragenden Wand verbunden.
Die quadratische Blockform, die sich im gesamten Entwurf wiederfindet, ist besonders im Musikzimmer zu sehen, einem zweigeschossigen Raum, in dem das Licht durch die 40 cm hohen Blöcke der Seitenwände eindringt.
Materialien
Da nur eine Handvoll Usonian Automatic-Strukturen gebaut wurde, wurden die von Wright entworfenen innovativen vorgefertigten Komponenten nie in Serie produziert. Für das Turkel-Haus mussten Betonhohlblocksteine mit mehr als 36 Mustern vor Ort gegossen und von spezialisierten Bauunternehmen zusammengesetzt werden, was die Baukosten erheblich erhöhte.
An den äußeren Traufkappen werden spezielle Fassadenblöcke und ein Eckblock verwendet, um die notwendige Wiederholung und den Erhalt des von Wright gewünschten angemessenen Maßstabs zu erreichen.
Das Innere ist mit von Architekten entworfenen Möbeln, Mahagoni-Vertäfelungen, Einbauschränken und anderen von Wright selbst entworfenen Einrichtungsgegenständen ausgestattet. Der Boden ist aus poliertem Beton.
Wright war ein Innovator, der Techniken einsetzte, die heute als beste Praktiken des „grünen Bauens“ gelten. Große Bäume und Dachvorsprünge schützen die Bewohner des Turkel-Hauses vor der Sommersonne.
Obwohl Klimaanlagen in den 1950er Jahren in den Häusern der Wohlhabenden üblich wurden, vermied Wright ihre Verwendung. Ich wollte die Zirkulation zwischen Innen- und Außenräumen fördern. Eine Fußbodenheizung sorgt dafür, dass sich Betonoberflächen auch dann warm anfühlen, wenn der Thermostat im Winter niedrig eingestellt ist.









