George-Sturges-Haus
Einführung
Frank Lloyd Wrights Einfamilienhaus für den Ingenieur George Sturges und seine Frau war das einzige Bauwerk, das der Architekt in Südkalifornien in dem modernen Stil errichtete, den Wright „usonisch“ nannte.
Die Sturges blieben bis 1951 in diesem Haus. Nach dem Auszug der Sturges hatte das Haus drei Besitzer, bis es schließlich von den Schauspielern Jack Larson und James Bridges erworben wurde, die Lautner 1967 einstellten, um die Restaurierung in den nächsten Jahren zu überwachen. Am 25. Mai 1993 wurde es zum Historisch-Kulturellen Denkmal von Los Angeles ernannt.
Nach Larsons Tod im Jahr 2015 sollte das Haus versteigert werden, wobei der Erlös an die gemeinnützige Bridges-Larson-Stiftung gehen sollte.
„…Das 1939 fertiggestellte Wohnhaus von George D. Sturges wird nach dem Tod des Schauspielers und Dramatikers Jack Larson verkauft, der 48 Jahre lang mit seinem Partner James Bridges auf dem aus Redwood und Ziegeln errichteten Anwesen lebte…“
Das ursprüngliche Projekt, das von Wright mit 7.000 Dollar veranschlagt worden war, wurde auf 11.000 Dollar aufgestockt. Der geschätzte Verkaufspreis im Jahr 2016 lag zwischen 2,5 und 3 Millionen Dollar. Im Februar desselben Jahres gab Los Angeles Modern Auctions bekannt, dass sich keine qualifizierten Bieter gemeldet hatten und die Auktion zurückgezogen wurde.
Standort
Das George Sturges House wurde an der 449 North Skyewiay Road im Stadtteil Brentwood Heights in Los Angeles, Kalifornien, USA, errichtet.
Konzept
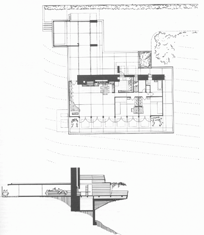
Innerhalb des usonischen Modells gehört das Haus zum so genannten linearen Typ (Usonian in line), einem Erdgeschosshaus mit reduzierten Umläufen und einem kleineren Außenumfang als das Grundmodell dieses Stils.
Die Linien der Fassade repräsentieren Wrights Anlehnung an den populären Streamline-Modern-Stil der 1930er Jahre, eine fortschrittliche amerikanische Ergänzung zu den glatten, skulpturalen Linien der Art-déco-Bewegung in Frankreich. Diese Linien in Verbindung mit den glatten Oberflächen und den geschwungenen Kanten, die Geschwindigkeit und Beweglichkeit suggerieren, lassen das Struges-Haus wie eine kraftvolle Maschine erscheinen.
Der Architekturhistoriker David Gebhard schrieb: „…das Sturges House ist möglicherweise der abstrakteste Ausdruck der Verbundenheit des Architekten mit den Idealen der 1930er Jahre von Geschwindigkeit und Bewegung…“.
Räume
Ein Teil der Bauarbeiten wurde von dem damals frischgebackenen Architekten John Lautner überwacht, der bereits bei Tielesin mit Wright zusammengearbeitet hatte, was sich als großer Einfluss auf einige seiner späteren Arbeiten erwies.
Der Zugang erfolgt von Westen her, von der der Straße zugewandten Rückseite, auf der Spitze des Hügels. Neben dem Eingang befindet sich eine Veranda, die als Abstellraum für das Auto genutzt wird.
Die 110 m2 bebaute Fläche nimmt einen rechteckigen Grundriss von ca. 14,80 x 5,70 m ein (ohne Terrasse), in dem sich zwei Schlafzimmer, ein Badezimmer, eine Küche, ein offenes Wohnzimmer, das auch das Esszimmer umfasst, ein Holzofen und eine Speisekammer befinden. Obwohl das Haus für damalige Verhältnisse klein ist, verfügt es über eine 16,40 m lange Panoramaterrasse, die sich entlang der vorderen Fassade erstreckt und auf die sich die Schlafzimmer und das Wohnzimmer öffnen. Eine kleine Treppe führt hinauf auf die Dachterrasse und hinunter in den fensterlosen Keller.
Die beeindruckende, fast 17 m lange, auskragende Terrasse und das darüber liegende Dach sind eine klare Anspielung auf das Falling Water House, wo zwei Betonterrassen über einen Wasserfall am Bear Run Creek ragen. In diesem Fall erfüllt diese Pergola verschiedene Funktionen, wie z. B. Schutz vor Kälte oder Modulation des natürlichen Lichts. Die Struktur der Terrasse setzt die Struktur des Hauses fort und unterstreicht die Linien der für den Stil und das Konzept des Hauses charakteristischen Schreinerelemente.
Struktur
Obwohl der Bau des Hauses am 20. August 1939 begann und die Sturges Ende desselben Jahres einziehen konnten, war der Prozess von einigen Rückschlägen begleitet, die die Reinheit des Entwurfs des Architekten behinderten. Wrights erstes Konzept, nur Beton, Holz und Ziegel zu verwenden, wurde vom Bauamt nicht akzeptiert, und die Holzbalken und Diagonalen mussten durch Stahlträger ersetzt werden.
Auch die massive Betonmasse wurde so umgestaltet, dass sie eine Reihe von Hohlräumen einnimmt. Später, nach einer dritten Überarbeitung, wurden ein 4-Zoll-Rohr und 3-Zoll-Winkel über der Treppe hinzugefügt.
Das Haus schiebt sich auf 2/3 seiner Länge den Hang hinauf, mittels einer freitragenden Holzkonstruktion über einem massiven Kern aus Beton und Ziegeln, in den der Schornstein eingelassen ist, was ihm eine schlichte und majestätische Präsenz verleiht, einen Aussichtspunkt, der die Landschaft beherrscht, mit herrlichem Blick auf das Meer und klaren Bezügen zum berühmten Casa de la Cascada.
Materialien
Das Haus wurde aus Beton, freitragenden Stahlträgern, Ziegeln und Rotholz gebaut. Außerhalb der Sturger Residence scheinen die Ziegel und das Holz direkt aus der Erde am Berghang der North Skyewiay Road zu kommen. Beide Materialien sind in der Fassade auf Straßenebene kombiniert, wo die Wände aus rotem Sichtziegel bestehen, eine Verkleidung, die sich an einigen Innenwänden wiederholt, kombiniert mit horizontalen Brettern und secuolla-Holzverkleidung. Ein großer hölzerner Überhang ohne sichtbare Stütze überragt den Haupteingang.
Die langen horizontalen Linien der Holzverkleidung, sowohl auf der Terrasse als auch an den Außen- und Innenwänden, sind aus gelapptem Rotholz gefertigt.
Frank Wright entwarf die Möbel des Hauses im gleichen hölzernen und stromlinienförmigen Stil, einschließlich der Stühle, Tische und anderen Einrichtungsgegenstände sowie der Küchen- und Schlafzimmerschränke.






















