Google Charleston East Campus – Bay View
Einführung
Der erste von Google von Grund auf neu errichtete Campus, der von BIG – Bjarke Ingels Group und Heatherwick Studios in Zusammenarbeit mit den Design- und Ingenieurteams von Google entworfen wurde, wurde im Mai 2022 im Silicon Valley eröffnet. Das Ziel des Campus ist es, eine auf den Menschen ausgerichtete Arbeitsumgebung zu schaffen und neue globale Nachhaltigkeitsstandards für Bürodesign und -bau zu setzen. Der Standort soll bis 2030 vollständig mit kohlenstofffreier Energie betrieben werden, indem das umfangreichste geothermische Pfahlsystem Nordamerikas integriert wird.
Die Expansion von Google im Laufe der Jahre hat das Unternehmen gezwungen, mehrere Gebäude in der Nähe zu belegen, wenn diese frei wurden, in einigen Fällen getrennt durch Parkplätze, aber immer mit offensichtlichen organisatorischen Einschränkungen und Rückschlägen für die Mitarbeiter in verschiedenen Bereichen. Das Unternehmen ist in einigen der berühmtesten Büros der Welt untergebracht. Der Kern des „Googleplex“, wie der Hauptsitz des Unternehmens in Mountain View, Kalifornien, allgemein genannt wird, besteht aus einem vorstädtischen Büropark, der früher von Silicon Graphics genutzt wurde und den Google nach seinen Bedürfnissen umgestaltet hat. In New Yorkist Google Eigentümer des riesigen ehemaligen Port Authority Headquarters in Chelsea.
Andererseits ist ein einziger zentraler Hauptsitz auch nicht Googles Ansatz und für die Stadt Mountain View auch nicht wünschenswert. Die Herausforderung für die Architekten BIG Bjarke Ingels und Heatherwick Studio bestand darin, eine replizierbare und skalierbare Gebäudetypologie zu entwerfen, die sich auch an die verschiedenen Standorte in North Bayshroe und darüber hinaus anpassen lässt.
Google Charleston East legt großen Wert auf die Förderung des Gemeinschaftsgefühls bei gleichzeitiger respektvoller Integration der natürlichen Umwelt, die Verwischung der Grenzen zwischen draußen und drinnen, die Entfernung von Asphalt zugunsten der Natur und die Förderung des Fußgänger- und Fahrradverkehrs, auch innerhalb von Gebäuden.
Auch die Anwohner werden in mehrfacher Hinsicht vom neuen Bay-View-Campus profitieren können. Dazu gehören: ein erweiterter öffentlicher Zugang zu Wanderwegen mit malerischen Ausblicken auf die Bucht, verbesserte Fahrradverbindungen zu den Stevens Creek- und Bay-Trails, verbesserte Autospuren und neue Fahrradspuren durch die Verbreiterung der R.T. Jones Street.
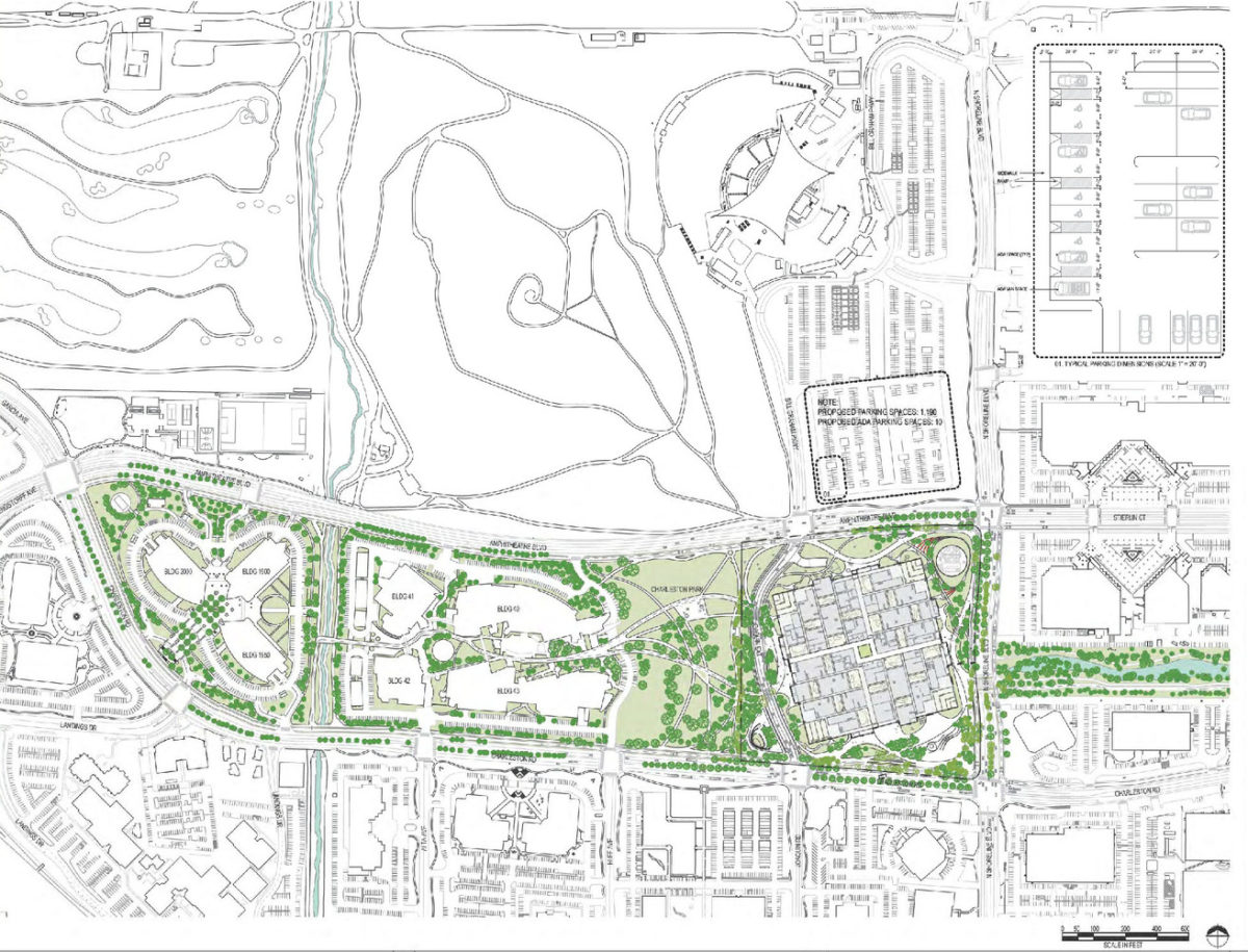
Bay View ist eines der zahlreichen Büroprojekte von Google in und um Mountain View. Der Campus Charleston East mit einer Fläche von 55 277 m2 ist noch nicht vollständig fertiggestellt und wird voraussichtlich im Jahr 2023 fertiggestellt sein.
Standort
Die Erweiterung des Charleston East Campus von Google befindet sich neben dem ursprünglichen Googleplex-Campus am 2000 North Shoreline Boulevard, BergblickSanta Clara County, Kalifornien, Vereinigte Staatenin der Nähe des Ames Research Center der NASA und neben dem Mountain View Boardwalk, westlich von San Jose und südlich von San Francisco.
Als Abkürzung gibt es im Inneren des Geländes eine zentrale öffentliche Allee, die Fußgängern eine direkte Verbindung vom Charleston Park zum North Shoreline Boulevard bietet.
Laut BIG bestand die Strategie für das Gebäude darin, „eine replizierbare und skalierbare Gebäudetypologie zu schaffen, die auch an andere nahe gelegene und potenzielle Expansionsstandorte von Google angepasst werden kann“.
Konzept
Der von Bjarke Ingels Architects und Heatherwick Studio entworfene Google-Campus in Mountain View ist eine Kombination aus zwei Projekten, Charleston East und Bay View, die als heterogene Räume konzipiert sind und das Potenzial haben, den sich entwickelnden Bedürfnissen des Unternehmens gerecht zu werden und zukünftige Arbeitsmodelle zu integrieren.
Ein großer Teil des Erfolgs von Google lässt sich auf die Entwicklung von Lösungen für komplexe Probleme zurückführen. Der architektonische Aufwand zur Anpassung an diesen Prozess ist nicht anders. Da Google weiterhin Neuland erkundet, nimmt sein Arbeitsbereich viele Formen an, von Büros über Labore bis hin zu Lagerhallen. Die Architekten haben in Zusammenarbeit mit den Designern von Google auf diese Variabilität reagiert, indem sie den Arbeitsbereich mit einer hangarähnlichen Überdachung umschlossen. Die Gestaltung des neuen Google-Hauptsitzes konzentrierte sich auf drei Hauptthemen, die bereits zu Beginn des Projekts festgelegt wurden: Innovation, Natur und Gemeinschaft.
„…Mit einem Schwerpunkt auf menschenzentriertem Design zur Optimierung der Technologie bietet Bay View Großraumbüros, die in einer einzigen offenen, erhöhten Bodenplatte zusammengefasst sind, wobei alle zugehörigen Nebenräume unter dieser Ebene versteckt und über eine Reihe von Höfen zugänglich sind, die Orte schaffen…“ BIG Architekten
Das Hauptgebäude sieht aus wie ein riesiges Metallzelt, das sich aus den Bäumen erhebt. Die 64 lächelnden Triforien werden durch Oberleitungsbögen freigelegt und durchfluten das große innere Atrium mit natürlichem Licht. Ungewöhnlich ist, dass das Gebäude mehr Dach als Fassade hat.
Diese Überdachung, die sich über das gesamte Gebäude erstreckt, ist das Ergebnis mehrjähriger Bemühungen um eine möglichst funktionale, energieeffiziente und wirtschaftliche Gebäudelösung.
Räume
Der neue Campus in unmittelbarer Nähe des Ames-Forschungszentrums der NASA besteht aus zwei großen Bürogebäuden mit einer Fläche von rund 55 000 m2, einem Veranstaltungszentrum für 1000 Personen und einem Unterkunftskomplex mit vier Gebäuden und 220 Zimmern für Kurzaufenthalte von Mitarbeitern.
Die in Leichtbauweise errichteten Gebäude bieten 7 ha Freifläche, die für Flexibilität und Zusammenarbeit ausgelegt sind. Die Innenräume der Gebäude zeichnen sich durch eine Kombination aus großen offenen Räumen mit 30 Höfen oder Atrien sowie kleinen Räumen aus, in denen Gruppen in einzelne Arbeitsbereiche aufgeteilt werden können.
Seine Geometrie ermöglicht allen Räumen Zugang zu diffusem Tageslicht und Ausblicken nach draußen.
Innenräume gelten als Räume für Zusammenarbeit und Konzentration und erfordern Flexibilität und einfache Nutzung. Um dieses Ziel zu erreichen, entwarfen die Architekten Gebäude mit nur zwei Ebenen, wobei die obere Ebene für Schreibtische und Teamräume und die untere Ebene für Besprechungs- und Servicebereiche vorgesehen ist. Die Variationen in den Schildern der zweiten Ebene definieren „Nachbarschaftsbereiche“, Räume, die sich die Teams je nach ihren Bedürfnissen aneignen müssen.
Blick auf die Bucht
GBV-Gebäude bieten eine Arbeitsplatzerfahrung, die das Gegenteil eines städtischen Wolkenkratzers ist, und das mit einer Grundfläche, die so groß ist wie der höchste Büroturm von San Francisco.
Mit einer Höhe von 33,83 m verteilt sich das Programm auf zwei Ebenen, die durch „Innenhöfe“ miteinander verbunden sind. Im Erdgeschoss befinden sich die öffentlichen Räume und Nebennutzungen, während in den oberen Stockwerken die Arbeitsbereiche und Freizeiteinrichtungen untergebracht sind.
Auf individueller Ebene stellt Google den Nutzer in den Mittelpunkt, d. h. einen glücklichen und konzentrierten Google-Mitarbeiter, der durch die Verwendung natürlicher Materialien, biophiler Elemente und einer beruhigenden Akustik für einen komfortablen und effizienten Arbeitsplatz sorgen kann.
Erste Ebene
Das Erdgeschoss beherbergt sekundäre Programme und öffentliche Räume, die als lebendige Bereiche für Zusammenarbeit und Geselligkeit dienen und die Bereiche voneinander trennen, aber gleichzeitig einen einfachen Zugang zu beiden ermöglichen. Hier befinden sich viele der Sitzungsräume, Cafeterias und Fitnessstudios.
Die Etagen sind durch Innenhöfe miteinander verbunden, die sorgfältig aufeinander abgestimmt sind, um wichtige Momente der Zirkulation, des Tageslichts und der Biophilie, der spontanen Interaktion und der Orientierung zu ermöglichen.
Zweite Ebene
Die zweite Ebene ist der inspirierendste Raum des Gebäudes, der für die Arbeitsbereiche reserviert ist, auf einer Bodenplatte, die durch Variationen miteinander verbunden ist, die den Teams einen hochflexiblen „Nachbarschaftsbereich“ bieten, den sie je nach Bedarf verändern können. Bewegliche Trennwände und Pflanzgefäße markieren die Räume, die von den einzelnen Teams zu bestimmten Zeiten genutzt werden, mit einer Kombination aus Gruppenarbeitsplätzen und ruhigen, geschlossenen Kabinen.
Über der großen Spannweite ermöglicht das von schlanken weißen orthogonalen Säulen getragene Vordach, den gesamten Arbeitsbereich auf der zweiten Ebene zu öffnen und unter einem Dach zu verbinden. In diesen Räumen stehen natürliches Licht und Ausblicke im Vordergrund, wobei die Blendung durch sorgfältig gestaltete Triforium-Fenster, die das Vordach unterstreichen, reduziert wird.
Höfe
Die Höfe bieten nicht nur Zugang zu Cafés, Teeküchen oder Konferenzräumen, sondern akzentuieren auch die große Freifläche und schaffen lokale und erkennbare Identitäten. Höfe haben einen zusätzlichen Vorteil für ihre Nutzer. Durch die Festlegung des Charakters der einzelnen Stockwerke schafft die Architektur eine Verbindung zwischen der physischen Bewegung der Mitarbeiter und der psychologischen Umstellung, die beim Wechsel von einer Arbeitsweise zur anderen erfolgen muss.
Natürliche Gebiete
Der Campus umfasst 7 ha hochwertiger Naturgebiete, darunter Feuchtwiesen, Wälder und Feuchtgebiete, die Teil einer Google-Initiative zur Wiederherstellung natürlicher Lebensräume in der kalifornischen Bay Area sind.
Das von Hargreaves Jones entworfene Landschaftsprogramm bietet eine Vielzahl von öffentlichen Einrichtungen, vor allem einen Ring von Freiflächen für Mitarbeiter und die Öffentlichkeit zum Entspannen, Essen, Joggen und Radfahren. Es wird einen zentralen Pavillon, Innenhöfe, Kioske, eine Überdachung aus Eichen und anderen Baumarten geben, um auf jeder Seite eine einzigartige Umgebung zu schaffen.
Struktur
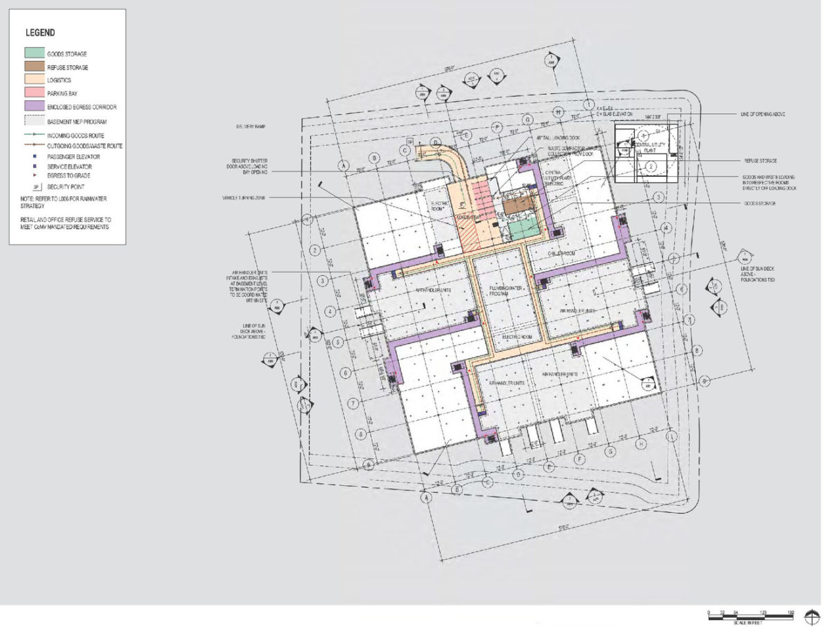
Das Dach der drei bisher errichteten Strukturen, das 15 m über dem Boden liegt und fast 34 m hoch ist, ähnlich einem Zelt, ist von den Platten und Wänden getrennt, so dass ein großer, hangarähnlicher offener Raum entsteht. Dieses flexible Gehäuse ist von den Wänden und Böden getrennt, so dass ein flexibler Innenraum entsteht, der sich den wechselnden Bedürfnissen und Besitztümern der Googler anpassen kann.
Ein Gittersystem aus Stahlrohren und einfache Triforium-Fenster zwischen den Vordächern und der undurchsichtigen Dachkonstruktion sorgen für eine optimale Schalldämmung, minimieren den Wärmegewinn, verringern die Gesamtenergielast und ermöglichen es Google, ein Maximum an photovoltaischer Solarenergie zu nutzen.
Obwohl die Flächen durch Säulen und tragende Wände gegliedert sind, ermöglicht die strukturelle Innovation der überdachten Decke einen offenen Arbeitsraum. Durch die Bodenplatte, die Außenfassade und die Triforiumfenster haben alle Personen den gleichen Zugang zum Außenbereich.
Materialien
Der Bay View Campus wird vollständig elektrisch betrieben und verfügt über ein umfangreiches geothermisches Batteriesystem. Dadurch werden die Kohlenstoffemissionen schätzungsweise um fast 50 % und der Wasserverbrauch für die Kühlung um 90 % reduziert. Darüber hinaus werden Regen- und Abwässer vor Ort gesammelt, behandelt und wiederverwendet, was die Wiederherstellung von Lebensräumen und den Schutz vor dem Anstieg des Meeresspiegels erleichtert.
Sonnenkollektoren
Alle drei Gebäude haben Dächer aus „Drachenschuppen-Sonnenhaut“. Rund 50.000 nach innen gewölbte, versilberte Solarpaneele erzeugen eine Gesamtleistung von fast sieben Megawatt.
Dank der Solarpaneele in Bay View und der nahe gelegenen Windparks wird das Gebäude zu 90 % mit kohlenstofffreier Energie betrieben. Ihre Solarhaut wird etwa 40 Prozent Ihres Energiebedarfs erzeugen.
„…Um seiner Verpflichtung nachzukommen, bis 2030 jede Stunde des Tages mit kohlenstofffreier Energie zu arbeiten, wird die erste Solaranlage im Drachenmaßstab zusammen mit den nahegelegenen Windparks Bay View 90 Prozent der Zeit mit kohlenstofffreier Energie versorgen…“, so Google.
Licht- und Temperaturkontrolle
Undurchsichtige Deckenkonstruktionen bieten Schallschutz, während Öffnungen den Arbeitsbereich in Innenräumen mit natürlichem Licht versorgen, ohne übermäßig zu blenden. Diese Ausrüstung minimiert auch den Wärmegewinn. Automatisierte Jalousien steuern das Licht während des Tages und öffnen und schließen sich bei Bedarf.
„Unser Entwurf des neuen Bay-View-Campus ist das Ergebnis eines unglaublich kooperativen Designprozesses. Die Zusammenarbeit mit einem so datengetriebenen Kunden wie Google hat zu einer Architektur geführt, bei der jede einzelne Entscheidung auf soliden Informationen und empirischen Analysen beruht. Das Ergebnis ist ein Campus, auf dem die auffälligen „Drachen“-Solardächer jedes Photon einfangen, das die Gebäude erreicht; Energiepfähle speichern und gewinnen Wärme und Kälte aus dem Boden. Auch die natürlich schönen Blumen sind Gärten, die im Wurzelbereich hart arbeiten und das Wasser aus den Gebäuden filtern und reinigen. Letztendlich ein Campus, auf dem Vorder- und Rückseite des Hauses, Technologie und Architektur sowie Form und Funktion zu einem neuen und überraschenden Hybrid verschmolzen sind…“ (Bjarke Ingels)
Wasserrecycling
Das geothermische Feld heizt und kühlt das Gebäude ohne den Einsatz von fossilen Brennstoffen. Berichten zufolge werden die Kohlendioxidemissionen des Standorts um die Hälfte reduziert und etwa 18.927.059 Liter Wasser pro Jahr eingespart. Der Campus recycelt auch das verbrauchte Wasser. Der gesamte Nichttrinkwasserbedarf wird durch dieses wiederverwendete Wasser gedeckt. Oberirdische Teiche, in denen Regenwasser gesammelt wird, und eine Gebäudekläranlage dienen als Wasserquellen für Kühltürme, Toilettenspülung und Landschaftsbewässerung. Dies ist Teil der Verpflichtung des Unternehmens, bis zum Jahr 2030 120 % seines Wasserverbrauchs wieder aufzufüllen.
Laut Google wird der Campus voraussichtlich die LEED-NC v4 Platin-Zertifizierung erreichen und gleichzeitig die größte Einrichtung werden, die die LBC Water Petal Certification des International Living Future Institute erhält, eine Zertifizierung, die die Wiederverwendung von Abwasser und Regenwasser anerkennt.
Video
Drawings
Photos
Fotos construcción
BIG
Otras fotos
-
- Inside Google’s new Bay View campus in Mountain View, California, US, on Monday, May 16, 2022. On Monday Google opened its newest campus near the San Francisco Bay shoreline a few miles east of its headquarters in Mountain View. Photographer: David Paul Morris/Bloomberg
-
- Workers in one of the many dining areas inside Google’s new Bay View campus in Mountain View, California, US, on Monday, May 16, 2022. On Monday Google opened its newest campus near the San Francisco Bay shoreline a few miles east of its headquarters in Mountain View. Photographer: David Paul Morris/Bloomberg
-
- A worker inside Google’s new Bay View campus in Mountain View, California, US, on Monday, May 16, 2022. On Monday Google opened its newest campus near the San Francisco Bay shoreline a few miles east of its headquarters in Mountain View. Photographer: David Paul Morris/Bloomberg
-
- Inside Google’s new Bay View campus in Mountain View, California, US, on Monday, May 16, 2022. On Monday Google opened its newest campus near the San Francisco Bay shoreline a few miles east of its headquarters in Mountain View. Photographer: David Paul Morris/Bloomberg



















































