Lake Point Tower
Einführung
Der 1968 fertig gestellte Lake Point Tower ist eine historische Ikone in der Skyline von Chicago und hat seit seiner Eröffnung viele Berühmtheiten beherbergt.
Bei seiner Fertigstellung im Jahr 1968 wurde das von den Architekten John Heinrich und George Schipporeit, ehemalige Schüler von Mies am Illinois Institute of Technology und war mit 196,60 m das höchste Wohngebäude der Welt und diente seitdem als Inspiration für den Bau von Gebäuden auf der ganzen Welt, darunter das Burj Khalifa unter Dubai Die hohe, geschwungene Y-Form mit den drei Flügeln war eine Inspiration für den Architekten Adrian Smith geboren in Chicago.
Seit seiner Fertigstellung hat der Lake Point Tower viele illustre Auszeichnungen erhalten, darunter den Chicago Building Congress Merit Award (1968), den Chicago Chapter AIA Distinguished Building Award (1969), den Chicago Chapter AIA Distinguished Merit Award (1970), den American Institute of Architects National Honor Award (1970), den Chicago Chapter AIA 25 Year Award (1994), den American Institute of Architects 150 Favorite Buildings in the United States (73.), den Mayor Daley’s Landscape Award Recipient (2009) und den SOAR Beautification Award Recipient (2019).
Geschichte
Diese Möglichkeit wurde Mitte der 1950er Jahre ins Auge gefasst, als der Chicago Dock & Canal Company Trust beschloss, sein 18 Hektar großes Industriegelände am nördlichen Rand des Hauptarms des Chicago River am Michigansee zu rekapitalisieren. Der Trust wurde von William Ogden ins Leben gerufen, einem frühen Pionier der Stadt und einer treibenden Kraft hinter ihrer Entwicklung, der ein Vermögen mit Investitionen in die junge Metropole machte. In den 1850er Jahren erwarb Odgen einen in den See hineinragenden Sandstreifen an der Mündung des Flusses, füllte die umliegende Wasserfläche mit Müll und Erde auf und schuf seinen eigenen Privathafen. In den dazwischen liegenden Jahren expandierte die Canal Company und errichtete eine Reihe miteinander verbundener Lagerhäuser, die von einer Hauptstrecke der Chicago & Northwestern Railroad bedient wurden, deren Gründer und Mehrheitseigentümer Ogden war. In den späten 1950er Jahren, als sich das Gebiet östlich der Michigan Avenue von einem Industriegebiet zu einem exklusiven Geschäfts- und Wohnviertel entwickelte, sahen die Eigentümer der Lagerhäuser eine Chance und ergriffen sie. Die Zeiten hatten sich geändert, und es ließ sich mehr Geld verdienen, wenn man nicht mehr Raum für die Unterbringung von Waren besaß, sondern Raum für die Unterbringung von Menschen.
Es wurden Entwickler gesucht, die bereit waren, das Projekt zu finanzieren, was nicht einfach war, da der Trust das Land nicht verkaufen, sondern langfristig, d. h. für 99 Jahre oder länger, pachten wollte. Schließlich erkannten die Bauunternehmer William Hartnett und Charles Shaw die Gelegenheit, schlossen einen Vertrag über die Fläche des Geländes ab und beauftragten zwei junge Architekten mit der Ausarbeitung eines Plans. Es war das erste Projekt der Architekten John Heinrich und George Schipporeit.
Standort
Der Wohnturm befindet sich auf einer Landzunge am Ufer des Michigansees am 505 North Lake Shore Drive in einem der besten Viertel Chicagos, Streeterville , dem Tor zum berühmten Navy Pier der Stadt mit seinen hervorragenden Restaurants und Einkaufsmöglichkeiten. Das Hochhaus wird von der Grand Avenue, der Illinois Street sowie der Lake Shore und der Streeter Avenue begrenzt.
Es ist der einzige Wolkenkratzer östlich von Chicagos legendärem Lake Shore Drive, und seine Lage zwischen Lake Shore Drive und Navy Pier ermöglicht einen ungehinderten Blick in alle Richtungen, vor allem seit fünf Jahren nach seiner Eröffnung im Jahr 1968, Chicago erließ die Verordnung zum Schutz des Seeufers, die es untersagte, die Uferlinie der Stadt durch gewerbliche Bauten zu verschandeln.
Konzept
Die Architekten, die unter dem Firmennamen Schipporeit&Heinrich an diesem Projekt arbeiteten, waren Schüler von Mies van der Rohe, einem der bekanntesten Architekten der Bauhaus-Bewegung und der International Style School, der am Illinois Institute of Technology in Chicago lehrte. Schipporeit hatte auch im Büro von Mies in der Stadt gearbeitet.
Der Einfluss des großen Meisters lässt sich an der Ästhetik der Glasvorhänge an der Fassade ablesen. Der Entwurf, der das Gebäude prägt, wurde durch zwei nicht realisierte Entwürfe von Mies van der Rohe inspiriert: ein Bürogebäude in der Friedrichstraße in Berlin (1919) und ein 30-stöckiger gläserner Wolkenkratzer für einen imaginären Ort (1920-1922). Die Entwürfe für die Türme wurden nach einem ähnlichen Schema konzipiert: gestapelte und ebene Stockwerke, ein freier Grundriss und eine Glashaut.
Räume
Der Turm bietet eine „Stadt in der Stadt“. Im 70. Stockwerk befindet sich ein rundes Penthouse, in dem die Cité untergebracht ist, ein Weltklasse-Restaurant mit atemberaubendem 360-Grad-Blick, ein Park unter freiem Himmel, eine Bibliothek, Schwimmbäder, ein Fitnessstudio, ein Tagungsraum und andere Einrichtungen sowie eine Reihe von Geschäften und anderen Restaurants auf den ersten beiden Ebenen des Komplexes unterhalb des Parks.
Das Projekt Lake Point Tower beinhaltet einige innovative Merkmale für Wohnhochhäuser. Er war nicht nur das erste vollelektrische Auto, sondern auch ein Pionier des Konzepts „Grün in der Stadt“ mit seinem spektakulären Privatpark drei Stockwerke über dem Boden.
Parken in der Stadt
Der historische Skyline Park des Lake Point Tower befindet sich im dritten Stock des Turms und ist eine Oase in der Stadt, ein privates 10.117 m² großes Paradies, das vom renommierten Landschaftsarchitekten Alfred Caldwell entworfen wurde. Das Design, ein echtes modernistisches Spiel mit Masse und Raum, stellt Solidität gegen Leere, Undurchsichtigkeit gegen Transparenz, Form und Substanz sind vorhanden, aber mit einem ätherischen und eleganten Effekt, der durch eine Kombination von Fensterkorridoren, Trauerweiden, reflektierendem Wasser, niedrigen Wänden und der angenehmen Überraschung eines Durchbruchs durch ein riesiges Loch in der Terrasse zum darunter liegenden Stockwerk erreicht wird.
Es verfügt über einen farbenfrohen Garten mit Blumen, Sträuchern und saisonalen Pflanzen, eine Wiese mit gepflegtem Rasen, einen ruhigen Teich und einen von 80 Bäumen umgebenen Wanderweg, einen Naturstein-Wasserfall, einen Grillplatz und einen Spielplatz. Dieser Park ist eine der besten, wenn auch weniger bekannten Freiflächen der Stadt.
Wohneinheiten
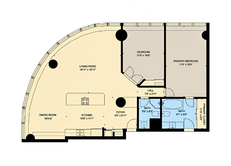
Vom zentralen Kern, in dem die 9 Aufzüge und 3 Treppenhäuser untergebracht sind, führen 3 Flure zu den einzelnen Flügeln des Gebäudes, die zu den Wohnungen führen.
Die charakteristische dreiblättrige Bodenplatte des Gebäudes bietet ein Optimum an Seeblick, während sie gleichzeitig einen offenen und flexiblen Raum für flache Grundrisse sowie einen geringeren Widerstand gegen Windlasten bietet.
Im Inneren der Wohnungen wird die Glasfassade durch Längskästen unterbrochen, die sich über die gesamte Etage erstrecken und die verschiedenen Heizungs-, Klima- und Lüftungskanäle des Gebäudes sowie andere Installationen verbergen, die auch dazu dienen, den Bewohnern der Wohnungen die Angst vor Schwindel zu nehmen. Die Krümmung dieser innovativen Fassade ist so berechnet, dass die Nutzer des Gebäudes die restlichen Fenster der Nachbarwohnungen nicht sehen können.
Im Jahr 1998 wurden die 879 Wohneinheiten in Eigentumswohnungen umgewandelt. Bis zu diesem Zeitpunkt waren die Wohnungen vermietet. Obwohl seither zahlreiche Kombinationen der Wohneinheiten vorgenommen wurden, sind die äußeren Merkmale des Gebäudes sowie der zentrale Kern, in dem sich die Aufzüge befinden, praktisch unverändert geblieben.
Struktur
Aufgrund seiner Höhe und seiner Lage am See musste der asymmetrische Turm so konstruiert sein, dass er starken Winden standhält. In der Mitte des Gebäudes befindet sich ein 18 m breiter dreieckiger Kern mit neun Aufzügen und drei Treppenhäusern. Dieser Kern trägt das gesamte vertikale Gewicht des Gebäudes, so dass die Säulen an der Fassade viel kleiner ausfallen können. Vom Kern gehen drei Arme aus, die einen asymmetrischen Y-förmigen Grundriss bilden. Ursprünglich als vierarmiger Grundriss geplant, wurde er in den endgültigen dreiarmigen Grundriss geändert. Die gläserne Vorhangfassade hängt von den flachen Betonplatten ab, die mit dem zentralen Kern verbunden sind. Das Design mit geschwungenen Außenwänden bietet den Bewohnern mehr Privatsphäre.
Bauwesen
Um das Gebäude rentabel zu machen, mussten die jungen Architekten 900 Atelier-, Ein-, Zwei- und Drei-Zimmer-Wohnungen in dem Turm unterbringen sowie 700 Parkplätze für Autos. Um die schwammige Beschaffenheit der künstlichen Oberfläche zu überwinden, wurde der „Boden“, der einst aus Seewasser bestand, aus Schichten von Deponiematerial zusammengesetzt. Die vierstöckige Garage wurde vom Straßenniveau aus aufgestockt, um eine Plattform für das Gebäude zu schaffen, von der aus das Gebäude auf stabilen Pfählen angehoben wurde. Um das Bauwerk in der Luft zu halten, bauten die Architekten einen langen, baumstammähnlichen Betonschacht, der weit unter dem Straßenniveau auf dem Felsen aufliegt. Die Geschossplatten sollten strahlenförmig vom zentralen Kern ausgehen, und in Anlehnung an einen frühen Entwurf von Mies van der Rohe aus dem Jahr 1922 wurde ein Y-förmiger Grundriss entworfen, der auf dem vierstöckigen Sockel sitzt.
Materialien
Die wichtigsten verwendeten Baumaterialien waren Stahl, Stahlbeton und Glas.
Die Fassade des Gebäudes besteht aus einem Vorhang aus bronzefarbenem Glas, der von bronzefarben eloxiertem Aluminium umrahmt wird und bei der Reflexion des Sonnenlichts vom Michigansee golden wirkt.
Die Bodenplatten der verschiedenen Stockwerke wurden aus Stahlträgern und Stahlbeton hergestellt.
Der vierstöckige Sockel des Turms, in dem sich das Parkhaus befindet, ist außen mit grün glasierten Ziegeln verkleidet.
Für den Wasserfall wurde Naturstein aus der Region verwendet.
Video
Dieses Video wird von dem Architekten George Schipporeit selbst gesprochen. Das Video ist dunkel, körnig und verzerrt, aber es erzählt eine faszinierende Geschichte über die Herausforderungen und die Bauweise des Gebäudes.














































