Robie Haus
Einführung
Das letzte und schönste von Wrights Präriehäusern, das Robie House, scheint eher für eine Ebene als für das schmale Eckgrundstück konzipiert zu sein, auf dem es in Hyde Park, einem Vorort von Chicago, steht.
Zum Zeitpunkt seiner Errichtung muss seine übertrieben horizontale Form inmitten seiner konventionellen, aufrechten Nachbarn wie eine seltsame Erscheinung gewirkt haben.
Einer der Gründe für den enormen Erfolg dieses Hauses liegt in den ausdrücklichen Forderungen des Kunden.
Er wollte ein brandgeschütztes Haus ohne geschlossene Räume in Form von „Blöcken“ und ohne die üblichen dekorativen Elemente wie Vorhänge oder gekaufte Teppiche usw. Als Ingenieur wollte Frederick C. Robie auch ein Haus, das wie eine gute Maschine funktioniert. Die Lage in einem Winkel des Grundstücks erklärt weitgehend seine Form, die der andererPräriehäusersehr ähnlich ist.
Situation
Das Robie-Haus, auch bekannt als „The Robie house“, befindet sich an einer Ecke im Stadtteil Hyde Park, in der Nähe der Universität von Chicago. Genauer gesagt in 5757 Woodlawn Avenue, Chicago, Illinois, Vereinigte Staaten.
Beschreibung
Exterieur
Es hat keine Fassade, keine „normalen“ Außenwände oder Fenster und keinen Haupteingang. Sie nimmt praktisch das gesamte Grundstück ein, und der wenige Raum, der frei bleibt, wird durch Mauern und gemauerte Pflanzgefäße in die geschichtete Gesamtkomposition einbezogen. Die Horizontalität wird durch die Fensterbänke, Fensterstürze und Steinkappen sowie durch das dünne Mauerwerk mit zurückgesetzten Mörtelfugen verstärkt.
Kompositorische Methode
Wrights kompositorische Methode bestand damals darin, symmetrische Formen asymmetrisch zu gruppieren.
Die Grundlage der Komposition bildet ein langgestreckter, scheinbar symmetrischer, zweistöckiger Block mit niedrigem Pultdach und sehr kühnen Überhängen an beiden Enden. Im ersten Stock der Südfassade, die der Straße zugewandt ist, gibt es eine durchgehende Reihe von einflügeligen Balkonen, die sich zu einem auskragenden Balkon öffnen, der wie das Deck eines Schiffes aussieht. Der Balkon wirft einen tiefen Schatten auf eine ähnliche Reihe von Fenstern im Erdgeschoss.
Die Symmetrie ist eine Illusion, denn die erhöhte Terrasse am westlichen Ende des Hauses, die auf einem Halbsockel steht, wird durch die offene Hofmauer am östlichen Ende ausgeglichen. Er ist jedoch nur ein Faktor in einer komplexeren Gleichung.
Über dem Hauptgebäude befindet sich ein erstes Stockwerk mit Schlafzimmern, ebenfalls mit Fenstern, Balkonen und einem schrägen Dach, das die exzentrische Querachse bildet, die die gesamte Komposition in Bewegung setzt. Auf der einen Seite erhebt sich ein großer Schornstein, der alle horizontalen Ebenen unter ihm verankert. Dahinter, am östlichen Ende des Gebäudes, deckt ein weiteres Schrägdach den Flügel ab, in dem sich eine Garage für drei Autos und das Servicepersonal befinden.
Konzept
Das Haus wurde für Frederick C. Robie, einen Fahrradhersteller, entworfen, der nicht wollte, dass sein Haus im viktorianischen Stil gebaut wird. Sein Programm war modern: Es brauchte eine Garage und ein Spielzimmer für die Kinder. Er verlangte auch, dass das Haus feuerfest sein sollte und dass die Zimmer keine „Kisten“ sein sollten und keine zusätzliche Dekoration enthalten sollten.
Räume
Wright lehnte das bis dahin geltende Kriterium der geschlossenen und isolierten Innenräume ab. Im Gegensatz dazu entwarf er Räume, in denen jeder Raum oder Saal zu den anderen offen war, wodurch eine große visuelle Transparenz, eine Fülle von Licht und ein Gefühl von Weite erreicht wurde. Um einen Bereich von einem anderen zu unterscheiden, griff er auf Unterteilungen aus leichtem Material oder unterschiedlich hohe Decken zurück, wobei er unnötige massive Einfriedungen vermied. Damit hat Wright zum ersten Mal den Unterschied zwischen „definierten Räumen“ und „umschlossenen Räumen“ festgelegt.
Wrights Hauptverdienst bei der Gestaltung dieses Hauses besteht darin, dass er mit der Vorstellung eines Hauses als Kasten mit Räumen, die andere isolierte Kästen sind, gebrochen hat. Im Gegenteil, der Innenraum ist fließend und transparent, so dass Licht eindringen kann, ohne die Sicht zu behindern. Diese „Explosion des Kastens“ ermöglicht ein sanftes Zurückweichen der Massen, die sich über die Länge und Breite des Geländes entfalten.
Die Grundrisskomposition basiert auf zwei nebeneinander liegenden Riegeln, die sich zu einem zentralen Volumen zusammenfügen, das vom Volumen des Schornsteins überragt wird, um den herum die Räume angeordnet und miteinander verbunden sind.
Die Volumetrie nutzt die großen Terrassen und Traufen, um eine massive und kraftvolle, aber gleichzeitig hohle und leichte Morphologie zu erreichen. Diese großen Traufen und Terrassen wurden von Wright für das Cascade House verwendet.
Das Haus ist in zwei Flügel gegliedert, wobei der öffentliche Bereich zur Straße hin liegt und der Servicebereich im innersten Teil.
Erdgeschoss
Spielzimmer und Billardzimmer bilden den öffentlichsten Bereich dieser Etage, der durch einen Kamin getrennt ist. In beiden Räumen entschied sich Wright dafür, das strukturelle Balkensystem in der Decke freizulegen, um den Räumen ein größeres Gefühl von Höhe zu verleihen.
Auf dieser Etage befinden sich auch die Heizungsanlage, die Waschküche, die Speisekammer und die Garage für 3 Autos. Der Zugang zum Haus befindet sich auf dieser Ebene an der Seite und führt über eine Treppe in das Hauptgeschoss.
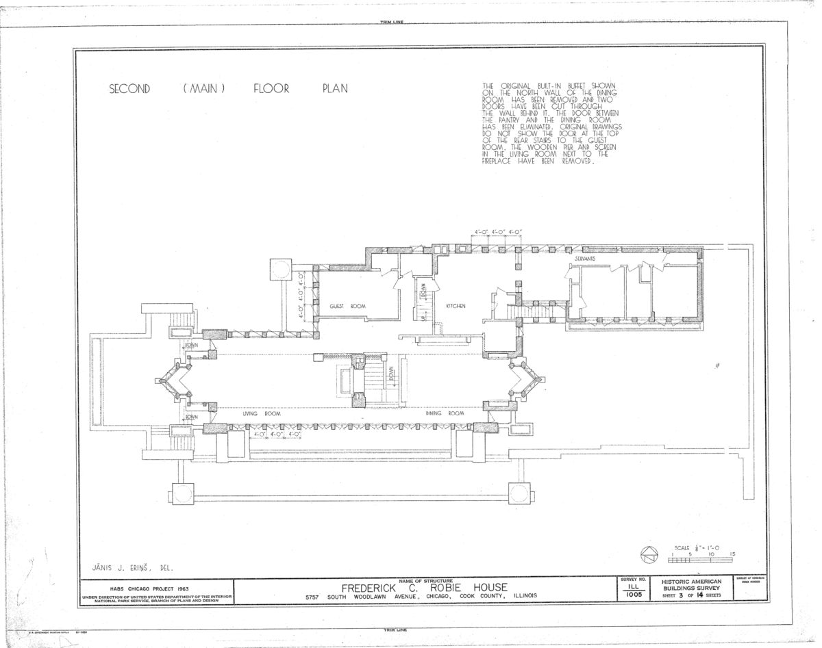
Zweite Ebene
Im ersten Stock befinden sich die Küche und die Räume für die Bediensteten. Die interessantesten Räume des Hauses sind jedoch zweifellos das Wohnzimmer und das Esszimmer, zwei Räume, die durch den Kamin getrennt, aber optisch miteinander verbunden sind. Diese Räume verfügen über eine große räumliche Weite, ohne dass Wände den Blick nach außen versperren, was an die Großzügigkeit der Wiese erinnert und gleichzeitig viel Licht in den Innenraum lässt. Dank des Dachvorsprungs sind sie jedoch so konzipiert, dass die Privatsphäre der Bewohner im Inneren geschützt ist.
Auf dieser Ebene geht es die zentrale Treppe hinauf, die zu einem der berühmtesten Innenräume des 20. Jahrhunderts führt: ein großer, langer, niedriger Raum, wie der Salon eines Schiffes, hell erleuchtet von den nach Süden gerichteten Balkonfenstern.
Der Raum ist in zwei Bereiche unterteilt, das Esszimmer und das Wohnzimmer, das für Wright das Familienleben und die Verwurzelung mit dem Land symbolisiert.
Der Schornstein, der eine massive Präsenz im Raum hat, ist kein Hindernis, da es möglich ist, ihn zu umrunden und die Kontinuität der Decke durch eine rechteckige Öffnung am oberen Ende des Schornsteins wahrzunehmen. Die Decke ist wiederum in Paneele unterteilt, die jeweils mit zwei Arten von elektrischer Beleuchtung ausgestattet sind: Glaskugeln auf beiden Seiten des zentralen, höher gelegenen Bereichs und hinter hölzernen Spalieren versteckte Glühbirnen in den unteren, seitlichen Bereichen.
An beiden Enden dieses großen Raums befinden sich dreieckige Tribünen, die intimere Sitz- und Essbereiche bilden. Diese Tribünen sind von außen kaum zu sehen, da die weit überhängenden Dachrinnen viel Schatten werfen. Diese Decks konnten nicht aus Holz gebaut werden, sondern werden von zwei versteckten Stahlträgern getragen, die sich über die gesamte Länge des Hauptblocks erstrecken.
Dritte Ebene
Die Zimmer befinden sich auf dieser Ebene und dominieren das Haus wie eine Art Aussichtsturm.
Materialien
Das Haus ist in römische Ziegel und Kalkstein gehüllt.
Um diese enorme Traufe zu erreichen, leistete Wright Pionierarbeit bei der Verwendung von Stahl in der Struktur des Hauses, mit zwei großen Trägern, die in Längsrichtung des Hauses verlaufen und am Schornstein verankert sind. Wright entschied sich dafür, die seitlichen Bereiche der Balken zu verdecken und in der Mitte einen höheren Bereich zu belassen, was in beiden Räumen eine räumliche Wirkung erzeugt.
Die Verwendung von Holzleisten, die senkrecht zur Raumrichtung verlaufen, und rhythmisch angeordnete Glühbirnen verringern das Gefühl der Länge des länglichen Raumes. Beide Räume enden in einem abgewinkelten Bug, der die Idee, dass sich der Raum nach außen erstreckt, noch verstärkt.
Möbel
Das gesamte Mobiliar wurde von Wright entworfen, besonders berühmt waren der Esstisch und die Stühle.
Der Tisch ruht an den vier Ecken auf vier Säulen mit farbigen Glaslampen und Behältern für Blumenkompositionen. Bei diesem Entwurf stand eine klare Idee im Vordergrund: Die Blumenkompositionen und Kandelaber, die normalerweise in der Mitte des Tisches platziert werden, bilden eine visuelle Barriere zwischen den Gastgebern und den Gästen. Hier hingegen werden die Dekoration und die Beleuchtung in den Ecken platziert, so dass die Mitte des Tisches völlig frei bleibt.

























































