Rookery-Gebäude
Einführung
The Rookery ist ein zwölfstöckiger (ursprünglich 11) spekulativer Wolkenkratzer in Chicago, der 1885 von Burnham & Root entworfen wurde. The Rookery gilt als eines der historisch bedeutendsten Gebäude Chicagos und ist ein Wahrzeichen im Herzen des Finanzviertels der Stadt.
Die Architekten Daniel Burnham und John Root schufen ein architektonisches Meisterwerk, das zu den am besten erhaltenen Beispielen für frühe kommerzielle Wolkenkratzer gehört. Die majestätische Fassade ist in ihren architektonischen Details unübertroffen und wird durch ein reichhaltiges und einladendes Ambiente im Inneren des Gebäudes ergänzt, das durch atemberaubende architektonische Merkmale wie die faszinierende Belvedere-Treppe und den beeindruckenden Lichthof hervorgehoben wird.
Der Architekt Frank Lloyd Wright gestaltete 1905 das beeindruckende zweistöckige Foyer, das durch ein auffälliges Oberlicht von oben beleuchtet wird, neu. Das sorgfältig renovierte und gepflegte The Rookery ist eine der bekanntesten Adressen in ganz Chicago.
Am 5. Juli 1972 wurde es als Wahrzeichen von Chicago eingetragen, nachdem es am 17. April 1970 in das National Register of Historic Places aufgenommen worden war. Die Rookery, die allgemein als architektonisches Meisterwerk gilt, wurde am 15. Mai 1975 als National Historic Landmark eingetragen.
Standort
Das Gebäude befindet sich im Herzen des Finanzdistrikts, Chicago Loop, 209 South LaSalle Street, an der südöstlichen Ecke der Adam St., Chicago Loop, Chicago, Illinois 60604, Vereinigte Staaten, die Rookery liegt zwei Blocks nördlich des ersten Board of Trade-Gebäudes der Stadt, das zum Zeitpunkt des Baus der Rookery das höchste Gebäude Chicagos war und von W.W. Boyington entworfen wurde. Boyington.
Die Rookery wurde als prestigeträchtiges Geschäftsgebäude gebaut. Mit ihrer unvergleichlichen Geschichte hat die Stadt über Generationen hinweg bewiesen, dass sie ein Ort des kühnen Fortschritts und großen Erfolgs ist.
An dieser Stelle befand sich früher vorübergehend das Feuerwehr-Rathaus, das um einen städtischen Wasserturm herum errichtet wurde, in dem Tauben und Krähen nisteten und der den Spitznamen „The Rookery“ erhielt. Root sorgte in aller Stille dafür, dass die Vergangenheit des Ortes nicht in Vergessenheit geriet, indem er an der Spitze jedes Bogens der beiden Eingänge des Gebäudes einen Turm einschnitzen ließ.
Konzept
Das Grundstück, auf dem das Gebäude steht, ist auf allen vier Seiten von Straßen oder Gassen umgeben, so dass die umliegenden Büros viel natürliches Licht erhalten. Es ist so groß, dass Burnham, anstatt es mit dem traditionellen Plan mit einem einzigen Korridor zu umhüllen, berechnet hatte, dass auch ein innerer Ring von Büros einbezogen werden könnte, wodurch sich die vermietbare Fläche fast verdoppelte, was die Rentabilität des Gebäudes erhöhte. Um diesen Büros Zugang zu natürlicher Belüftung und Tageslicht zu verschaffen, musste das gläserne Oberlicht, das sich normalerweise im obersten Stockwerk eines Gebäudes mit einem einzigen Korridor befindet, in das unterste Bürogeschoss verlegt werden. Im Fall von Rookery führte dies dazu, dass die Höhe des Atriums in der Mitte der Grundfläche des Gebäudes von zwölf auf nur zwei Stockwerke reduziert wurde. Root nutzte die niedrigere Position des gläsernen Oberlichts, um den Besuchern die Möglichkeit zu geben, eine Treppe hinaufzusteigen, die das Glas tatsächlich durchdrang und den Lichthof über dem Oberlicht erschloss.
Chronologie
- Das 1888 fertiggestellte Gebäude ist 11 Stockwerke hoch und damit eines der höchsten Geschäftsgebäude der Welt zu dieser Zeit. Burnham & Root ziehen mit ihren Büros in das Gebäude ein. Die ehemaligen Büroräume sind heute als The Burnham Library bekannt.
- Im Jahr 1905 Frank Lloyd Wright dem Innenhof ein moderneres Aussehen, indem er die Eisensäulen mit weißem Marmor mit goldenen Akzenten verkleidete und bronzene Kronleuchter mit prismatischem Glas anbrachte.
- 1931 verlieh der Architekt William Drummond dem Gebäude einen Hauch von Art Déco, indem er die zweistöckige Eingangshalle durch separate Stockwerke unterteilte und Wrights offene, geometrische Aufzugskästen durch massive Bronzetüren mit eingravierten Vogeldarstellungen ersetzte.
- Im Jahr 1992 wurde die umfassende Restaurierung des Gebäudes abgeschlossen, die mit zahlreichen Preisen ausgezeichnet wurde. Das Gebäude wird um ein Stockwerk aufgestockt, wodurch es 12 Stockwerke hoch wird, und die Burnham-Bibliothek wird restauriert.
- Im Jahr 2015 wurden die Bäder und Gemeinschaftsräume auf 5-Sterne-Niveau gebracht und ein Raum für Radfahrer und Läufer mit Duschen und Schließfächern eingerichtet.
- Die Modernisierung der Aufzüge wurde im Jahr 2017 abgeschlossen.
Räume

Das Äußere ist ein Experiment zur Verwendung historischer dekorativer Elemente für ein modernes Bürogebäude aus dem späten 19. Als Handwerksmeister griff Root bei der Gestaltung der Innen- und Außenräume auf eine Vielzahl von Einflüssen zurück. Die Fassade enthält dekorative Elemente, die an die spätrömische, venezianische, maurische und mittelalterlich-europäische Architektur erinnern.
Horizontale Bänder entlang der Fassaden der Adams und LaSalle Street lenken den Blick von einer Seite zur anderen, um die Höhe des Gebäudes zu minimieren.
Zugang zum Gebäude
Nach dem Durchschreiten der dunkelbraunen Backsteinfassade durch den steinernen Triumphbogen gelangte man in ein zweistöckiges Foyer, das mit weißem Stein und Onyx verkleidet war und über vergoldete Leisten verfügte (1905 von Frank Lloyd Wright umgestaltet).
Die beiden Haupteingänge zur Rookery, die über die LaSalle Street und die Adam Street führen, sind beeindruckende Pforten. Von außen vermitteln die schweren Steinbögen ein Gefühl von perfekter Stärke und Stabilität für das Finanzviertel. Im Inneren sind die zweigeschossigen, offenen Foyers mit weißem Carrara-Marmor an Wänden und Decken ausgestattet. In der Lobby der LaSalle Street führt eine Marmorbalustrade die Besucher auf den Balkon, wo arabische Motive entlang des Bogens tanzen. In der Lobby in der Adams Street war die Balustrade ursprünglich aus Gusseisen und hatte ein ähnliches Aussehen wie die des Lichthofs.
Foyer
Geschützt durch ein Glasdach zieht der öffentliche Raum des zweistöckigen Foyers weiterhin die Aufmerksamkeit der Besucher auf sich. Die Säulen umgeben den Raum mit Leisten aus weißem Marmor mit vergoldeten geometrischen Motiven.
Über dem Glasdach erhebt sich ein zentrales Atrium, das von Büros umgeben ist. Die weiß glasierten Ziegelwände des Atriums reflektieren das Licht in die Innenräume. Gleichzeitig trägt die offene Mitte zur Luftzirkulation bei, indem sie kühle Luft in das Gebäude zieht, während warme Luft nach oben steigt und oben wieder austritt. Eine Erkertreppe führt vom 12. Stockwerk zum ersten Stockwerk an der Westseite des Gebäudes und verbindet das zentrale Atrium mit dem Lichthof im Zwischengeschoss.
Glasdachfenster

Die Transparenz des Oberlichts ermöglichte es nicht nur, dass das Tageslicht den weißen Marmor des zweistöckigen Atriums in Helligkeit tauchte, was einen dramatischen Kontrast zu dem Schatten bildete, den das elfstöckige Gebäude in der Rue de La Salle warf, wenn man das Gebäude am Morgen betreten wollte, sondern erlaubte es auch, nicht nur den Himmel über sich zu sehen, sondern, was aus architekturgeschichtlicher Sicht noch wichtiger ist, eine prophetische Vision der Zukunft: die Außenansicht, die das Hauptmerkmal des Gebäudes sein würde. Root hatte für die Innenebene der Büros zum Lichthof hin entworfen.
Für den Zugang zum Zwischengeschoss platzierte Root eine große Treppe an einem Ende des Atriums. Diese Anordnung wiederholte sich im Zwischengeschoss, so dass der Besucher gezwungen war, an den Schaufenstern in diesem Stockwerk vorbeizugehen, was die höheren Mietpreise rechtfertigte.
Besichtigungstreppe

Der Architekt John Root entwarf eine Eisentreppe, die sich vom 12. bis zum 2. Stockwerk vom Lichthof aus nach Westen windet und in einem runden Treppenhaus in den Lichtschacht hineinragt und von Fenstern unterbrochen wird. Die verschlungenen, sich wiederholenden Muster und die spiralförmige Natur der Schritte sind sowohl überwältigend als auch beeindruckend. Die Treppen, die sich auf beiden Seiten öffnen, wenn man das Zwischengeschoss des Atriums erreicht, führen über eine weitere breite Marmortreppe, die im Erdgeschoss beginnt, nach oben zu einem Balkon, der zum Aufstieg einlädt. Die Treppe und ihr Podest, die über die Lobby hinausragen, verleihen dem Gebäude einen Hauch von Kühnheit.
Flankiert wurde die Treppe von Gängen, die in den Keller führten, wo sich die Tresorräume des Eigentümers des Gebäudes, der Central Security Depository Company, befanden.
Natürliches Licht
In den 1880er Jahren verursachten Kohlenrauch und Luftverschmutzung einen Dunstschleier über dem Himmel von Chicago, der es schwierig machte, natürliches Licht zum Lesen oder Arbeiten zu bekommen.
Die Beleuchtungskörper der Rookery waren ursprünglich sowohl für den Betrieb mit Gas als auch mit Elektrizität ausgerüstet, zu einer Zeit, als die Elektrizität gerade begann, mit dem Gas zu konkurrieren, und daher teuer und unzuverlässig war und kein ausreichend effizientes Licht erzeugte.
Diese Situation stellte Burnham&Root vor die Herausforderung, ausreichend natürliches Licht und Belüftung für das neue Gebäude zu erhalten. Um dies zu erreichen, arbeiteten die Architekten hauptsächlich mit zwei Mitteln: den Fassaden und dem Innenhof.
- Fassaden: Sie wurden sorgfältig gestaltet. An der Basis ermöglichten runde Granitsäulen große Glasflächen, und die unteren Stockwerke waren fast durchgehend mit Glaswänden versehen. Dank dieser Elemente konnte das Licht auch dort eingefangen werden, wo die umliegenden Gebäude ihre Schatten werfen.
- Innenhof: Eines der wertvollsten architektonischen Details der Rookery ist der Innenhof, der die Licht- und Luftmenge im quadratischen Grundriss des Gebäudes maximiert. Dieser zentrale Schacht versorgte die Büros mit Licht, und der darunter liegende Hof sorgte dafür, dass die unteren Innenebenen gut beleuchtet waren.
Hof der Lichter

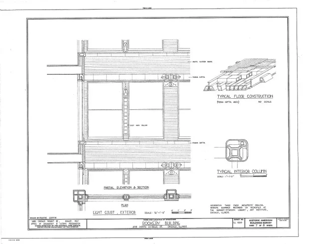
Am Fuße des zentralen Lichtschachts befindet sich eines der beeindruckendsten Merkmale von The Rookery: der Lichthof.
Im Gegensatz zu den schweren Fassaden, die in der Lage sind, das Gewicht des Mauerwerks zu tragen, ist der helle Innenhof ein krasser Gegensatz, ein schmiede- und gusseiserner Rahmen, der mit Glas bedeckt ist und den Eindruck erweckt, luftig zu sein, wie ein Vogelkäfig. Das Zwischengeschoss bestand aus Glasblöcken, die das Licht in die untere Etage durchließen.
Im Jahr 1992 wurde auf dem Dach ein Oberlicht installiert, um das Dach des Lichtschachts und den Lichtschacht zu schützen.
Umgestaltung durch Frank L. Wright

Zu Beginn des 20. Jahrhunderts wurde das Gebäude dreimal umfassend renoviert. In der ersten Phase, von 1905 bis 1907, wurde Frank Lloyd Wright mit der Neugestaltung der Innenräume beauftragt. Im Einklang mit dem zeitgenössischen Geschmack überlagerte Wrights Entwurf die aufwendigen kupferbeschichteten Schmiedeeisenverkleidungen von Root mit geschnitzten Oberflächen aus weißem Carrara-Marmor. Auf dem Höhepunkt seiner Berühmtheit steigerte Wright mit seinen Änderungen den Status des Gebäudes und machte die Rookery zu einem der begehrtesten Gebäude in ganz Chicago. Zu den weiteren Änderungen, die Wright vornahm, gehörten vereinfachte Beschläge an den Treppengeländern, ein stählerner Anstrich des Atriums, die Hinzufügung von Pflanzgefäßen, dekorative Urnen am Fuß der Treppe und neue Beleuchtungskörper.
Struktur
Neben den vielen Einflüssen, die die Innen- und Außengestaltung von Burnham&Root prägten, brachte das Projekt auch architektonische Innovationen mit sich, die viele innovative zeitgenössische Bautechniken zusammenführten.
Durch die Kombination moderner Bautechniken wie Metallkonstruktionen, Brandschutz, Aufzüge und Glasplatten mit traditionellen Techniken wie Backsteinfassaden und aufwendigen Ornamenten wollten Burnham&Root ein kühnes architektonisches Werk schaffen, das auch kommerziell erfolgreich sein sollte.
Fundamente
Die Rookery war in ihrer Anfangszeit ein technisches Wunderwerk, und die Genialität des Architekten John Wellborn Root zeigt sich in den Fundamenten und der Struktur. Root entwickelte eine Methode, um das vertikale Gewicht der tragenden Säulen in eine horizontale Ebene zu verlagern, die auf dem aufgeweichten Boden Chicagos„schwamm“. Konkret entwickelte er einen „Grillsockel“: kreuz und quer verlegte Eisenschienen, die mit Stahlbeton verkleidet waren und das immense Gewicht des Gebäudes auf einer soliden Plattform trugen. Diese von Root entworfene Art von Fundament wurde als „Gitterfundament“ bezeichnet.
Hybride Struktur
Zu dieser Zeit war der Wolkenkratzer in Stahlrahmenbauweise noch nicht ausgereift, daher entwarfen die Architekten eine hybride Struktur aus gemauerten Außenwänden und Innenstützen aus Stahl und Eisen.
Das Gebäude ist ein 12-stöckiger brauner Hohlziegelkasten. Da das Gebäude vor der allgemeinen Akzeptanz der Außenstruktur aus Eisen entworfen wurde, verwendete Root für die Außenstruktur der neun oberen Stockwerke Ziegelpfeiler und Eisenstürze (Terrakottaplatten und Stützziegel). Um jedoch die Schaufenster im Erdgeschoss zu vergrößern, ersetzte er die Backsteinsäulen im ersten und zweiten Stock durch zweistöckige Granitsäulen an den beiden Straßenfronten und durch Eisensäulen an den beiden Gassenfronten.
Erhöht

Bei der Gestaltung der Fassaden wurden die allgemeinen Linien der ein Jahr zuvor entworfenen Versicherungsbörse auf der anderen Seite der La Salle Street sowie das von William Le Baron Jenney entworfene Home Insurance Building auf der anderen Seite der Adams Street berücksichtigt. Es wurde versucht, die Ansichten dieser beiden Gebäude als Grundlage für die Rookery-Ansichten zu synthetisieren, was auch gelang, bis die Eigentümer im letzten Moment das elfte Stockwerk hinzufügten und damit die ursprünglich festgelegten Proportionen durcheinanderbrachten. Die Erhebungen sind daher Teil einer horizontalen Schichtung mit einem 2 (Basis)-2-3-3 (ursprünglich 2-1) Rhythmus. Die beiden dreistöckigen Ebenen wurden mit Arkaden überbaut.
Hof der Lichter
Während Root immer noch Mauerwerkspfeiler im Außenbereich verwendete, experimentierte er mit der ersten Verwendung von Eisenskelettkonstruktionen an einer Außenwand in Chicago, nachdem der Brand von 1871 die Anfälligkeit ungeschützter Eisenkonstruktionen gezeigt hatte. In diesem Fall wurde es für die Umrahmung der Außen- und Innenwände der Terrasse verwendet.
Da diese Mauern innerhalb der Grundstücksgrenzen lagen, galten sie nicht als Trennwände und unterlagen daher nicht der baurechtlichen Vorschrift, dass es sich um eine solide gemauerte Trennwand handeln muss. Auf diese Weise konnten die vier Hofmauern als freistehendes Eisengerüst gebaut werden, das in jedem Stockwerk eine gemauerte Vorhangfassade mit einheitlichen Abmessungen trägt.
Im Innenhof wurde ein von den Außenmauern unabhängiges System aus Balken und Eisenrinnen verwendet. Der Architekt berücksichtigte sogar, dass sich das Mauerwerk anders setzen würde als die Stahlteile.
Diese Konstruktion ist besonders nützlich, wenn die strukturellen Lasten im Vergleich zur natürlichen Tragfähigkeit des Bodens hoch sind.
Das Gebäude, das eine Kombination aus Eisenrahmen und tragenden Wänden aus Mauerwerk darstellt, markiert den Übergang von „tragenden Strukturen aus Mauerwerk zu tragenden Strukturen aus Stahlskelett“. In der Tat lobt die Denkmalkommission (1972) die „Entwicklung des strukturellen Rahmens des Skeletts unter Verwendung von Gusseisensäulen, schmiedeeisernen Brüstungsträgern und Stahlträgern zur Unterstützung der Seitenwände und Innenböden“.
Materialien
The Rookery verbindet nahtlos den Stil einer vergangenen Ära mit modernster Gebäudetechnik und Technologie.
Die Fassade des Gebäudes aus rotem Marmor, Granit, Terrakotta und braunem Backstein ist eine Kombination aus römischer Renaissance, venezianischem, maurischem und mittelalterlich-europäischem Stil. Ursprünglich bedeckten kunstvolle handgelegte Mosaike den Boden des Foyers.
Um möglichst viel Licht in den Innenhof und die einzelnen Büros zu reflektieren, verwendeten die Architekten einen cremefarbenen glasierten englischen Backstein. Jedes Stockwerk innerhalb des Innenhofs wurde durch Bänder aus braun glasierter Terrakotta mit Blattgold am oberen und unteren Ende jedes Tympanons akzentuiert, die ohne Unterbrechung um den Hof herum verlaufen und die vertikale Kontinuität der Säulen durchbrechen. Für das Zwischengeschoss im Innenhof wurden Glasbausteine verwendet.
Die Säulen, obwohl ebenfalls mit Ziegeln verkleidet und mit einem passenden Terrakottakapitell versehen, sind angemessen in die Wand eingelassen. Die sich daraus ergebende horizontale Komposition aus abwechselnden Schichten von weißen Ziegeln und Fensterbändern war ein direkter Ausdruck der Wandkonstruktion, die romantischen Bögen einer früheren Epoche waren verschwunden. Ein moderner architektonischer Ausdruck war endlich in der Öffentlichkeit erschienen. (Le Corbusier wird dieses Detail rund vierzig Jahre später in seinen „Fünf Punkten einer neuen Architektur“ als „freie Fassade“ bezeichnen).
Aktualisierungen
Im Jahr 2014 erhielt The Rookery die LEED-Gold-Zertifizierung und feierte seine Fortschritte in Sachen Nachhaltigkeit und Energieeffizienz. Es ist das älteste LEED-Gold-zertifizierte Gebäude in Illinois und der älteste zertifizierte Wolkenkratzer der Welt.
Im Jahr 2018 erhielt es die Energy-Star-Zertifizierung und erfüllt damit die strengen Energieleistungsstandards der EPA, um Energie zu sparen und die Umwelt zu schützen, indem es weniger Treibhausgasemissionen erzeugt.
Im Jahr 2019 wird die Technologie um eine hochmoderne IT-Infrastruktur, Wi-Fi in der Lobby und den Gemeinschaftsbereichen und ein verteiltes Antennensystem (DAS) im Gebäude zur Verbesserung des Mobilfunkdienstes erweitert.
Im Jahr 2020 erreicht The Rookery eine WELL-Bewertung für Gesundheit und Sicherheit auf der Grundlage von Sanitärverfahren im Gebäude, Notfallvorsorgeprogrammen, Ressourcen des Gesundheitsdienstes, Luft- und Wasserqualitätsmanagement usw.
Video





























































































