Fondation Beyeler Museum
Einführung
Das Gründerehepaar Ernst und Hildy Beyeler hatte eine klare Vision: Die Fondation Beyeler sollte ein offenes und aktives Museum sein, das ein breites Publikum für die Kunst begeistert. Ein Museum, das sowohl kulturelle Bildung als auch zwischenmenschliche Begegnungen fördert. Heute ist die Fondation Beyeler eines der beliebtesten Kunstmuseen der Schweiz und gilt als eines der besten der Welt.
Das von Renzo Piano entworfene Gebäude fügt sich auf elegante Weise in die Kulturlandschaft ein und stellt eine ideale Kombination aus Natur, Kunst und Architektur dar. Beeindruckt von der Arbeit des Architekten, der das Centre Pompidou in Paris und die Menil Collection in Houston entworfen hatte, beauftragte Ernst Beyeler den italienischen Architekten mit der Planung des Projekts, ohne einen Wettbewerb durchzuführen.
Erweiterung Peter Zumthor
Die Erweiterung des Museums soll im Spätsommer 2021 beginnen. Durch die Erweiterung entsteht ein einzigartiges Gebäudeensemble und die öffentlich zugängliche Fläche des Parks wird fast verdoppelt.
Der vom Atelier Peter Zumthor entworfene Erweiterungsbau umfasst drei Gebäude: das Kunsthaus, ein Dienstleistungsgebäude mit administrativ-logistischen Einrichtungen und einen Veranstaltungspavillon. Die ersten beiden werden im Iselin-Weber-Park errichtet, der südlich an das bestehende Museumsgelände angrenzt, und der einstöckige Pavillon wird im Berower Park neben der bestehenden Begrenzungsmauer stehen. Das neue Museumsgebäude mit einer Ausstellungsfläche von 1 500 Quadratmetern ist für Sammlungsausstellungen und kleinere Aufführungen vorgesehen. Das Servicegebäude beherbergt Büros und technische Einrichtungen, darunter auch die Auslieferung von Kunstwerken.
Standort
Das Gebäude der Fondation Beyeler befindet sich auf einem langen, schmalen Grundstück inmitten des Parks der Villa Berower aus dem 17. Jahrhundert im Vorort Riehen, Kanton Basel-Stadt, Schweiz. Begrenzt von einem Seerosenteich, einer Straße am östlichen Ende und im Westen von seinen langlebigen Bäumen und dem Blick auf Maisfelder, weidende Kühe, Weinberge und die Ausläufer des Schwarzwaldes ist er einzigartig.
In seiner Heimatstadt Riehen fand Ernst Beyeler ein Grundstück, das den von ihm gesuchten Bezug zur Natur hatte. Das wunderschöne Gelände des Landguts Villa Berower war der ideale Rahmen für ein Museum, in dem Kunst und Natur harmonieren sollten.
Das Museum ist auf der Ostseite durch eine Mauer von der Straße abgeschirmt. Vom Wintergarten aus öffnet sich im Westen der Blick auf die Landschaft, die sich bis zur Wiese am Fuße der Tüllinger Berge erstreckt. Im Süden spiegelt der mit Seerosen gefüllte Teich die Werke Monets wider und schafft einen fließenden Übergang zwischen Innen- und Außenbereich. Steinsitze auf den Rasenflächen oder Terrassen laden dazu ein, die Kunst des Museums von außen zu betrachten.
Konzept
Von Anfang an schlug Renzo Piano ein Gebäude mit drei Flügeln vor, das sich dem Gelände anpasst und Architektur und Natur miteinander verbindet. Die beiden Mauern, die den Garten des Geländes begrenzen, inspirierten die Idee für das Design des Museums, das nüchtern und ruhig ist und „der Kunst dient und nicht umgekehrt“.
Der Wunsch, die Sammlung auf einer Ebene zugänglich zu machen und vor dem Gebäude auf der Südseite einen Teich anzulegen, führte dazu, dass das gesamte Gebäude in den Boden eingelassen werden musste. Dadurch wurde nicht nur eine harmonische Verbindung zwischen dem Gebäude und der Landschaft geschaffen, sondern das Museum erhielt auch einen intimeren Charakter. Ein vulkanisches Gestein (Porphyr) aus Patagonien wurde verwendet, um die Wände so in die Landschaft einzupassen, als ob das Gebäude schon immer dort gestanden hätte.
Räume
Villa Berower
Die spätbarocke Villa Berower aus dem 18. Jahrhundert, in deren Garten das Gebäude liegt, befindet sich gegenüber dem Museum und beherbergt die Museumsverwaltung sowie ein eigenes Restaurant. Die elegante Architektur und die hervorragende Lage der Villa im weitläufigen Park schaffen eine gemütliche Atmosphäre. Von der großen Terrasse aus hat man einen schönen Blick auf den Park und die Skulpturen von Alexander Calder und Ellsworth Kelly.
Beschreibung
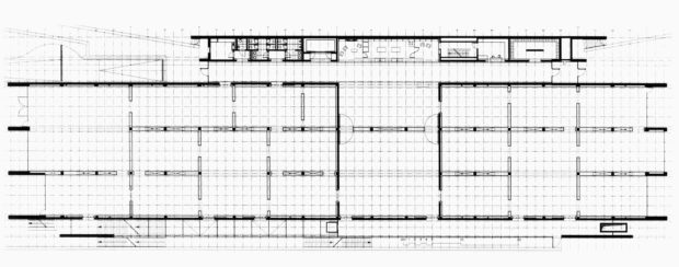
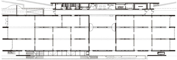
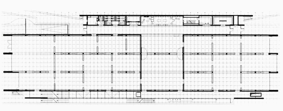
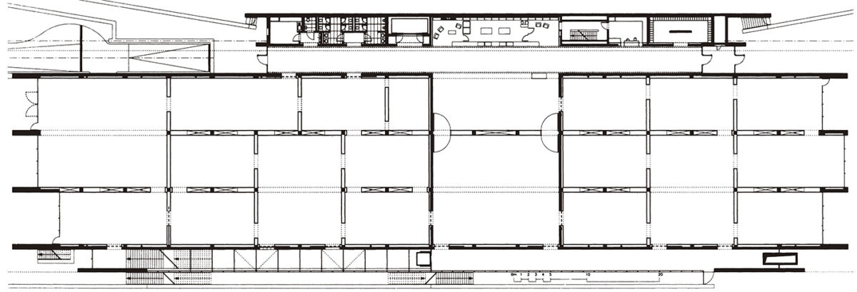
Zu beiden Seiten der Eingangshalle befinden sich die Ausstellungsräume, die unterschiedlich groß sind, aber alle die gleiche Höhe haben.
Die Innenräume des Museums sind entlang der vier Querwände organisiert, und sowohl im Norden als auch im Süden enden die Galerien mit raumhohen Fenstern von 6,8 m Breite und 5 m Höhe. Diese großen Fenster verbinden das Innere mit dem Äußeren und tragen dazu bei, einen Dialog zwischen den ausgestellten Kunstwerken und der umgebenden Landschaft herzustellen. An der Westseite werden die intimen Räume des Museums von einem langen, schmalen, glasüberdachten Wintergarten flankiert: ein Ort der Kontemplation und Entspannung.
Decken
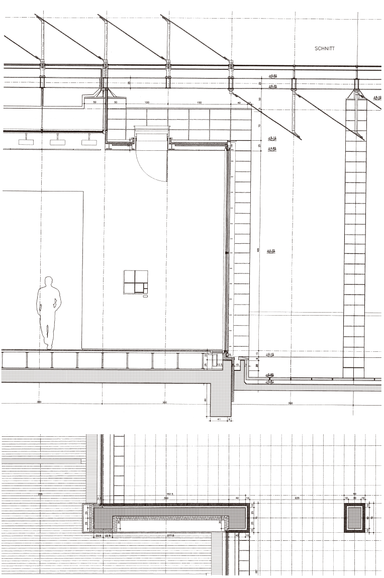
Das auf den massiven Grundmauern ruhende Flachdach aus leichtem Glas (4000 m2), das auf der Rückseite weiß verglast ist, lässt das Licht aus dem Norden herein, schließt aber das Licht aus dem Osten und Westen aus. An der Nord- und Südseite ragt das Dach weit über die Wände hinaus, um die Glasfassaden der Räume vor der Sonne zu schützen und einen Ort der Ruhe zu schaffen. Das Gebäude hat eine verglaste Westfassade, die einen weiten Blick auf die Maisfelder und Weinberge der Tüllinger Hügel bietet.
Im Jahr 1999, weniger als zwei Jahre nach der Eröffnung, wurde das Gebäude um 12 Meter verlängert, wodurch sich die Gesamtausstellungsfläche um 458 Quadratmeter auf insgesamt 3.764 m2 erhöhte.
Struktur
Die Struktur spiegelt den Wunsch des Architekten wider, Räume zwischen vier langen, massiven Wänden mit einem leichten, kristallinen Dach zu haben, das alle Fassaden überragt, die Menge an natürlichem Licht kontrolliert und die innere Umgebung verändert.
Vier Stützmauern mit einer Länge von 127 m und einer Höhe von 4,8 m, die in Nord-Süd-Richtung parallel zueinander und zur Grundstücksmauer verlaufen, haben einen Abstand von 7 m und definieren den Grundriss des Gebäudes. Diese Wände bestehen aus einem Gitter aus Betonpfeilern, die außen mit Steinplatten und innen mit Gipskartonplatten verkleidet sind. Die kurzen Wände, die das Parallelepiped umschließen, sind verglast.
Der Querschnitt ist dynamischer. Die Mauern sind unterschiedlich hoch, und die östlichste Mauer reicht in den Park hinein und wird zu einer niedrigen Mauer, die der des Gebäudes ähnelt, das die Besucher zum Eingang führt.
Decken
Die flachen Dachüberstände an der Nord- und Südseite des Gebäudes werden von steinverkleideten Stahlsäulen getragen, während sich die Bodenplatte an der Südseite zu einem Seerosenteich ausdehnt, der sich in die Landschaft hinein erstreckt. Die stählerne Dachkonstruktion bietet eine durchgehende Unterstützung für die verschiedenen Schichten des Daches, einschließlich des Glasdachs und der Innenlamellen, der Doppelverglasung und der Pfosten, die die Glasbeschattungsplatten tragen.
Das Dachträgersystem, das aus einer einfachen Metallkonstruktion besteht, ist von den Ausstellungshallen aus praktisch unsichtbar und verleiht dem Gebäude ein Gefühl der Leichtigkeit, das in starkem Kontrast zur Schwere der Steinwände steht.
Das Gebäude hält nicht nur einer relativ hohen Schneelast stand, sondern ist auch für ein seismisches Ereignis ausgelegt.
Materialien
Natürliches Licht
Beyeler wollte, dass die Kunstwerke vollständig von natürlichem Licht erhellt werden und dass das Museum in die umgebende Vegetation eintaucht. Angesichts der Vorliebe Ernst Beyelers für natürliches Licht wurde der Gestaltung des Daches besondere Aufmerksamkeit gewidmet: eine wahre „zenitale Lichtmaschine“.
Nach der Untersuchung von Tageslichtdaten empfahlen die Ingenieure einen angestrebten Tageslichtfaktor von 4 %, der etwa doppelt so hoch ist wie der der meisten europäischen Museen, und ein aktives Beschattungssystem, um das Lichtniveau innerhalb der vorgegebenen Grenzen zu halten. Dieses Ziel wurde durch ein mehrschichtiges Glasdach erreicht, das alles überdeckt, das Tageslicht im Norden einfängt und es im Osten und Westen abhält.
Das mehrschichtige Dach besteht aus einem geneigten undurchsichtigen Sonnenschutz aus Glas, einem flachen Dach mit Doppelverglasung, einem doppelten Satz funktionsfähiger Jalousien, einem Glasdach und einem zweiten perforierten Metalldach.
Unter dem transparenten Dach befindet sich in einer Höhe von 1,4 m eine zweite Glasschicht, die als Luftkammer dient, um die Auswirkungen von Temperaturschwankungen auszugleichen und die Wartung zu erleichtern. Die verstellbaren Lamellen befinden sich in dieser Kammer, um genau die richtige Menge an direktem Licht und künstlicher Beleuchtung zu filtern, wenn es draußen dunkel ist. Dahinter verbirgt sich ein Schleier, eine Struktur aus Kästen mit Lochblechen, in die eine Schicht aus weißem Stoff gespannt ist, um eine gleichmäßige Lichtstreuung zu gewährleisten.
Der doppelte Satz von Lamellen schützt die Kunstwerke im Inneren, die unteren Lamellen in Nord-Süd-Richtung sind beweglich und durch eine Strukturglasschicht geschützt, die oberen Lamellen, die gegen die Achse positioniert sind, sind mit einer Neigung befestigt, die dem Gebäude sein charakteristisches Bild verleiht.
Das leichte Glasdach ragt weit über die Steinmauern hinaus und schützt die Glasfassaden vor der Sonne. Die Milchglasscheiben verhindern den Schattenwurf in den Räumen, lassen aber subtile Lichtwechsel zu und schaffen so eine lebendige Atmosphäre.
Porphyr
Die tragenden Außenwände und Säulen sind aus Stahlbeton, und die Steine, die sie bedecken, sowie die Steine, die das Gelände begrenzen, sind ein ungeschliffener Porphyrstein, der aus dem argentinischen Patagonien stammt und dem Sandstein der Umgebung sehr ähnlich ist. BaselDie neue, wenn auch etwas härtere und weniger wartungsintensive.
Klimatisierung
Obwohl in der Schweiz aus ökologischen Gründen keine Klimaanlagen verwendet werden, erfordern hochwertige Kunstwerke eine strenge Klimakontrolle. Spezifische Ausnahmen wurden an bestimmte Bedingungen geknüpft, u. a. an die Vorlage einer Bedarfserklärung bei den örtlichen Behörden, in der die mechanische Kühlung und Belüftung begründet wird, sowie an eine dynamische jährliche Energieanalyse, die nachweist, dass das Gebäude so energieeffizient wie möglich ist.
Die Galerien sind durch thermische „Puffer“ im Dach und an der Ost- und Westseite vor extremen klimatischen Bedingungen geschützt. Im Winter ist eine Raumheizung nur in Galerien mit Fenstern direkt nach außen erforderlich.
Ein echtes Verdrängungssystem wurde entwickelt, um die Luftgeschwindigkeiten um das Kunstwerk herum auf ein Minimum zu reduzieren. Die Luft strömt mit kaum wahrnehmbarer Geschwindigkeit aus speziell entwickelten linearen Gittern im Holzboden, die zum Reinigen oder für den Zugang zu den Steckdosen entfernt werden können. Die Luftzufuhr zu den einzelnen Galeriemodulen wird durch variable Luftmengenkästen gesteuert, die in einem Servicekorridor im Untergeschoss montiert sind.














































































